Conveniently located near stations and good schools.
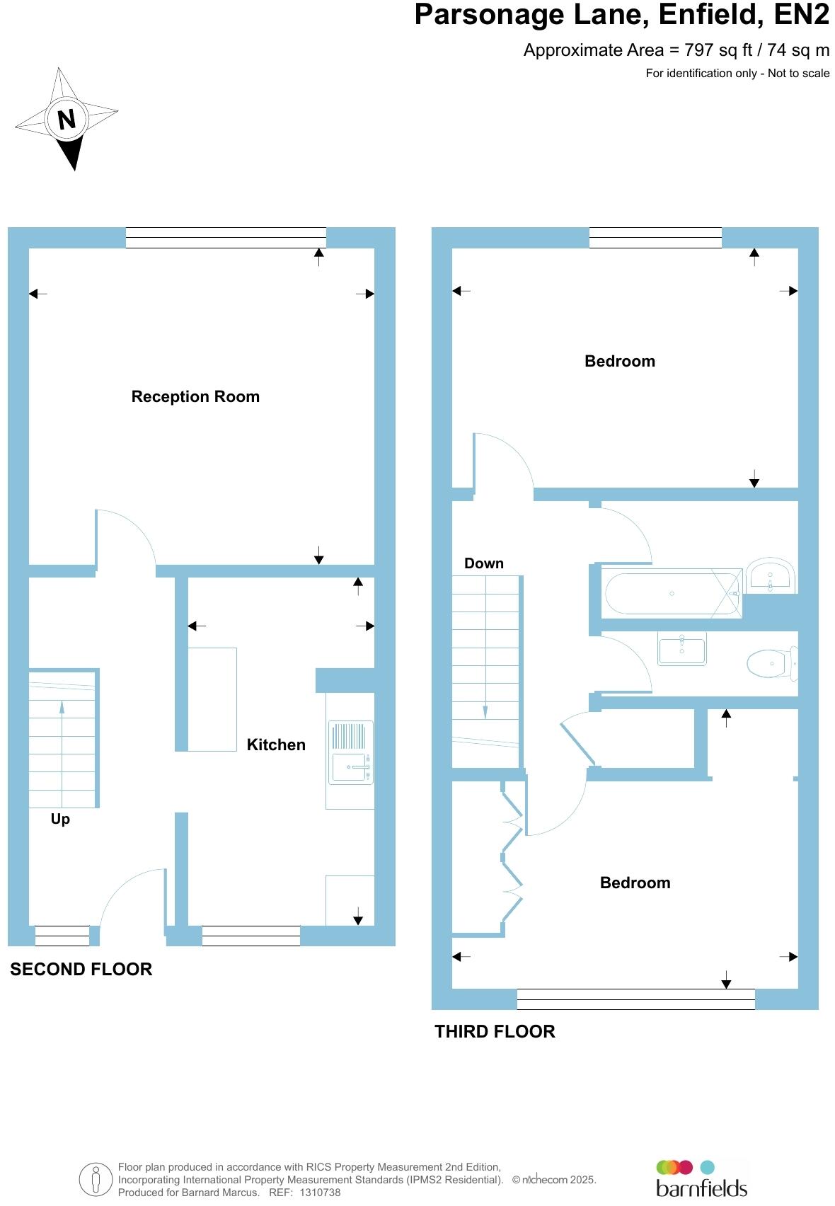
Split-level maisonette on second and third floors
A split-level two-bedroom maisonette offering practical family accommodation within walking distance of Enfield Town and two rail stations. The home sits on the second and third floors of a mid-century block and benefits from recent re-roofing, modern double glazing and a gas boiler installed about four years ago.
Internally the layout is straightforward: a good-sized lounge, separate kitchen with fitted units and plumbing for appliances, two double bedrooms and a bathroom plus a separate WC. There is useful communal storage (brick shed) and communal gardens, with off-street parking for residents and some visitor spaces.
The property has a long lease (about 170+ years remaining) and gas central heating, making it suitable for families or buy-to-let investors seeking a low-immediate-maintenance home. Important practical points: the block is a system-built mid-20th-century construction with limited built-in wall insulation assumed, and ceilings and room proportions are typical of the era (modest height).
Location is a clear strength — close to multiple good-rated schools, shops and fast transport links into central London — but buyers should note the area's very high recorded crime level. A buyer seeking comfort, convenience and a straightforward renovation project will find this maisonette appealing; commissioning a survey is recommended to confirm services and structure.
2 bedroom flat for sale in London Road, Enfield, EN2 — £350,000 • 2 bed • 1 bath • 750 ft²
2 bedroom flat for sale in Canning Square, Enfield, EN1 — £360,000 • 2 bed • 1 bath • 998 ft²
2 bedroom flat for sale in Bycullah Road, Enfield, EN2 — £445,950 • 2 bed • 1 bath • 656 ft²
2 bedroom maisonette for sale in Blossom Lane Enfield, EN2 — £275,000 • 2 bed • 1 bath • 803 ft²
3 bedroom maisonette for sale in Kettering Road, Enfield, EN3 — £294,995 • 3 bed • 1 bath • 941 ft²
2 bedroom maisonette for sale in Cheviot Close, Enfield, EN1 — £380,000 • 2 bed • 1 bath • 529 ft²










































