OX27 9AR - 1 bedroom flat for sale in Stratton Audley Manor, Oxfordshi…

View on Property Piper

1 bedroom flat for sale in Stratton Audley Manor, Oxfordshire, OX27

Summary - STRATTON AUDLEY MANOR 6 MILL ROAD STRATTON AUDLEY BICESTER OX27 9AR

1 bed 1 bath Flat

**Standout Features:**
- Grade II listed apartment in a Jacobean manor house
- Spacious reception room and large bedroom with fitted storage
- Charming original character features and high ceilings
- Access to communal amenities: swimming pool, games room, and barbecue area
- Set in beautifully maintained grounds with mature trees and flower beds
- Location in the affluent village of Stratton Audley, 2.7 miles from Bicester North Station, providing direct links to Birmingham and London
- Single garage and ample parking available

**Considerations:**
- 49 years remaining on leasehold may limit mortgage options
- Grade II listing may complicate renovation or extension possibilities
- Constructed before 1900, the building may require updates for modern comfort

This impressive Grade II listed apartment offers a rare opportunity to own a piece of history within the serene grounds of a Jacobean manor house. The spacious layout and large windows invite plenty of natural light, while the communal facilities, including a swimming pool and games room, enhance the community feel. Ideal for first-time buyers or couples, this residence perfectly marries countryside charm with modern conveniences, all nestled in a low-crime, affluent village. Although the remaining leasehold period presents potential financing challenges, the tranquil setting, solid character, and strong community ties make this a standout choice. Act quickly—properties with such unique charm don’t stay on the market for long!

Property Details

Image Descriptions

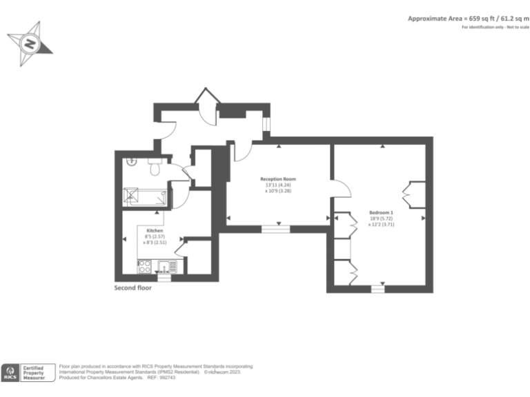
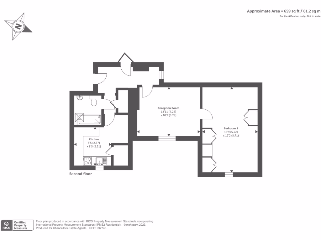
Floorplan Description

Rooms

Textual Property Features

Detected Visual Features

EPC Details

Nearby Schools

Nearest Bars And Restaurants

,,,,}

Nearest General Shops

,,}

Nearest Grocery shops

,,}

Nearest Supermarkets

,,}

Nearest Religious buildings

,,}

Nearest Medical buildings

,,,}

Nearest Leisure Facilities

,,,,}

Nearest Tourist attractions

,,}

Nearest Train stations

,,,,}

Nearest Bus stations and stops

,,,,}

Nearest Hotels

,,}

Tags

Local Market Stats

AirBnB Data

Similar Properties

Meta

High Res Images

Compatible Images

Low res Images

Thumbnails

Raw Images

High Res Floorplan Images

Compatible Floorplan Images

Low res Floorplan Images

FloorplanImages Thumbnail

Raw Floorplan Images