Retirement-friendly two-bedroom home near Newport town centre and amenities.
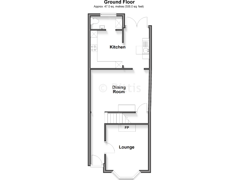
Victorian-style end terrace with two reception rooms and separate kitchen
Lifetime Lease example price £155,500 for eligible over-60s (guide)
Full market value £235,000; Lifetime Lease allows up to 50% share
Enclosed rear garden with patio and low-maintenance lawn
Single bathroom; cloakroom/utility off kitchen for extra convenience
Double glazing fitted before 2002; may need modernisation
Small plot and higher local crime rate to consider
Freehold tenure; confirm all legal and planning details
This two-bedroom end-of-terrace sits in a popular Newport residential area within easy reach of shops and amenities. The house offers two reception rooms, a spacious kitchen with adjoining utility and a private enclosed rear garden with low-maintenance lawn and patio.
The property is presented as suitable for retirement living and is being promoted with a Home for Life Lifetime Lease example price of £155,500 (guide, based on an average 33% saving). Full market value is £235,000; the Lifetime Lease allows purchasers aged 60+ to buy up to a 50% share, with actual price varying by age and circumstances.
Practical details include double glazing (installed before 2002), mains gas central heating with boiler and radiators, cavity walls, and an average total size of 684 sq ft. The location benefits from fast broadband, excellent mobile signal and several nearby primary schools rated Good or Outstanding.
Notable issues: the area records higher-than-average crime, the plot is small, and the property has only one main bathroom. Buyers should verify tenure and all measurements, and confirm any refurbishment or service needs before purchase.
3 bedroom terraced house for sale in Lugley Street, Newport, Isle of Wight, PO30 — £192,000 • 3 bed • 1 bath • 598 ft²
2 bedroom end of terrace house for sale in Horsebridge Hill, Newport, Isle of Wight, PO30 — £145,500 • 2 bed • 1 bath • 609 ft²
2 bedroom semi-detached house for sale in Furrlongs, Newport, Isle of Wight, PO30 — £142,500 • 2 bed • 1 bath • 577 ft²
3 bedroom semi-detached house for sale in Sea Street, Newport, Isle of Wight, PO30 — £165,500 • 3 bed • 1 bath • 1281 ft²
2 bedroom terraced house for sale in Green Street, Newport, Isle of Wight, PO30 — £145,000 • 2 bed • 1 bath • 408 ft²
2 bedroom maisonette for sale in The Hollows, Newport, Isle of Wight, PO30 — £106,000 • 2 bed • 1 bath • 657 ft²














































