**Standout Features:**
- Freehold property in prime corner location near Nantwich town center
- Former garage premises, well-suited for commercial or potential residential development
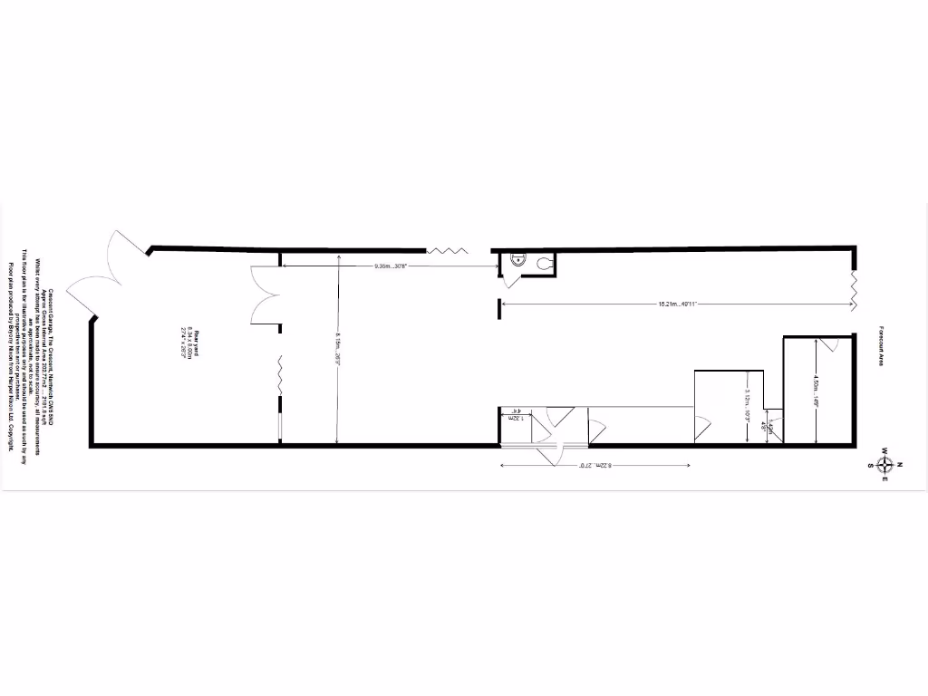
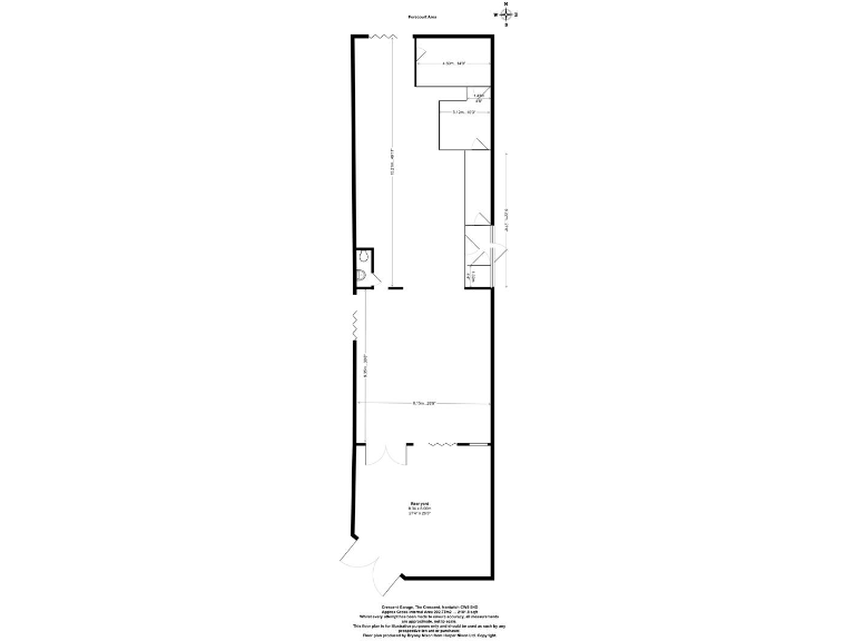
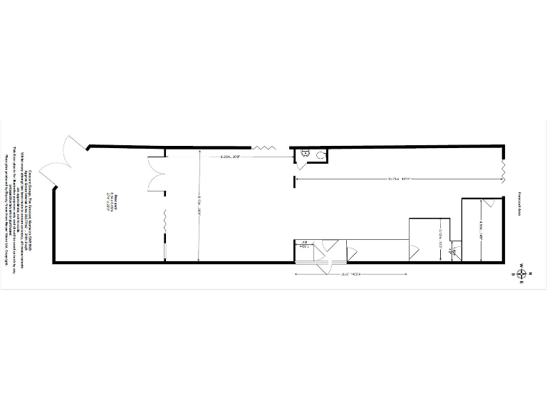
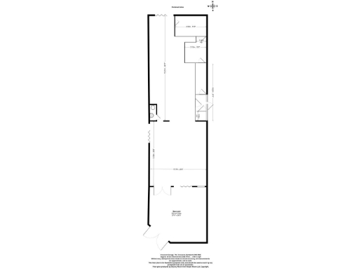
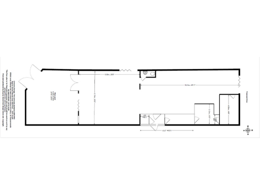
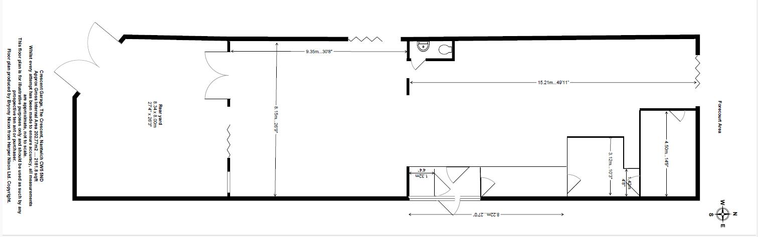
- Total floor area of 2,181 square feet with multiple functional spaces
- High ceiling, classic brick facade, and large garage door for vehicle access
- Decent plot size with side vehicle access and rear yard/compound
**Concerns:**
- Currently in a state that may require renovation and inquiries regarding planning or change of use
- Asbestos roof—buyer will need to assess safety and removal options
Discover an exceptional investment opportunity with this versatile freehold commercial property, previously a garage, located just minutes from the vibrant heart of Nantwich. Boasting a spacious total of 2,181 square feet, the property features multiple versatile areas ideal for a variety of uses, whether continuing as a workshop, retail space, or transforming to meet new creative visions. With its classic early 20th-century industrial design and prime location, this property invites buyers to explore renovation potential.
Ideal for developers or first-time investors, this property allows for a unique blend of business and residential possibilities. While the building has solid structural features, prospective buyers should be aware of the asbestos roof and the need for potential upgrades. Nantwich itself is a coveted locale, rich in heritage with a lively community atmosphere. Experience the charm of cobbled streets, boutique shopping, and delectable dining, all while enjoying easy access to exceptional local amenities. Don't miss out—opportunities like this in such a desirable area don't last long!
3 bedroom semi-detached house for sale in Millfields, Nantwich, CW5 — £350,000 • 3 bed • 2 bath • 1444 ft²
Property for sale in Middlewich Road, Woolstanwood, Crewe, Cheshire, CW2 — £775,000 • 1 bed • 1 bath • 4477 ft²
Commercial property for sale in 31-33 High Street, Nantwich, Cheshire, CW5 5AH, CW5 — £900,000 • 1 bed • 1 bath • 6817 ft²
High street retail property for sale in 8 Pepper Street, Nantwich, Cheshire, CW5 5AB, CW5 — £390,000 • 1 bed • 1 bath • 3799 ft²
3 bedroom terraced house for sale in Alvaston Road, Nantwich, Cheshire, CW5 — £200,000 • 3 bed • 1 bath • 683 ft²
3 bedroom semi-detached house for sale in Rookery Close, Nantwich, CW5 — £325,000 • 3 bed • 2 bath • 1816 ft²






























































