WD7 8DY - 4 bed spacious fourbedroom semi in Willow Way, WD7 8DY

View on Property Piper

4 bedroom semi-detached house for sale in Willow Way, Radlett, Hertfordshire, WD7

Summary - 40 WILLOW WAY RADLETT WD7 8DY

4 bed 2 bath Semi-Detached

Generous family home with large south-west garden and gym, under a mile to Radlett station..
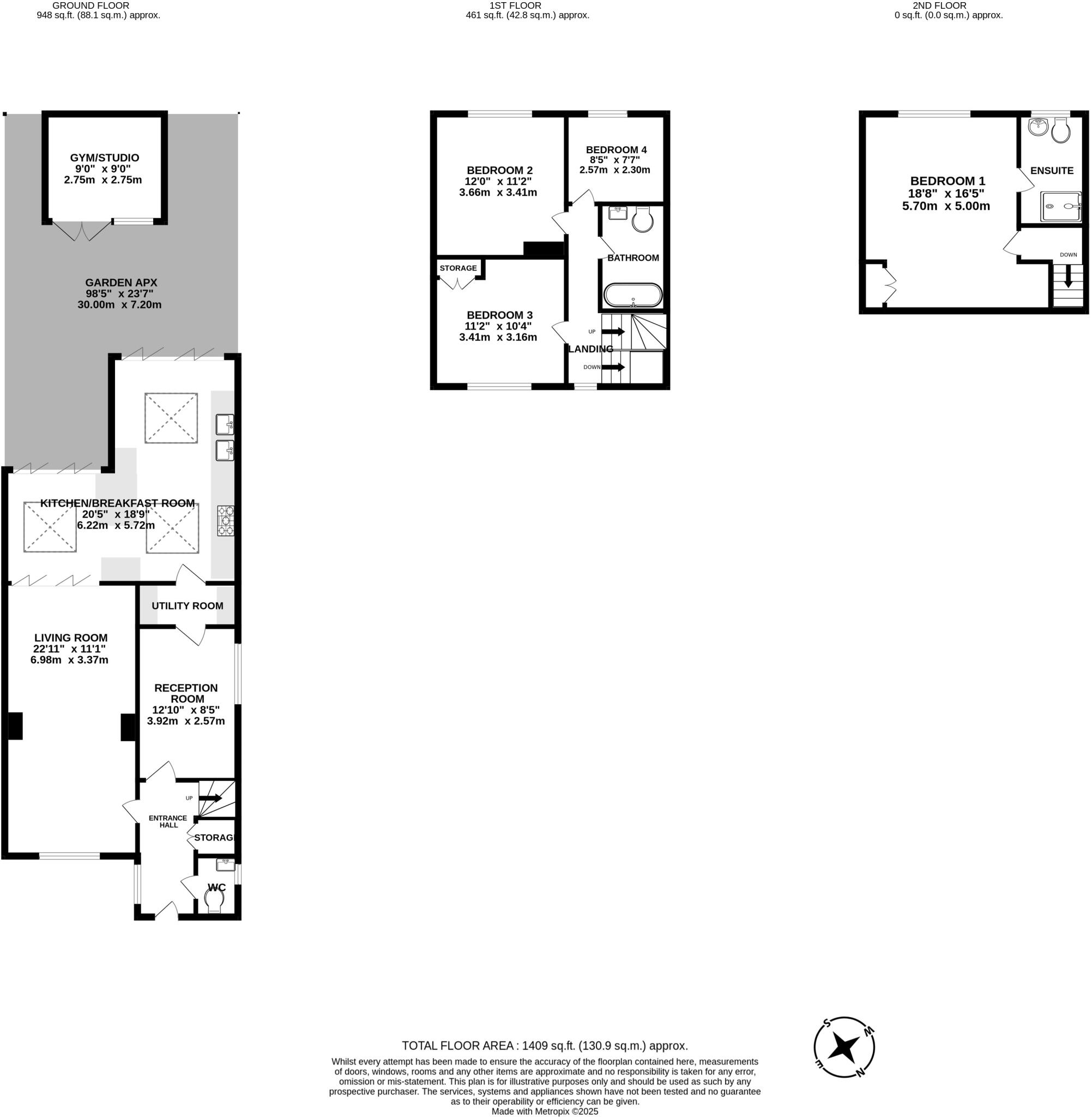
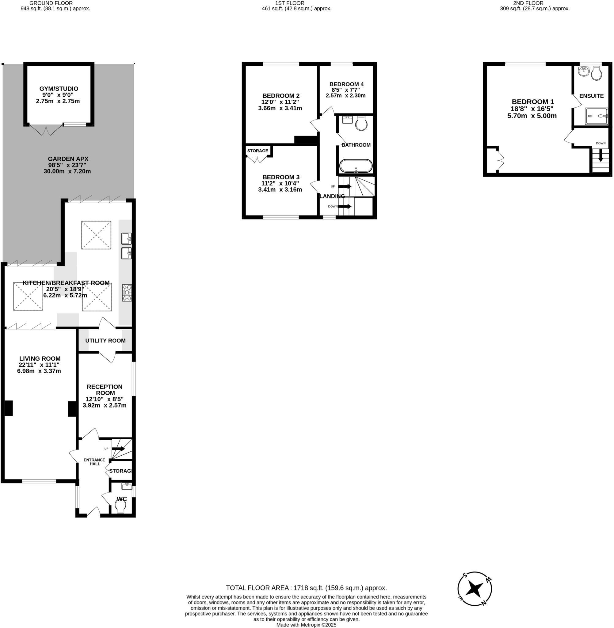
- Over 1,700 sq ft across three floors, adaptable family layout
- South-west-facing 98 ft rear garden with gym/studio
- 20' open-plan kitchen/breakfast room with two sliding doors
- 22' living room plus additional reception and utility room
- 18' principal bedroom with en-suite on top floor
- System-built 1930s–1940s construction; external wall insulation assumed absent
- Double glazing fitted after 2002; mains gas boiler and radiators
- 0.8 miles to Radlett village centre and mainline station
A bright, well-presented four-bedroom semi-detached house offering over 1,700 sq ft of flexible family living across three floors. The heart of the home is a 20' open-plan kitchen/breakfast room with two sets of sliding doors leading to a generous south-west-facing garden, ideal for afternoon sun and family entertaining. A separate 22' living room, additional reception room, utility and ground-floor WC provide practical day-to-day space, plus a gym/studio at the garden end for hobbies or home working.

Upstairs the home delivers two double bedrooms, a single bedroom and a modern family bathroom, while the top floor is dedicated to an 18' principal bedroom with en-suite shower room, offering privacy from the rest of the house. The property benefits from double glazing (installed post-2002), mains gas central heating with boiler and radiators, a driveway and a decent plot in a sought-after road just 0.8 miles from Radlett village and mainline station.

Practical considerations: the house was built circa 1930–1949 and is of system-built construction; external wall insulation is assumed to be absent which could affect running costs and modernisation plans. The property is freehold, in an affluent area with fast broadband and excellent mobile signal, but local crime is average and council tax is moderate. For families, the location is well served by a range of good and independent schools.

This home suits a family seeking generous indoor/outdoor living near village amenities and rail links, or buyers keen to modernise parts of a comfortable post-war house to improve energy performance and personalise finishes.

Property Details

Brochure Descriptions

Image Descriptions

Floorplan Description

Rooms

Textual Property Features

Target Audience

AI Tags

Detected Visual Features

EPC Details

Nearby Schools

Nearest Bars And Restaurants

,,,,}

Nearest General Shops

,,}

Nearest Grocery shops

,,}

Nearest Supermarkets

,,}

Nearest Religious buildings

,,}

Nearest Medical buildings

,,,}

Nearest Airports

,,}

Nearest Leisure Facilities

,,,,}

Nearest Tourist attractions

,,}

Nearest Train stations

,,,,}

Nearest Bus stations and stops

,,,,}

Nearest Hotels

,,}

Tags

Local Market Stats

Similar Properties

Meta

High Res Images

Compatible Images

Low res Images

Thumbnails

Raw Images

High Res Floorplan Images

Compatible Floorplan Images

Low res Floorplan Images

FloorplanImages Thumbnail

Raw Floorplan Images