Bright, characterful two-bedroom flat close to Shepherd’s Bush shops and transport.
Private entrance and garden, rare for a flat
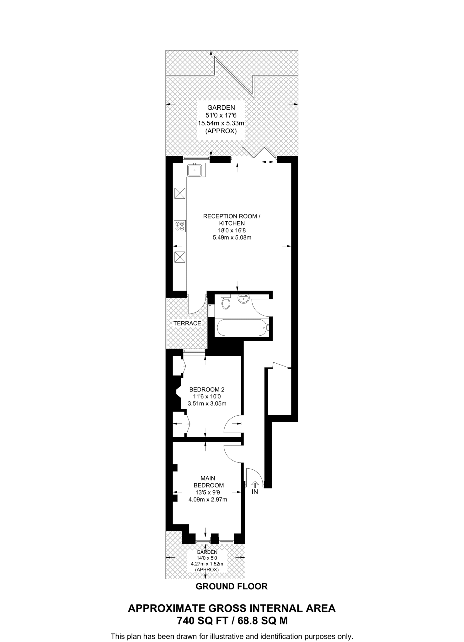
Open-plan kitchen/reception with skylights and bi-fold doors
Two generous double bedrooms with high ceilings
Approximately 740 sq ft of living space
Double glazing fitted post-2002; mains gas boiler heating
Victorian solid-brick construction, likely no wall insulation
Possible mould in a bedroom — requires inspection and remediation
Leasehold tenure — check lease length and service charges
A bright, well-presented two-bedroom flat tucked quietly on Oaklands Grove, offering easy access to Shepherd’s Bush amenities including Westfield. The open-plan reception and kitchen is the heart of the home, featuring skylights and bi-fold doors that lead toward the private garden — a rare outside space for this property type. At around 740 sq ft, rooms feel generous with high ceilings and period character retained in places.
Practical comforts include double glazing installed after 2002, a mains gas boiler with radiator heating, and useful built-in storage. The layout suits first-time buyers or couples wanting a comfortable city base with room to work from home. Local schools perform well and transport links and local shops are readily available in this inner-city location.
There are important points to note: the building is a Victorian, solid-brick construction likely without cavity wall insulation, which can affect running costs. One bedroom description flags potential mould issues that should be inspected and addressed. The property is leasehold — further lease details and service charges should be checked before committing.
Overall, this flat offers a strong mix of period charm, modernised glazing, and an unusually private garden for the area. It’s best for buyers who value character and location and who are prepared to investigate and remedy minor maintenance and insulation matters.
2 bedroom flat for sale in Oaklands Grove, London, W12 — £499,950 • 2 bed • 1 bath • 657 ft²
2 bedroom flat for sale in Oaklands Grove, London, W12 — £499,950 • 2 bed • 1 bath • 675 ft²
2 bedroom flat for sale in Uxbridge Road, Shepherd's Bush, London, W12 — £700,000 • 2 bed • 2 bath • 919 ft²
2 bedroom flat for sale in Goodwin Road, Shepherd's Bush, W12 — £750,000 • 2 bed • 1 bath • 861 ft²
1 bedroom flat for sale in Oaklands Grove, London, W12 — £350,000 • 1 bed • 1 bath • 424 ft²
2 bedroom flat for sale in Bassein Park Road, Shepherd's Bush, W12 — £500,000 • 2 bed • 1 bath • 670 ft²


























































































































































































