CH45 9LE - 4 bedroom end of terrace house for sale in Albion Street, N…

View on Property Piper

4 bedroom end of terrace house for sale in Albion Street, New Brighton, CH45

Summary - 1 ALBION STREET WALLASEY CH45 9LE

4 bed 2 bath End of Terrace

### Standout Features:
- Spacious four-bedroom end of terrace home
- Characterful Victorian design with attractive bay windows
- Sunny gardens and a garage for convenience
- Two modern bathrooms, including an ensuite
- Recently upgraded interiors while maintaining original charm
- Prime location near amenities and public transport (New Brighton Merseyrail station)

### Overview:
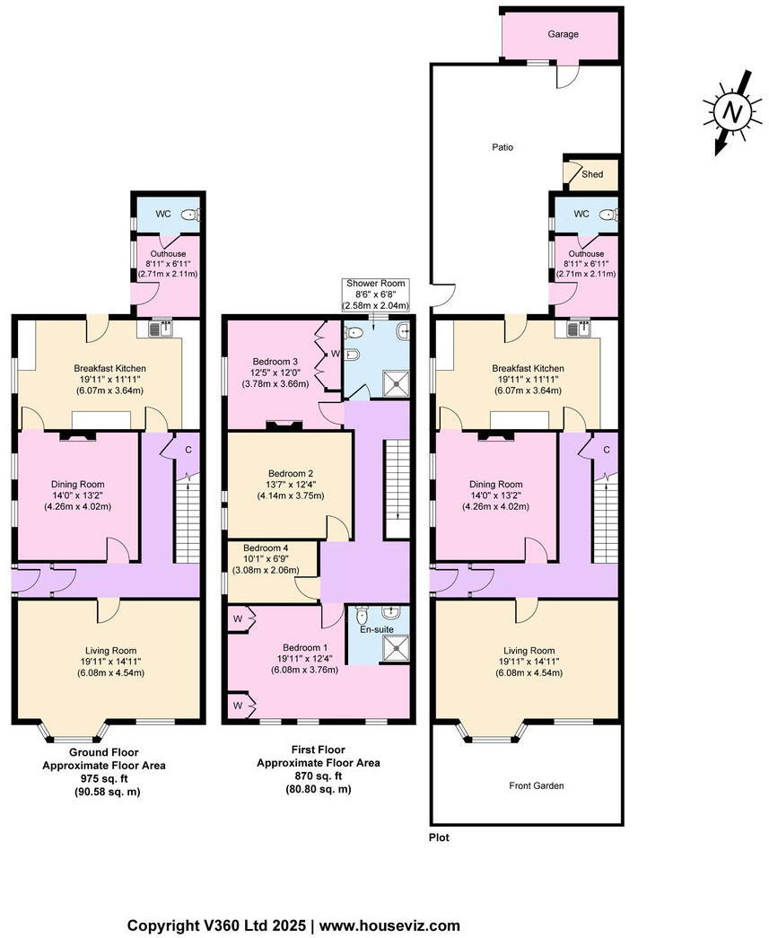
Experience the allure of this charming four-bedroom Victorian terraced home, perfectly positioned on a sunny corner plot in the heart of New Brighton. As you enter, you are greeted by a spacious vestibule that leads into a welcoming hallway adorned with original features. The generous living room showcases a stunning bay window and a period fireplace, while the dining room offers ample space for family gatherings. The well-appointed kitchen/diner boasts bespoke Maplewood cabinets, with a direct connection to a beautifully landscaped garden—ideal for those sunny days of relaxation.

Upstairs, find four well-sized bedrooms, including a master with an ensuite shower room, and a modern shower room that offers stylish finishes. Although the property has been well-maintained, it is important to note that the external walls lack insulation, which may warrant further improvement for energy efficiency.

With fast broadband, low crime rates, and excellent local amenities, including schools and transport links, this home is suitable for families, first-time buyers, and investors alike. Don't miss the opportunity to view this unique property that combines character, charm, and future potential for renovation—it's a rare find in an attractive area! Act fast, as homes like this don't stay on the market for long!

Property Details

Image Descriptions

Floorplan Description

Rooms

Textual Property Features

Detected Visual Features

EPC Details

Nearby Schools

Nearest Bars And Restaurants

,,,,}

Nearest General Shops

,,}

Nearest Grocery shops

,,}

Nearest Supermarkets

,,}

Nearest Religious buildings

,,}

Nearest Medical buildings

,,,}

Nearest Airports

}

Nearest Leisure Facilities

,,,,}

Nearest Tourist attractions

,,}

Nearest Train stations

,,,,}

Nearest Bus stations and stops

,,,,}

Nearest Hotels

,,}

Tags

Local Market Stats

AirBnB Data

Similar Properties

Meta

High Res Images

Compatible Images

Low res Images

Thumbnails

Raw Images

High Res Floorplan Images

Compatible Floorplan Images

Low res Floorplan Images

FloorplanImages Thumbnail

Raw Floorplan Images