Bright first-floor flat with garden views, lift access and refitted shower..
- Southerly views over communal gardens and Manor Park
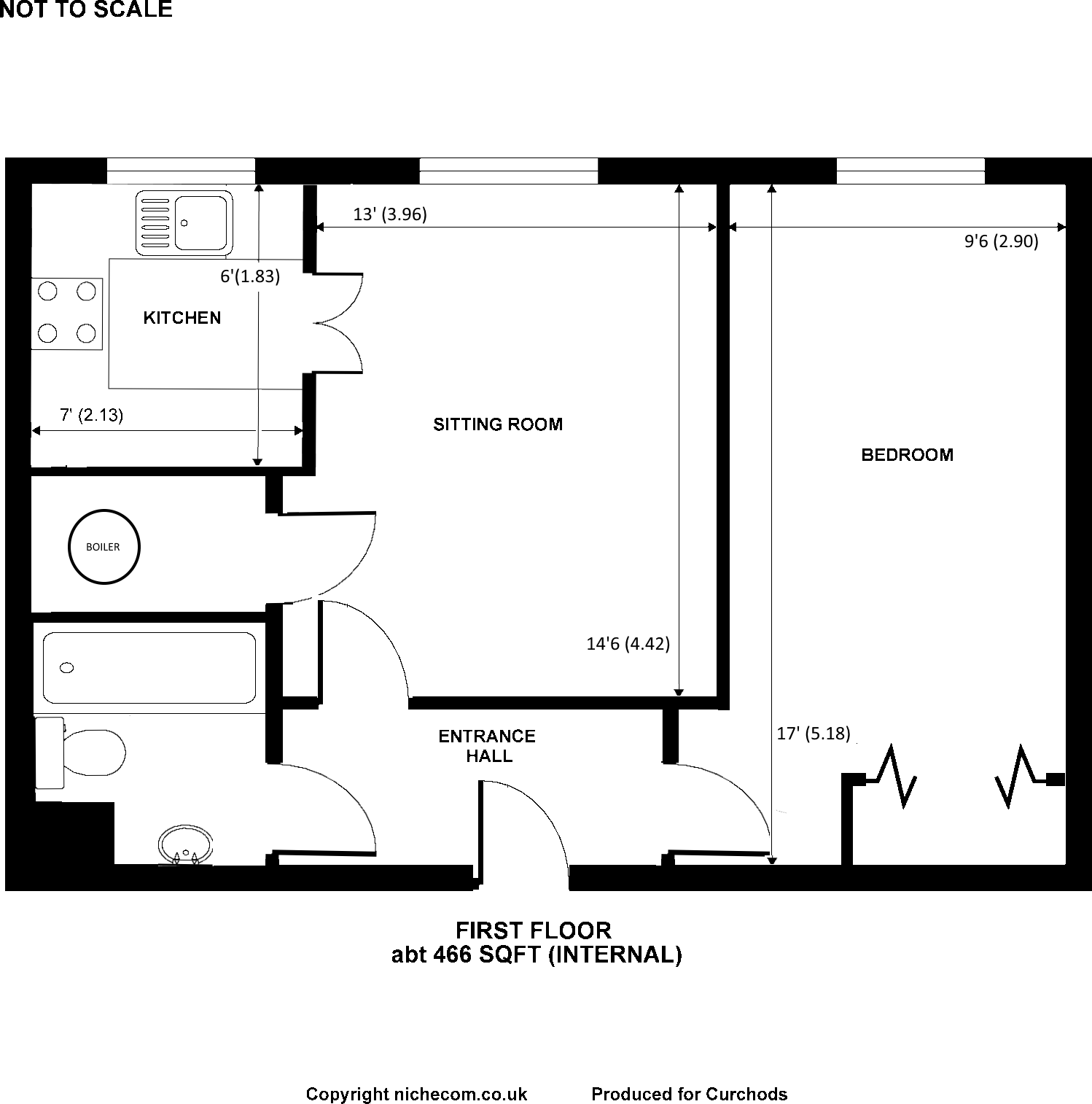
- 17' double bedroom with built-in wardrobes
- First-floor apartment served by a lift
- Refitted shower room with large walk-in cubicle
- Chain free with early possession available
- Electric storage heating (higher running costs)
- Leasehold: 97 years remaining
- Local area broadband average; reported high local crime
Set on the first floor of Lords Bridge Court, this one-bedroom retirement apartment offers bright southerly views over well-kept communal gardens and Manor Park. The square living room is easy to furnish and receives good natural light; a deep storage cupboard houses the hot-water system. The large 17' bedroom includes built-in wardrobes and provides comfortable sleeping accommodation.
The apartment benefits from lift access, communal lounge and garden areas, plus residents' car parks and off-street parking. A recently refitted shower room features a large walk-in shower, making the layout convenient and low-maintenance for daily living. The compact 466 sq ft layout is straightforward to manage and offered chain-free with early possession available.
Practical points to note: heating is by electric storage heaters and the property is leasehold with 97 years remaining. Broadband speeds are average and the local crime level is reported as high — important factors for budgeting and personal security planning. Overall this is a well-located, easy-to-run retirement flat for someone wanting village amenities and green views within a short level walk of Shepperton High Street and the station.
1 bedroom flat for sale in Lords Bridge Court, Shepperton, TW17 — £220,000 • 1 bed • 1 bath • 601 ft²
1 bedroom retirement property for sale in Lords Bridge Court, Mervyn Road, Shepperton, TW17 — £210,000 • 1 bed • 1 bath • 626 ft²
1 bedroom flat for sale in Mervyn Road, Shepperton, TW17 — £245,000 • 1 bed • 1 bath • 688 ft²
1 bedroom retirement property for sale in Lords Bridge Court, Shepperton, TW17 — £189,500 • 1 bed • 1 bath • 610 ft²
1 bedroom apartment for sale in Mervyn Road, Shepperton, Surrey, TW17 — £159,950 • 1 bed • 1 bath • 456 ft²
1 bedroom retirement property for sale in Lords Bridge Court, Mervyn Road, Shepperton, TW17 — £189,500 • 1 bed • 1 bath • 626 ft²






















































