Spacious three-bedroom home near schools, garage, gardens — ideal for family living.
Walking distance to primary and secondary schools
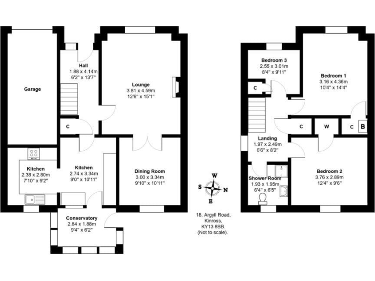
Extended kitchen plus additional kitchen/utility area
Rear conservatory and mature, private gardens
Mono-block driveway and single garage for parking
Gas central heating and double glazing throughout
Single ground-floor shower room only (one bathroom)
Council Tax Band E — above average running cost
Mid‑20th‑century fittings; cosmetic updating may be needed
This extended three-bedroom detached villa sits in a sought-after Kinross street within easy walking distance of primary and secondary schools, shops and local sports facilities — a practical family home with straightforward, comfortable accommodation. The layout includes a lounge, dining room, extended kitchen with a further kitchen area off it, a small conservatory and a single ground-floor shower room. A mono-block driveway and single garage provide off-street parking, while mature, fenced gardens offer privacy and outdoor space for children and pets.
Built and dressed in mid‑20th‑century style, the house benefits from gas central heating and double glazing, and offers generous built-in storage and well-proportioned rooms throughout. The rear garden is level with established shrubs and a garden shed included in the sale. Commuters will find good road links via the nearby M90 to Perth and Dunfermline.
Practical considerations: the property has a single shower room only and is Band E for council tax, which is above average. The interior and fittings reflect their mid‑20th‑century origins and will suit buyers happy to modernise cosmetic elements to suit contemporary tastes. The wider area is classified with higher local deprivation indices, so buyers seeking premium local services should check specific needs.
Overall this is a solid, well-located family home offering immediate liveability with scope to update and personalise. It will particularly suit families wanting proximity to schooling and green spaces, or buyers seeking a stable, freehold home with good commuter access.
3 bedroom detached house for sale in 20, Beveridge Place, Kinross, KY13 8QY, KY13 — £259,000 • 3 bed • 1 bath • 1203 ft²
4 bedroom detached house for sale in 127 Lathro Park, Kinross, KY13 — £360,000 • 4 bed • 2 bath • 1238 ft²
5 bedroom detached house for sale in 34 Gallowhill Road, Kinross, KY13 — £410,000 • 5 bed • 3 bath • 1746 ft²
4 bedroom detached house for sale in 37 Argyll Road, Kinross, KY13 — £290,000 • 4 bed • 2 bath • 1316 ft²
3 bedroom semi-detached house for sale in 18 Emslie Drive Kinross KY13 8TR, KY13 — £185,000 • 3 bed • 1 bath • 1011 ft²
4 bedroom detached house for sale in 18 Sandport, Kinross, KY13 — £330,000 • 4 bed • 2 bath • 1179 ft²






















































