Over 3,000 sq ft family house with south garden and double garage..
- Over 3,000 sq ft of versatile family living space
- Principal suite with dressing room and five-piece en suite
- Two reception rooms opening onto a south-facing rear garden
- Top-floor versatile space ideal for home office or retreat
- Detached double garage with power, lighting and parking
- Built 2007–2011 with double glazing and underfloor heating
- Chain-free freehold in sought-after village location
- Council Tax Band E (above average); some photos pre-tenant
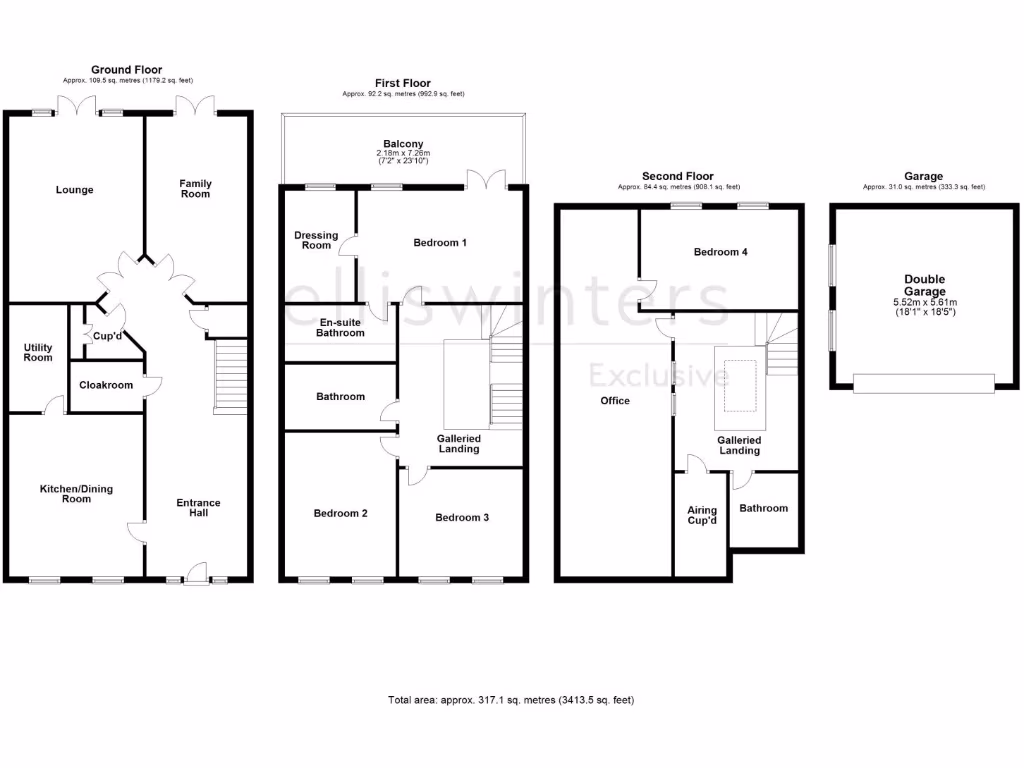
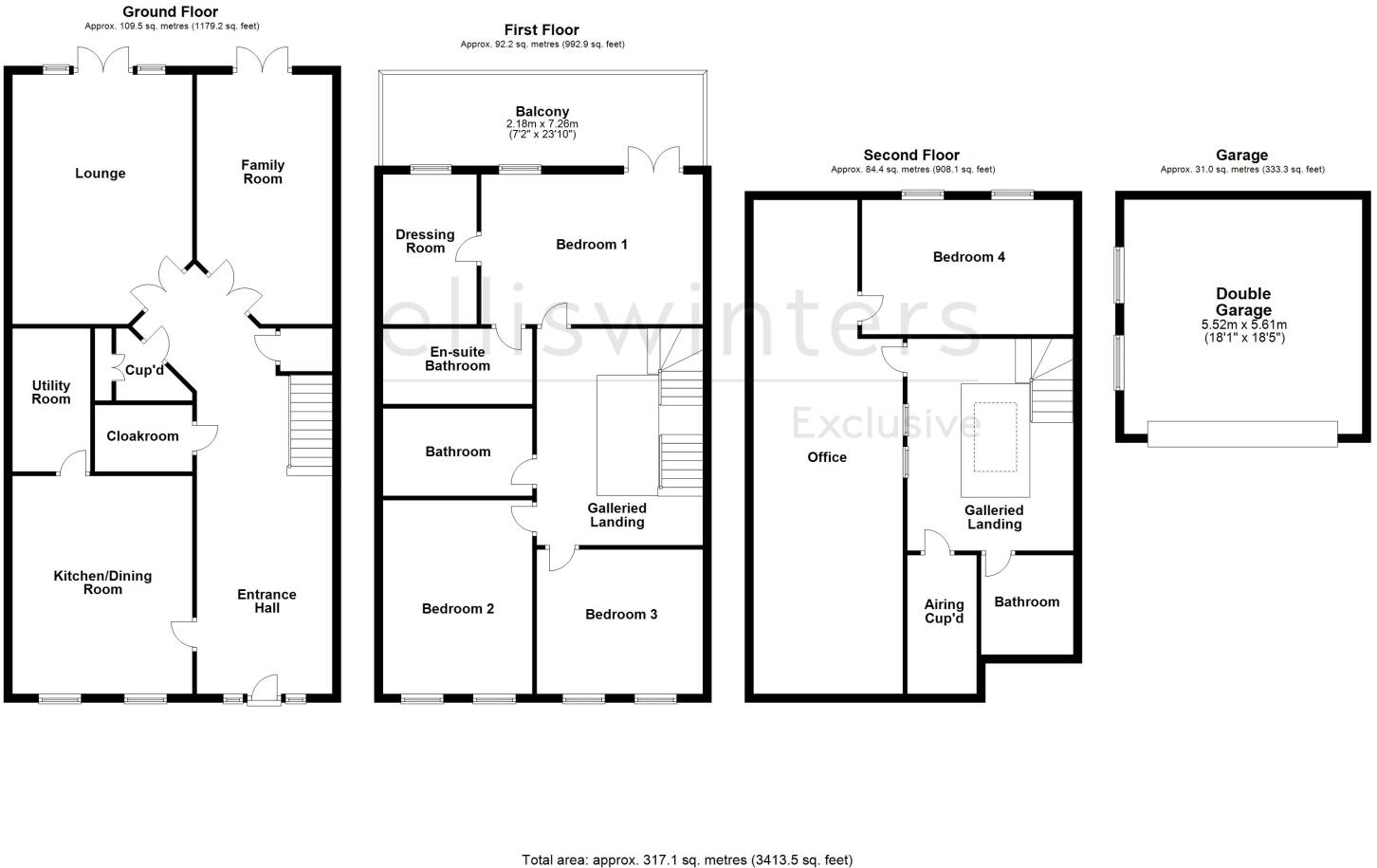
This spacious, chain-free family house offers more than 3,000 sq ft of flexible living across three floors, arranged around a striking galleried entrance hall and skylight. The principal suite includes a dressing room and five-piece en suite, while three further double bedrooms and two reception rooms provide comfortable, adaptable family space. A large south-facing rear garden, double garage with power and off-road parking complete the plot.
The layout suits families who need separate reception and work zones: the ground floor kitchen/diner and two reception rooms open via double doors onto the garden, and the top-floor versatile area works well as a home office, hobby room or teenager retreat. Built between 2007–2011, the house benefits from modern construction, double glazing, mains gas central heating with underfloor heating, and fast broadband.
Practical points to note: the property is freehold and chain-free, in a sought-after village location with low crime, excellent mobile signal and good access to Huntingdon and Cambridge. Council Tax sits at Band E, and some internal photos shown were taken prior to a tenant moving in October 2023. A viewing is recommended to fully appreciate scale, finish and garden orientation.
4 bedroom detached house for sale in Hill Estate, Houghton, PE28 — £450,000 • 4 bed • 2 bath • 1213 ft²
4 bedroom detached house for sale in Selesa House, Meadow Lane, Houghton, Huntingdon, Cambridgeshire, PE28 2BP, PE28 — £850,000 • 4 bed • 3 bath • 2063 ft²
4 bedroom semi-detached house for sale in Brookside, Houghton, PE28 — £425,000 • 4 bed • 3 bath • 1657 ft²
4 bedroom penthouse for sale in The Elms, Houghton, Huntingdon, Cambridgeshire, PE28 — £600,000 • 4 bed • 2 bath • 1700 ft²
4 bedroom detached house for sale in Houghton Hill, Houghton, PE28 — £800,000 • 4 bed • 2 bath • 1410 ft²
4 bedroom detached house for sale in How Gardens, The How, St Ives, PE27 — £950,000 • 4 bed • 4 bath • 3057 ft²


























































































































