Move-in ready flat close to fast rail links and local amenities.
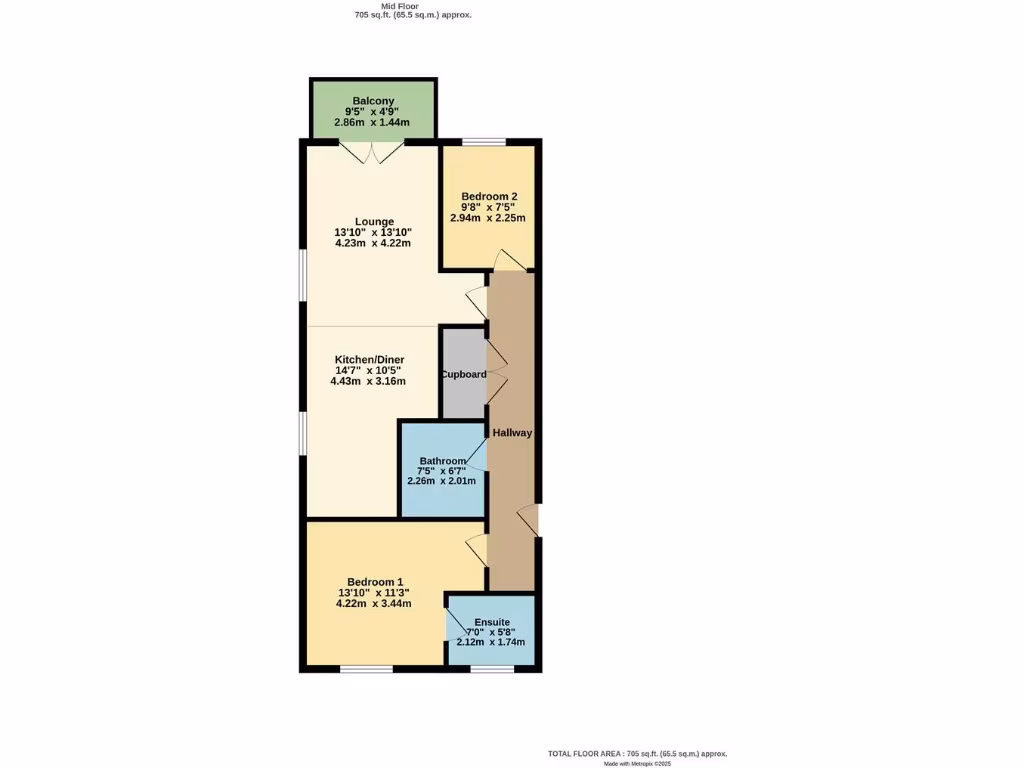
- Two bedrooms, master with en suite
- Private balcony with communal green outlook
- Allocated off-street parking space included
- Newly renovated and presented in good condition
- 119 years remaining on lease (leasehold)
- Service charge approx £1,450 per year, ground rent £150
- Electric room heaters (no gas central heating)
- Excellent transport links; ~10-minute walk to Erith station
Set on the second floor of a modern 2019 development, this two-bedroom apartment is newly renovated and move-in ready. The bright lounge opens onto a private balcony, and the master bedroom benefits from an en suite, making the layout practical for daily living. Allocated off-street parking and communal areas add convenience for owners.
The property is a sensible choice for first-time buyers or young professionals commuting to central London — Erith station is about a ten-minute walk with direct services into the city, and local shops and schools are close by. The flat has fast broadband and excellent mobile signal, supporting home working and streaming.
Buyers should note this is a leasehold home: approximately 119 years remain, with an average service charge around £1,450pa and ground rent circa £150pa. Heating is by electric room heaters rather than gas central heating, which may affect running costs. The wider area shows higher deprivation indices despite good amenities and schools nearby.
Overall this apartment offers contemporary, low-maintenance living in a well-located development — attractive to those seeking a straightforward first purchase with long lease security and immediate occupation possible.
2 bedroom apartment for sale in Bellingham Court, Erith, DA8 — £270,000 • 2 bed • 2 bath • 735 ft²
2 bedroom flat for sale in Callender Road, Erith, DA8 — £280,000 • 2 bed • 1 bath • 819 ft²
2 bedroom flat for sale in Stoneham Court, Dell View Road, Erith, Kent, DA8 — £300,000 • 2 bed • 1 bath • 765 ft²
2 bedroom apartment for sale in Callender Road, Erith, DA8 — £270,000 • 2 bed • 1 bath • 785 ft²
2 bedroom flat for sale in Gala Court, 83 Erith High Street, Erith, Kent, DA8 — £300,000 • 2 bed • 1 bath • 802 ft²
2 bedroom flat for sale in Cricketers Close, Northumberland Heath, Erith, DA8 — £240,000 • 2 bed • 1 bath • 582 ft²


































































