UB10 9PP - 1 bedroom retirement property for sale in Magnolia Court, A…

View on Property Piper

1 bedroom retirement property for sale in Magnolia Court, Auriol Drive, Hillingdon, UB10

Summary - 37 MAGNOLIA COURT UXBRIDGE UB10 9PP

1 bed 1 bath Retirement Property

**Standout Features:**
- One bedroom, ground floor apartment located in a retirement community (over 60s)
- Warden controlled with emergency alarm system
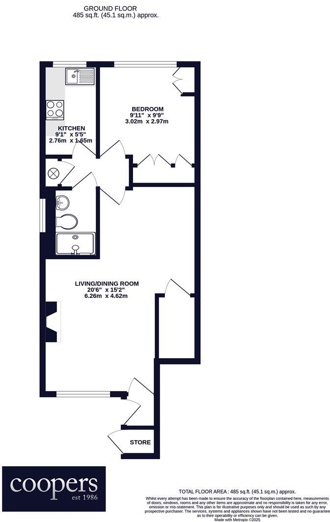
- Spacious 20ft living/dining room
- Conveniently located near local amenities and recreational facilities
- Off-street parking and communal gardens

**Summary:**
Discover the ideal retirement haven in this charming one-bedroom ground floor apartment at Magnolia Court, nestled along the peaceful Auriol Drive in North Hillingdon. Designed for comfort and safety, the property benefits from warden oversight and an emergency alarm system, offering peace of mind to residents. The generous 20ft living/dining room provides an inviting space for relaxation or entertaining, complemented by a functional 9ft kitchen and cozy 9ft bedroom.

Embrace a vibrant community lifestyle with access to well-regarded schools, recreational facilities including Hillingdon Golf and Cricket Club, as well as the amenities of Uxbridge Town Centre just a short distance away. Enjoy nature in the communal gardens or take advantage of the off-street parking. Please note that this leasehold property comes with an average overall size of around 485 square feet and may require minor updates to suit personal tastes, presenting a rare opportunity to create a comfortable home tailored to your preferences. With its appealing price of £179,950 in an affluent area, an opportunity like this won’t last long!

Property Details

Brochure Descriptions

Image Descriptions

Floorplan Description

Rooms

Textual Property Features

Detected Visual Features

EPC Details

Nearby Schools

Nearest Bars And Restaurants

,,,,}

Nearest General Shops

,,}

Nearest Grocery shops

,,}

Nearest Supermarkets

,,}

Nearest Religious buildings

,,}

Nearest Medical buildings

,,,}

Nearest Airports

}

Nearest Leisure Facilities

,,,,}

Nearest Tourist attractions

,,}

Nearest Train stations

,,,,}

Nearest Bus stations and stops

,,,,}

Nearest Hotels

,,}

Tags

Local Market Stats

AirBnB Data

Similar Properties

Meta

High Res Images

Compatible Images

Low res Images

Thumbnails

Raw Images

High Res Floorplan Images

Compatible Floorplan Images

Low res Floorplan Images

FloorplanImages Thumbnail

Raw Floorplan Images