**Standout Features:**
- Spacious 3-storey semi-detached character house
- No chain, ideal for quick movers
- Driveway for 1 car and large, established rear garden
- Located within walking distance to Reigate town center and train station
- Fitted kitchen with built-in appliances, gas central heating
- Potential for extension to 4 bedrooms, subject to planning permission
- Close proximity to highly-rated schools for families
**Property Summary:**
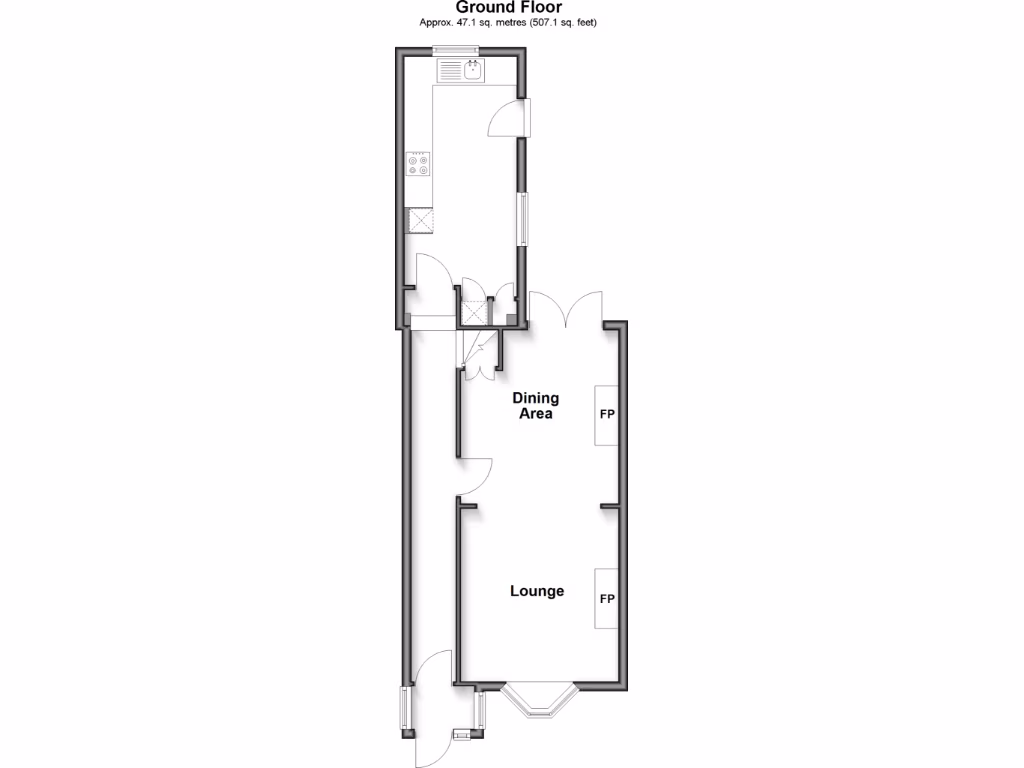
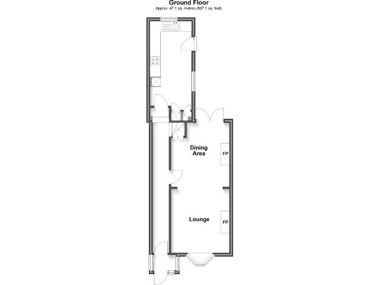
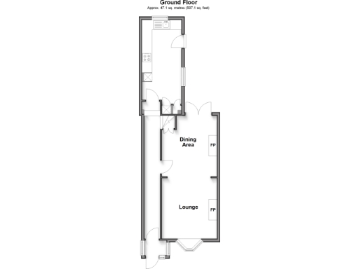
Discover a charming Victorian-era, 3-storey semi-detached home that invites both relaxation and potential. As you explore this inviting property, you'll appreciate the spacious lounge with a feature fireplace, a cozy dining area complete with a wood burner, and a fitted kitchen—all perfect for family gatherings. Enjoy the luxury of a large private rear garden and the convenience of an off-street driveway.
This three-bedroom residence currently boasts sufficient space to meet family needs, with the added advantage of having scope for improvement and expansion. With potential planning permission, envision transforming it into a four-bedroom home, tailored to your family's lifestyle. Nestled in a prime location, the house offers easy access to essential amenities, schools, and transportation links, making it a fantastic option for families and young professionals alike.
However, be mindful of low insulation specifics and boiler heating, which might require an update for energy efficiency. The property’s average size and age may present opportunities for tasteful renovations tailored to modern living standards. Don’t miss out on the chance to make this unique family home your own—schedule a viewing today!
2 bedroom semi-detached house for sale in Holmesdale Road, Reigate, Surrey, RH2 — £499,950 • 2 bed • 1 bath • 719 ft²
2 bedroom semi-detached house for sale in The Clears, Reigate, Surrey, RH2 — £650,000 • 2 bed • 1 bath • 925 ft²
3 bedroom semi-detached house for sale in Prices Lane, Reigate, Surrey, RH2 — £550,000 • 3 bed • 1 bath • 872 ft²
3 bedroom terraced house for sale in Gatton Road, Reigate, Surrey, RH2 — £650,000 • 3 bed • 1 bath • 1523 ft²
3 bedroom semi-detached house for sale in Ashdown Road, Reigate, Surrey, RH2 — £475,000 • 3 bed • 1 bath • 883 ft²
3 bedroom semi-detached house for sale in Doods Park Road, Reigate, Surrey, RH2 — £650,000 • 3 bed • 1 bath • 1146 ft²






















































































































