Comfortable period home with garden, garage and extension potential.
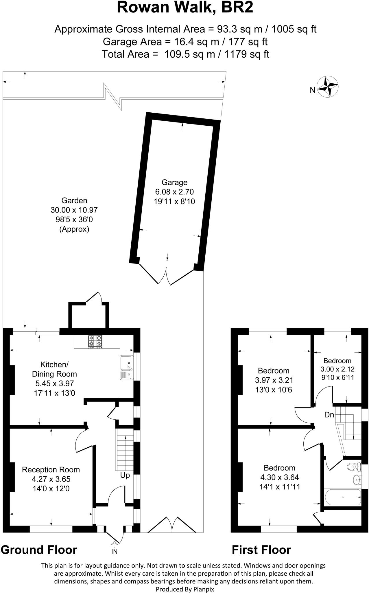
Chain free three-bedroom semi-detached on a large plot
Detached garage plus off-street driveway parking
Modern kitchen and bathroom, ready to use
Sliding doors to mature rear garden, good outdoor space
Potential to extend/develop subject to usual planning permissions
EPC D — energy improvements recommended for lower bills
Solid brick construction; likely no cavity wall insulation
One family bathroom only; may need adapting for some buyers
This chain-free, three-bedroom semi sits on a large plot in sought-after Rowan Walk, a short walk from Locksbottom parade and local schools. The house is tidy inside with a modern kitchen and bathroom, plus a generous rear garden and detached garage — practical for parking and storage.
The layout is straightforward: entrance hall, front reception, dining room with sliding doors to the garden, and a contemporary kitchen on the ground floor; three bedrooms and a bathroom on the first floor. The property is average-sized (approx. 1,005 sq ft), easy to manage and suited to someone looking to downsize without losing outdoor space.
There is clear scope to extend or redevelop, subject to usual planning permissions (STPP), which will appeal to buyers wanting extra space or upside. Notable running items include an EPC rating of D and solid brick walls likely lacking cavity insulation — energy improvements would be required to boost efficiency and lower bills.
Overall this is a well-presented period home offering immediate occupancy with realistic improvement potential. Its location, plot size and transport links to Bromley, Orpington and London make it a good option for buyers seeking a comfortable, long-term home or a small-scope investment.
3 bedroom semi-detached house for sale in Rowan Walk, Bromley, Kent, BR2 — £700,000 • 3 bed • 1 bath • 1208 ft²
3 bedroom terraced house for sale in Wellbrook Road, Orpington, BR6 — £495,000 • 3 bed • 1 bath • 846 ft²
3 bedroom semi-detached house for sale in Beverley Road, Bromley, Kent, BR2 — £750,000 • 3 bed • 2 bath • 1307 ft²
3 bedroom semi-detached house for sale in Hilda Vale Road, Orpington, Kent, BR6 — £635,000 • 3 bed • 1 bath • 985 ft²
3 bedroom detached house for sale in Rowan Walk, Bromley, BR2 — £899,000 • 3 bed • 2 bath • 1227 ft²
3 bedroom semi-detached house for sale in The Crescent, West Wickham, BR4 — £675,000 • 3 bed • 1 bath • 873 ft²














































































