Roomy one‑bed ground floor flat with gardens and parking — long lease, ideal for first buyers or investors..
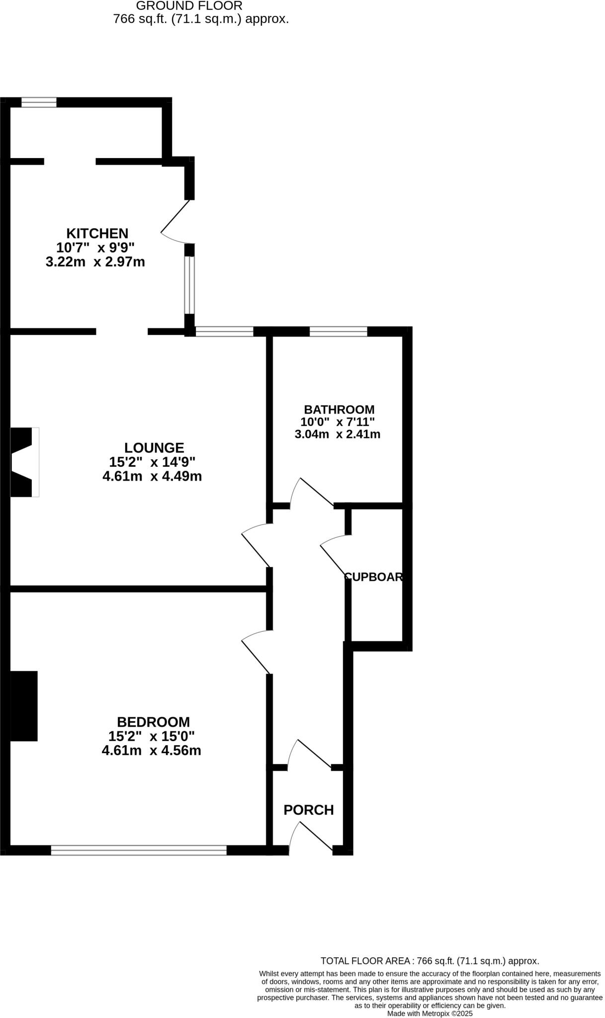
Large ground‑floor one‑bed flat (approx. 766 sq ft)
962 years remaining on lease — long leasehold security
Private front (south‑facing) and rear gardens
Off‑street parking for one car via gated courtyard
Close to shops, buses, and links to Whitley Bay/Newcastle
EPC D; built 1930s — may benefit from cosmetic updating
Area described as deprived with higher local crime levels
Council tax band A — very low running cost
Set on the ground floor of a period terrace, this large one‑bed flat offers surprisingly generous living space (approx. 766 sq ft) with private front and rear gardens and off‑street parking. The long lease (962 years remaining), gas central heating and UPVC double glazing make it a practical purchase for a first home or a straightforward rental letting.
The accommodation includes a wide hallway with storage, a large double bedroom with fitted wardrobes, a bright living room with a feature fireplace, a fitted kitchen with utility area, and a bathroom with separate shower. The south‑facing front garden brings natural light to the principal rooms and the enclosed rear courtyard gives private outdoor space and direct access to the parking bay.
Location is a key draw: the property sits on pedestrianised Hayward Avenue in Seaton Delaval with easy access to local shops, frequent buses and direct routes to Whitley Bay, Blyth and Newcastle. Nearby schools and recreational facilities suit young families or professionals seeking coastal access and commuter links.
Buyers should note the wider area scores as deprived with higher local crime levels; this will be an important factor for some purchasers. EPC rating D and the property’s age (c.1930–49) mean cosmetic updating or modernisation may suit buyers wanting to add value. Overall this is a roomy, well‑located ground floor flat with long lease security — good for first‑time buyers or investors willing to trade some local risk for size and location.
1 bedroom flat for sale in Astley Road, Seaton Delaval, Whitley Bay, Northumberland, NE25 — £60,000 • 1 bed • 1 bath • 656 ft²
1 bedroom ground floor flat for sale in Acomb Avenue, Seaton Delaval, NE25 — £49,950 • 1 bed • 1 bath • 388 ft²
2 bedroom ground floor flat for sale in Avenue Road, Seaton Delaval, Whitley Bay, Northumberland, NE25 0DT, NE25 — £114,950 • 2 bed • 1 bath • 699 ft²
1 bedroom flat for sale in Tynemouth Road, North Shields, NE30 — £90,000 • 1 bed • 1 bath • 593 ft²
2 bedroom flat for sale in Hayward Avenue, Seaton Delaval,, NE25 — £135,000 • 2 bed • 1 bath • 750 ft²
3 bedroom flat for sale in Hartburn Terrace, Seaton Deleval, NE25 — £90,000 • 3 bed • 1 bath • 980 ft²










































































