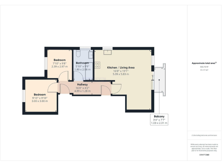
**Standout Features:**
- **Modern First-Floor Apartment:** Spacious 2-bedroom layout with smart open-plan living area.
- **Prime Location:** Close to Menai Strait, ideal for boating enthusiasts; vibrant local dining and shopping options like Waitrose.
- **Convenience:** Lift access, allocated off-road parking, and visitor spaces.
- **No Onward Chain:** Move-in ready with additional contents available for negotiation.
- **Potential Concerns:** No Airbnb or holiday lets allowed; service charge of £1,300 pa which includes general maintenance.
Discover a superbly presented first-floor apartment at Menai Quays, perfectly suited for first-time buyers or small families seeking comfort and convenience in the charming town of Menai Bridge. This thoughtfully designed two-bedroom flat boasts an attractive open-plan living area with modern finishes, ensuring ample space for relaxation and entertaining. Enjoy sliding doors that lead to a south-facing balcony with glimpses of the Menai Strait—ideal for unwinding with a view.
Nestled in a vibrant community, the property is just a short walk from local restaurants, pubs, and the popular Waitrose store. With allocated off-road parking and easy access to major transport routes, this low-maintenance apartment offers a blend of tranquility and lifestyle. While the prohibition on holiday lets may limit rental potential, its prime location near recreational and leisure activities provides lasting appeal. The property is available chain-free—act quickly to seize this coveted opportunity in a thriving area known for its scenic beauty and community spirit.
2 bedroom apartment for sale in Menai Quays, Menai Bridge, Isle of Anglesey, LL59 — £250,000 • 2 bed • 1 bath • 535 ft²
2 bedroom apartment for sale in Yr Hen Ysgol, Pentraeth Road, Menai Bridge, LL59 — £395,000 • 2 bed • 2 bath • 718 ft²
2 bedroom flat for sale in Menai Quay, Menai Bridge, Anglesey, Sir Ynys Mon, LL59 — £295,000 • 2 bed • 2 bath • 2459 ft²
2 bedroom flat for sale in Glyn Garth Court, Menai Bridge, Isle of Anglesey, LL59 — £250,000 • 2 bed • 1 bath • 1009 ft²
2 bedroom apartment for sale in Menai Quays, Menai Bridge, Isle Of Anglesey, LL59 — £295,000 • 2 bed • 2 bath • 2297 ft²
1 bedroom flat for sale in Wood Street, Menai Bridge, LL59 — £105,000 • 1 bed • 1 bath • 397 ft²


































































































