**Standout Features:**
- Three-bedroom semi-detached house
- Off-street parking and attached garage
- Modern family bathroom
- Large plot with room for outdoor activities
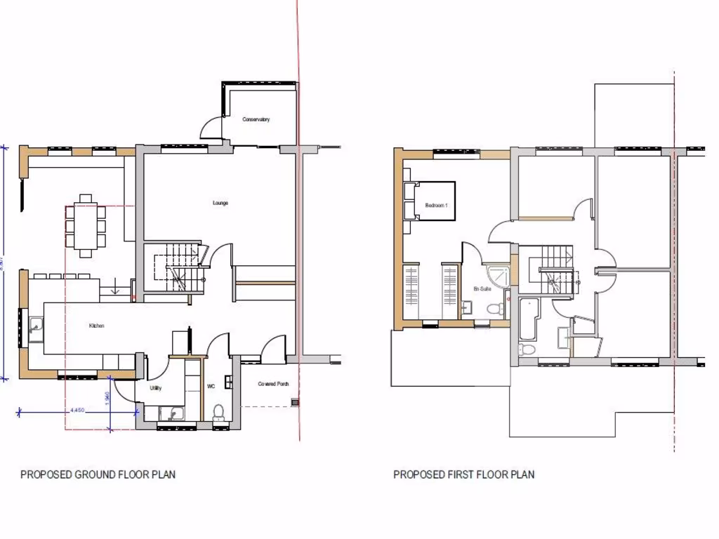
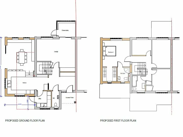
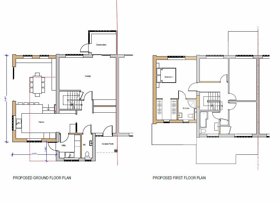
- Planning permission for a double-storey extension
- Located in a quiet, family-friendly neighborhood
- Close proximity to highly-rated schools
This charming three-bedroom semi-detached house in North Baddesley is perfect for families looking for space and potential. Set on a large plot, the property boasts off-street parking and a garage, along with a modern family bathroom that enhances convenience and comfort. With planning permission already in place for a double-storey extension, you have the unique opportunity to expand this home to suit your family's needs.
Enjoy the tranquility of a suburban lifestyle while being just steps away from green spaces and excellent local amenities. The area benefits from very low crime rates and fast broadband, making it ideal for both family living and remote work. Nearby schools, including North Baddesley Junior School and The Romsey School, have received good Ofsted ratings, assuring quality education for your children.
While the home is in good condition, it offers future renovation potential that allows you to personalize it to your taste. Don’t miss out on this opportunity to create your dream family home in a desirable location—properties like this don’t stay on the market long!
3 bedroom semi-detached house for sale in Ringwood Drive, North Baddesley, Southampton, Hampshire, SO52 — £360,000 • 3 bed • 1 bath • 834 ft²
5 bedroom semi-detached house for sale in Launcelyn Close, North Baddesley, Southampton, Hampshire, SO52 — £475,000 • 5 bed • 2 bath • 1370 ft²
4 bedroom detached house for sale in Ringwood Drive, North Baddesley, Southampton, Hampshire, SO52 — £425,000 • 4 bed • 1 bath • 3010 ft²
5 bedroom semi-detached house for sale in Tottehale Close, North Baddesley, Hampshire, SO52 — £450,000 • 5 bed • 1 bath • 1235 ft²
3 bedroom semi-detached house for sale in Rownhams Road, North Baddesley, Southampton, Hampshire, SO52 — £300,000 • 3 bed • 1 bath • 686 ft²
3 bedroom semi-detached house for sale in Ringwood Drive, North Baddesley, Hampshire, SO52 — £365,000 • 3 bed • 1 bath • 883 ft²






















































