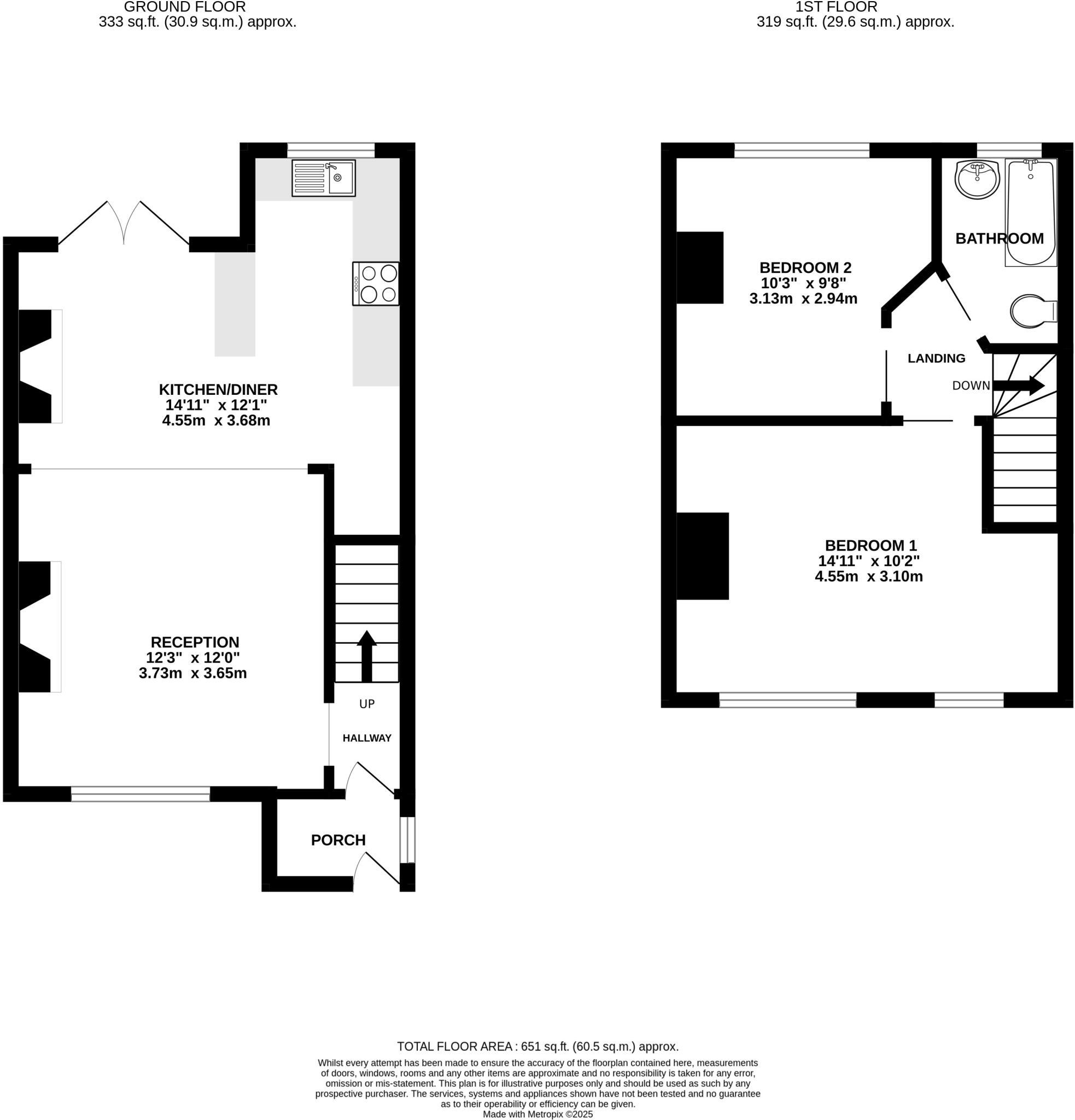
**Standout Features:**
- Semi-detached house with 2 bedrooms and 1 bathroom
- Open-plan lounge, dining, and kitchen area
- Large, private garden with decked area
- Off-street parking for multiple vehicles
- Potential for extension (subject to planning permission)
- Close to essential amenities and major transport links
- Located in a family-friendly neighborhood with excellent local schools
This charming semi-detached house in HA4 0RB presents an inviting opportunity for families, young professionals, or those looking to downsize. With a well-planned interior boasting an open-concept living space, the property is designed for comfort and functionality. The spacious garden, which offers a serene retreat with lovely views, is perfect for outdoor gatherings or children's playtime.
With two comfortably sized bedrooms upstairs and a well-appointed bathroom, you'll find ample room for relaxation or work-from-home setups. Off-street parking adds to the convenience of this lovely home. The property is nestled in a vibrant community, with easy access to local schools rated 'Good' by Ofsted and transport links to the Metropolitan, Piccadilly, and Central Lines.
While the property requires no major renovations, the potential for personalization and expansion underscores its long-term value. Situated in an affluent and low-crime area, this home is a rare find that combines comfort, convenience, and future potential. Don't miss your chance to make this charming property your own!
3 bedroom semi-detached house for sale in Southcote Rise, Ruislip, HA4 — £635,000 • 3 bed • 1 bath • 1153 ft²
4 bedroom terraced house for sale in Torbay Road, Harrow, HA2 — £625,000 • 4 bed • 2 bath • 1097 ft²
2 bedroom semi-detached house for sale in St. Christopher Road, Uxbridge, UB8 — £415,000 • 2 bed • 1 bath • 726 ft²
3 bedroom semi-detached house for sale in Cranmer Close, Ruislip, HA4 — £725,000 • 3 bed • 1 bath • 1115 ft²
3 bedroom semi-detached house for sale in Mount Pleasant, Harefield, Uxbridge, UB9 — £475,000 • 3 bed • 1 bath • 959 ft²
4 bedroom semi-detached house for sale in Perry Close, Uxbridge, Middlesex, UB8 — £679,950 • 4 bed • 2 bath • 1572 ft²


























































