LN11 8SB - 4 bedroom detached house for sale in Stewton Lane, Louth, L…

View on Property Piper

4 bedroom detached house for sale in Stewton Lane, Louth, LN11

Summary - Stewton Lane, Louth LN11 8SB

4 bed 3 bath Detached

Spacious new-build 4-bed detached with garage, games room and EPC-focused heating.
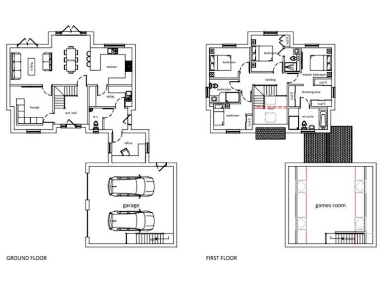
Four double bedrooms with two en-suites and family bathroom
Large open-plan kitchen/dining/living room with garden access
Underfloor heating throughout via Daikin air source heat pump
Double garage with first-floor games room and separate access
Option to choose kitchen and wardrobes prior to completion
Block-paved driveway, enclosed rear garden, patio and lawns
Developer sale terms: non-refundable deposit and tight 8-week completion
Area flagged as more deprived; council tax band not yet confirmed
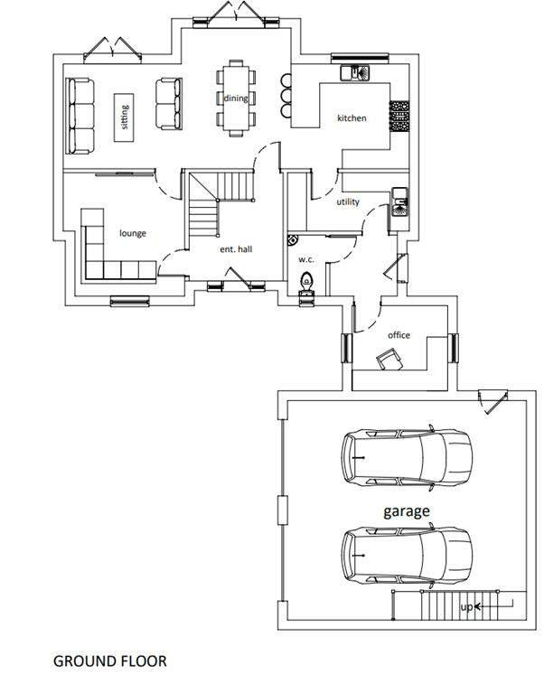
An executive four-bedroom detached house currently in the final stages of construction on Stewton Lane, Louth, offering about 2,500 ft² of living space across two storeys. The home is designed to modern specification with underfloor heating throughout, a Daikin air source heat pump, high-quality ground-floor porcelain tiles, oak internal doors and the option to influence kitchen and fitted-wardrobe finishes before completion. A double garage with a first-floor games room, office space, and a large private plot make this a practical family-focused home with room to adapt.

The layout centres on a long open-plan kitchen/dining/living space with two sets of patio doors to the garden, a separate lounge, office and utility; upstairs are four bedrooms, two en-suites and a family bathroom. Practical benefits include super-fast broadband to every room, double glazing, electrically operated Velux windows with blinds, full bathroom tiling and wiring provision for an alarm system. External finishes include a block-paved driveway, enclosed rear garden, patio and feather-edged fencing.

Important buyer notes: the property is new-build and some services and installations have not been inspected — purchasers should arrange their own survey. There is a limited-time developer contribution toward stamp duty (up to £25,000) and a sales process that requires a non-refundable deposit with completion expected within eight weeks of instructing conveyancers; these conditions may not suit every buyer. Council tax band is not yet confirmed and the wider local area scores as more deprived despite low crime and low flood risk.

This house suits buyers seeking a large, energy-efficient family home in Louth with modern fittings and scope to personalise finishes. It will particularly appeal to those who want move-in-ready new-build specification combined with generous garden and garage space, but who accept the sales and timing constraints attached to this developer-led sale.

Property Details

Brochure Descriptions

Image Descriptions

Floorplan Description

Rooms

Textual Property Features

Target Audience

AI Tags

Detected Visual Features

Nearby Schools

Nearest Bars And Restaurants

,,,,}

Nearest General Shops

,,}

Nearest Grocery shops

,,}

Nearest Supermarkets

,,}

Nearest Religious buildings

,,}

Nearest Medical buildings

,,,}

Nearest Leisure Facilities

,,,,}

Nearest Tourist attractions

,,}

Nearest Train stations

,,,,}

Nearest Bus stations and stops

,,,,}

Nearest Hotels

,,}

Tags

Local Market Stats

Similar Properties

Meta

High Res Images

Compatible Images

Low res Images

Thumbnails

Raw Images

High Res Floorplan Images

Compatible Floorplan Images

Low res Floorplan Images

FloorplanImages Thumbnail

Raw Floorplan Images