Two-bedroom flat with garage and renovation potential near West Finchley station.
Share of freehold with a very long lease (949 years)
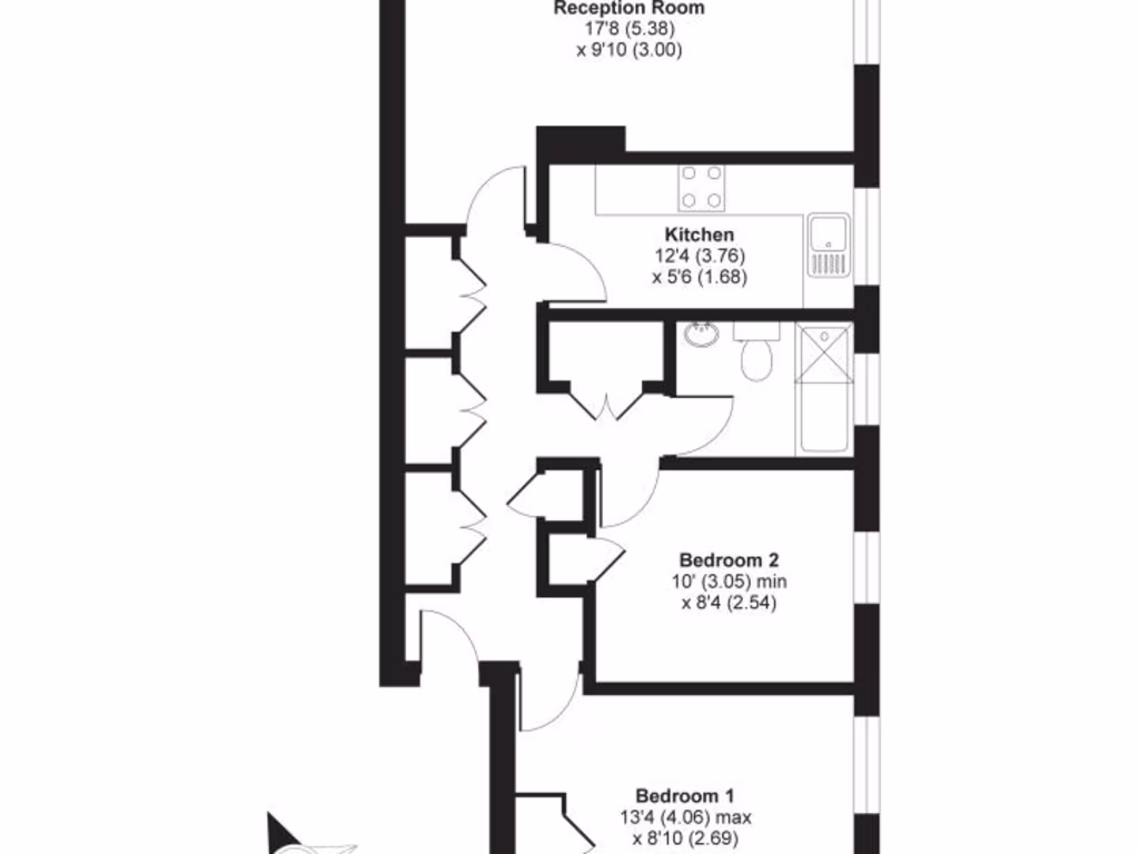
A two-bedroom raised ground-floor flat offering straightforward potential in North Finchley. The apartment comes with a long lease (949 years) and a rare share of freehold, giving security for buyers and investors. Practical extras include a garage, allocated parking space and access to a communal garden.
The interior is bright with large windows and neutral finishes but needs renovation to reach modern standards. The current EPC is D and some updating of kitchen, bathroom and decoration is required — a good opportunity to add value through improvement. Service charge is approximately £2,682 per year and council tax band is D.
Positioned close to West Finchley Underground Station and within the Moss Hall school catchment, this flat suits first-time buyers wanting transport links and schooling nearby, or buy-to-let investors targeting rental demand in an affluent, well-connected area. Be mindful of above-average local crime figures and the apartment’s moderate internal size when assessing suitability.
2 bedroom flat for sale in Woodside Park Road, London, N12 — £500,000 • 2 bed • 1 bath • 782 ft²
2 bedroom flat for sale in Nether Street, Finchley, N3 — £375,000 • 2 bed • 1 bath • 694 ft²
2 bedroom ground floor flat for sale in Glenhurst Road, London, N12 — £480,000 • 2 bed • 1 bath • 631 ft²
2 bedroom apartment for sale in Charter Way, London, N3 — £399,950 • 2 bed • 1 bath • 924 ft²
1 bedroom flat for sale in Nether Street, London, N3 — £285,000 • 1 bed • 1 bath • 615 ft²
2 bedroom flat for sale in Pamela Court, Moss Hall Grove, London, N12 — £435,000 • 2 bed • 1 bath • 686 ft²






































