Large 140ft garden and flexible three-level layout for family living.
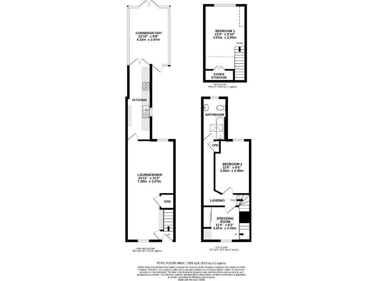
Extended three-storey period terrace with 1,009 sq ft overall
This extended three‑storey period terrace offers substantial living space and an exceptional long rear garden of approximately 140ft — a rare asset for this property type. The ground floor has an open-plan lounge/diner and a conservatory that bring light into the rear, while the second floor provides a generous principal bedroom with eaves storage. Practical touches include double glazing and a gas boiler with radiator heating.
The layout suits couples or small families seeking outdoor space and scope to add value. A dressing room/home office provides flexible use, and the overall footprint is deep rather than wide, giving defined living zones across three levels. Local schools are well regarded and public transport links are within walking distance.
Buyers should be aware of material considerations: the terrace is of solid brick construction with no known wall insulation, so upgrading thermal performance would be a sensible next step. Parking is on-street only and the area records a very high crime rate, which may affect insurance and security choices. The property is presented with modernised ground-floor finishes but still offers clear potential for further updating to increase value.
Freehold tenure and a motivated seller add practical advantages to moving quickly. This home will appeal to purchasers who prioritise a large private garden and adaptable internal space, and who are prepared to invest in energy improvements and security measures to make the most of the property’s strong bones and location.
3 bedroom end of terrace house for sale in Carnforth Gardens, HORNCHURCH, Essex, RM12 — £470,000 • 3 bed • 1 bath • 935 ft²
3 bedroom end of terrace house for sale in Dorking Road, Romford, RM3 — £425,000 • 3 bed • 1 bath • 1102 ft²
3 bedroom semi-detached house for sale in Albany Road, Hornchurch, RM12 — £625,000 • 3 bed • 2 bath • 1404 ft²
2 bedroom end of terrace house for sale in Deere Avenue, Rainham, RM13 — £450,000 • 2 bed • 1 bath • 1251 ft²
2 bedroom terraced house for sale in Elm Park Avenue, Hornchurch, RM12 — £375,000 • 2 bed • 1 bath • 740 ft²
3 bedroom semi-detached house for sale in St. Andrews Avenue, Hornchurch, RM12 — £525,000 • 3 bed • 1 bath • 1076 ft²






























































