Rare plot with extension potential near direct rail links to London.
Chain free freehold on a large plot with approx. 100ft rear garden
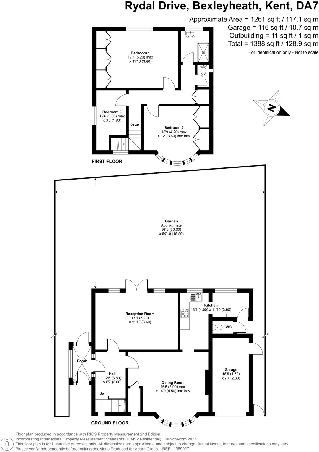
Set on a rare, substantial plot on Rydal Drive, this detached 1950s home offers a large private garden backing onto scenic woods and parkland. Chain-free and freehold, the property includes two reception rooms, three bedrooms, an integral garage and driveway. A recently installed combination boiler provides immediate heating reassurance. The house is well placed for commuters, with Barnehurst station and direct services to central London within easy reach.
The interior requires modernisation throughout, presenting strong scope to extend (subject to planning) and reconfigure living space to suit a growing family or developer project. The wide rear garden (approximately 100ft) could accommodate a double-storey wraparound extension, annex, or extensive landscaping for outdoor entertaining. The side driveway could be reinstated or widened to increase parking and kerb appeal.
Practical considerations are straightforward: the property is built with cavity walls and is assumed to lack insulation, and the layout includes a single family bathroom. Council tax is high and the home will need updating to current standards — windows are double glazed but install date is unknown. These are realistic renovation items for buyers planning to add value.
Local amenities and schools are close by, including several highly rated primaries and convenient shops. For buyers seeking a significant plot in a comfortable suburban setting with excellent transport links, this property offers rare potential to create a bespoke family residence.
4 bedroom detached house for sale in Lion Road, Bexleyheath, DA6 — £750,000 • 4 bed • 1 bath
3 bedroom semi-detached house for sale in Parkhurst Road, Bexley, DA5 — £750,000 • 3 bed • 1 bath • 995 ft²
3 bedroom detached house for sale in The South Glade, Bexley, DA5 — £550,000 • 3 bed • 2 bath • 1129 ft²
4 bedroom detached house for sale in Glenhurst Avenue, Bexley, DA5 — £850,000 • 4 bed • 2 bath • 1788 ft²
5 bedroom semi-detached house for sale in Woolwich Road, Bexleyheath, DA7 — £650,000 • 5 bed • 2 bath • 1093 ft²
4 bedroom semi-detached house for sale in Grasmere Road, Bexleyheath, DA7 — £525,000 • 4 bed • 2 bath














































































