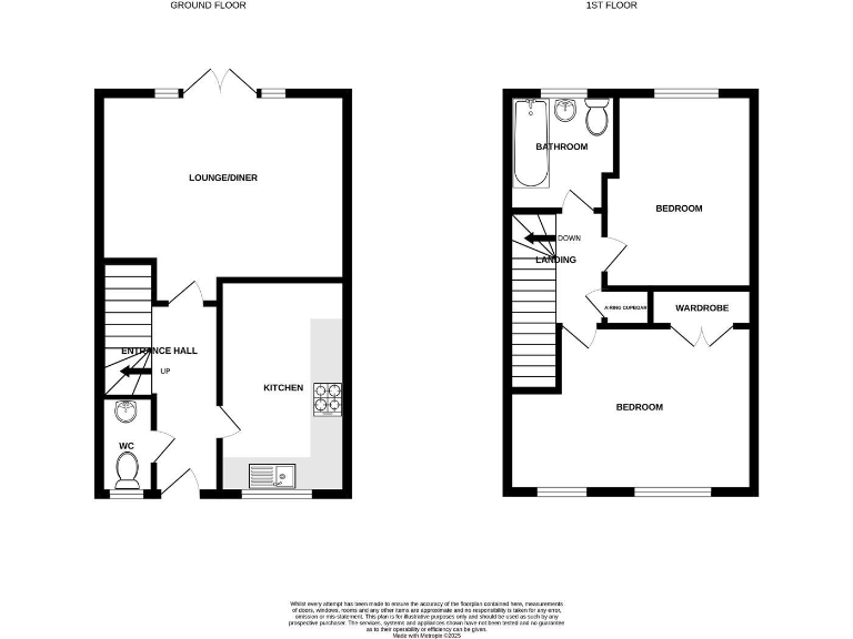
**Standout Features:**
- Well-presented mid-terrace house in a quiet Norwich neighborhood
- Two bedrooms and a spacious lounge/diner
- Off-road parking and a large, serene rear garden
- Close proximity to the University, Hospital, and local amenities
- Freehold with no chain, ideal for first-time buyers or investors
- Excellent condition with double glazing and gas heating
**Potential Downsides:**
- Small overall size (614 sq ft), which may not suit larger families
- Kitchen may require updating
This charming, well-maintained mid-terrace house offers an excellent opportunity for first-time buyers or investors seeking a reliable rental near essential amenities. Boasting two bedrooms and a bright lounge/diner, the home combines modern living with comfort. The practical kitchen provides functionality while awaiting a personal touch, and the spacious rear garden is perfect for entertaining or relaxation.
Located just minutes from Norwich University, the Hospital, and excellent transport links, this property is ideally situated for convenient city living. With off-road parking and no chain, this competitively priced home is ready for you to move in and make it your own. Don’t miss out—schedule your viewing today!
2 bedroom end of terrace house for sale in Pollywiggle Close, Norwich, NR5 — £240,000 • 2 bed • 1 bath • 646 ft²
2 bedroom terraced house for sale in Dolphin Road, Costessey, Norwich, NR5 — £220,000 • 2 bed • 1 bath • 592 ft²
2 bedroom terraced house for sale in Romany Road, Norwich, NR3 — £220,000 • 2 bed • 2 bath • 657 ft²
2 bedroom terraced house for sale in Spencer Road, Old Catton, NR6 — £210,000 • 2 bed • 1 bath • 547 ft²
2 bedroom terraced house for sale in Lawson Road, Norwich, NR3 — £230,000 • 2 bed • 1 bath • 834 ft²
3 bedroom semi-detached house for sale in Earlham Grove, Norwich, NR5 — £265,000 • 3 bed • 1 bath • 952 ft²










































































