Large extended home with high-spec outbuilding and driveway for two cars.
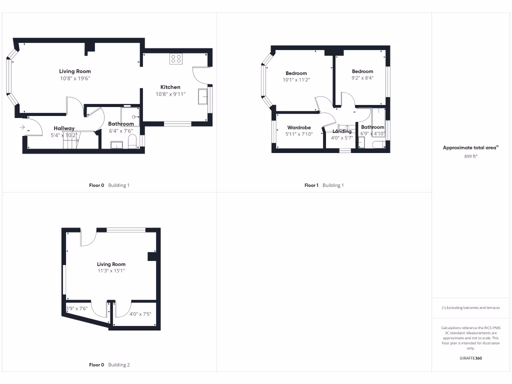
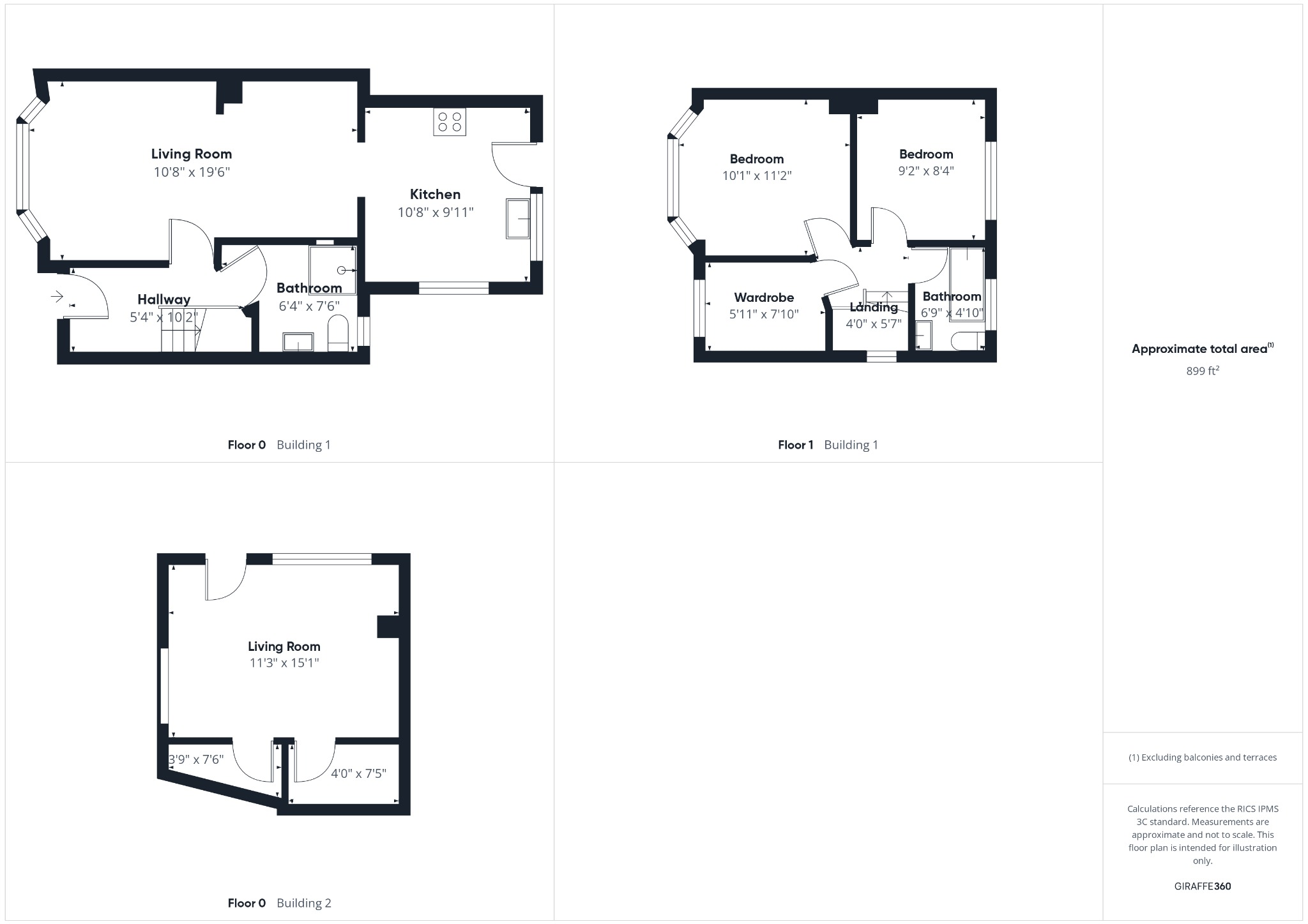
Three double/single bedroom layout, approximately 1,637 sq ft
This well-presented three-bedroom semi-detached house on Ridgeway West offers generous living space across a large footprint (approx. 1,637 sq ft) ideal for growing families. The ground floor has been extended to provide a bright open-plan living, kitchen and dining area; modern neutral decor throughout makes the home largely move-in ready. A downstairs shower room and a separate contemporary family bathroom add practical flexibility for busy households.
Outside, a decent rear garden with a decked area leads to a high-spec outbuilding suitable as a home office, studio or utility space. Off-street parking for two cars on a private driveway eases the pressures of family life. The property is freehold, has double glazing (fitted post-2002), an EPC rating of C and affordable council tax band C.
Location is family-friendly, with several well-rated primary and secondary schools within easy reach, local shops on Blackfen High Street, and low local crime figures. On the downside, the house dates from the 1930s–1940s and has solid brick walls assumed to be without cavity insulation, so further insulation or energy-efficiency upgrades may be needed to reduce running costs and future-proof the home.
Overall this is a spacious, adaptable family home with useful outbuilding space and parking; buyers should budget for potential insulation and energy improvements to maximise long-term comfort and savings.
3 bedroom terraced house for sale in Ridgeway West, Sidcup, Kent, DA15 — £475,000 • 3 bed • 1 bath
3 bedroom semi-detached house for sale in Greenhithe Close, Sidcup, DA15 — £450,000 • 3 bed • 1 bath • 955 ft²
5 bedroom semi-detached house for sale in Ellison Road, Sidcup, Kent, DA15 — £580,000 • 5 bed • 2 bath • 1421 ft²
3 bedroom semi-detached house for sale in Wellan Close, Sidcup, DA15 — £425,000 • 3 bed • 1 bath • 820 ft²
3 bedroom semi-detached house for sale in Ridgeway West, Sidcup, Kent, DA15 — £475,000 • 3 bed • 1 bath
2 bedroom terraced house for sale in Ridgeway West, Sidcup, Kent, DA15 — £475,000 • 2 bed • 2 bath • 1186 ft²


































































































































