BR6 7BJ - 2 bed orpington bungalow with potential in Peel Road, BR6 7…

View on Property Piper

2 bedroom bungalow for sale in Peel Road, Orpington, BR6

Summary - 14 PEEL ROAD FARNBOROUGH ORPINGTON BR6 7BJ

2 bed 1 bath Bungalow

Chain-free bungalow with planning consent for a four-bed uplift — great project near top schools..
Chain free with planning consent for loft and rear/front extensions
Two double bedrooms; potential to create four bedrooms and three bathrooms
Good-sized rear garden, terrace, driveway and garage
Traditional bay-window reception with feature fireplace, dated decor
Solid brick walls likely uninsulated; energy upgrades advised
Requires full renovation and modernisation throughout
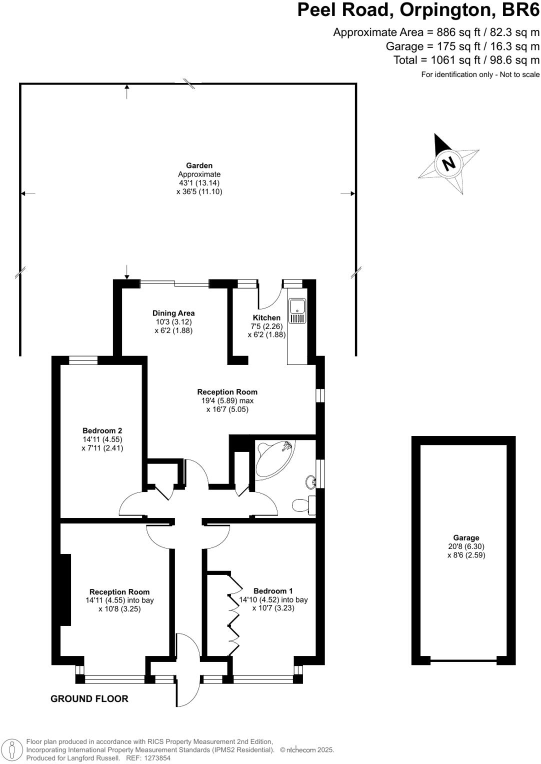
Approx 886 sq ft — average-sized bungalow footprint
Situated near highly rated schools and local amenities
This detached two-bedroom bungalow on Peel Road offers a rare blank canvas in a sought-after Orpington neighbourhood. Chain free and with planning consent already granted for a loft (hip-to-gable) and single-storey rear/front porch extensions, the house presents clear uplift potential to create a four-bedroom, three-bath home for a growing family.

Internally the layout is traditional and practical: a bay-front double bedroom with fitted wardrobes, a bright reception room with a feature fireplace, an extended rear bedroom overlooking the garden, kitchen and dining/reception access to the outside, plus a three-piece bathroom. The property measures about 886 sq ft and retains period character but requires modernisation throughout.

Outside there is off-street parking, a driveway-accessed garage and a sizeable rear garden with lawn, mature shrubs and a terrace — good scope for landscaping or extension into the garden footprint. The house is solid-brick construction with double glazing (install date unknown) and mains gas central heating; insulation is assumed absent in the original walls, so energy upgrades will be needed.

This will suit buyers seeking a project with planning permission in place — families attracted by strong local schools and a comfortable neighbourhood, or investors/developers looking to add value. Key negatives: the property needs renovation, internal decor is dated, and thermal upgrading will be required to improve efficiency and comfort.

Property Details

Image Descriptions

Floorplan Description

Rooms

Textual Property Features

Target Audience

AI Tags

Detected Visual Features

EPC Details

Nearby Schools

Nearest Bars And Restaurants

,,,,}

Nearest General Shops

,,}

Nearest Grocery shops

,,}

Nearest Supermarkets

,,}

Nearest Religious buildings

,,}

Nearest Medical buildings

,,,}

Nearest Airports

,,}

Nearest Leisure Facilities

,,,,}

Nearest Tourist attractions

,,}

Nearest Train stations

,,,,}

Nearest Bus stations and stops

,,,,}

Nearest Hotels

,,}

Tags

Local Market Stats

Similar Properties

Meta

High Res Images

Compatible Images

Low res Images

Thumbnails

Raw Images

High Res Floorplan Images

Compatible Floorplan Images

Low res Floorplan Images

FloorplanImages Thumbnail

Raw Floorplan Images