Large family living with a sunny rear garden and excellent transport links.
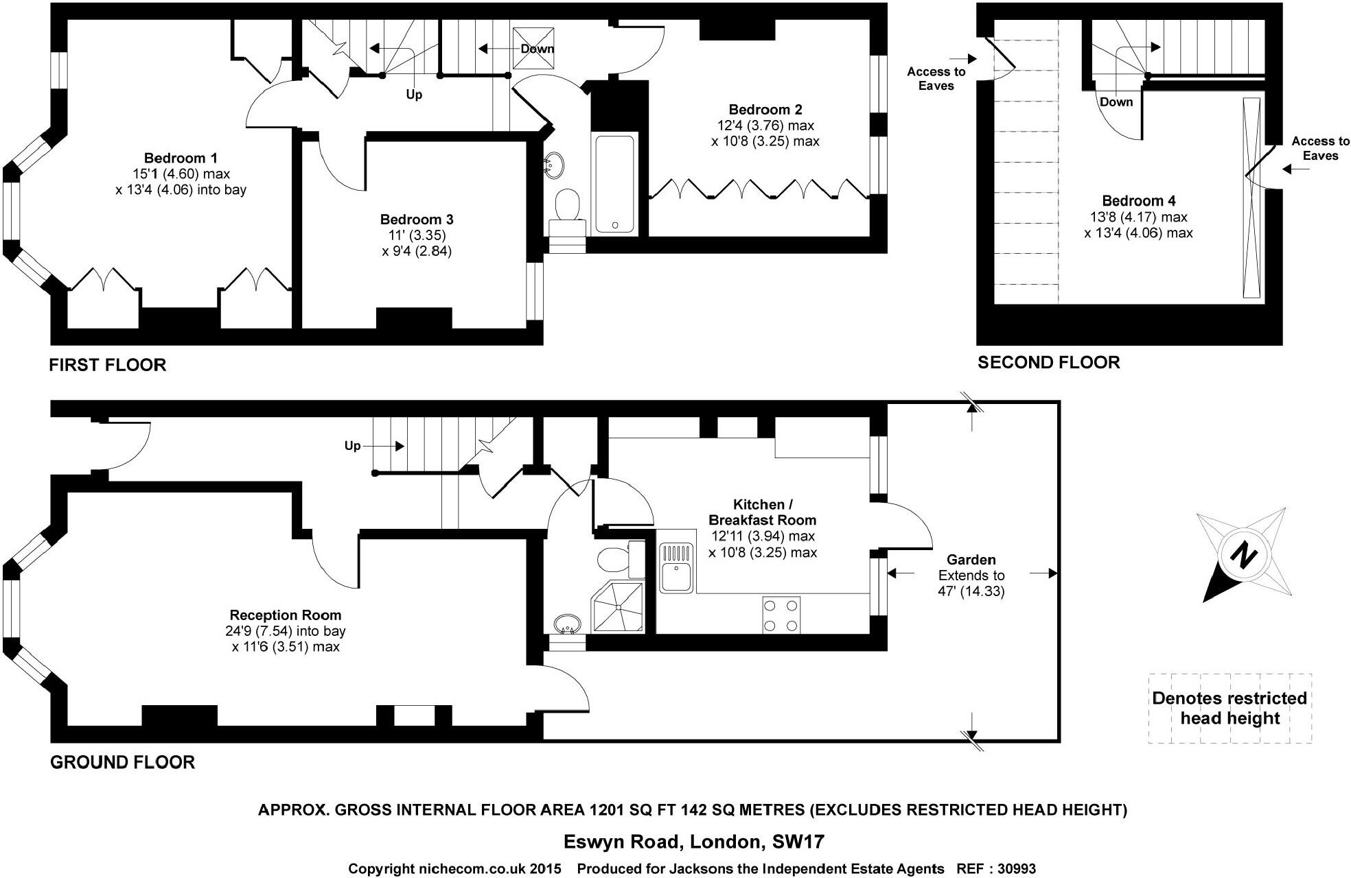
- Substantial four-bedroom Edwardian mid-terrace
- Private south-facing garden on a quiet tree-lined road
- Generous rooms with high ceilings and period features
- Within walking distance of Tooting Broadway station
- One bathroom only; requires modernisation or extension
- Solid brick walls likely uninsulated; energy upgrades advised
- Freehold and being sold chain free
- Small plot and above-average council tax
A substantial four-bedroom Edwardian mid-terrace offering generous living space across multiple storeys, presented chain free and freehold. High ceilings, bay windows and original period detail give the principal rooms strong character, while a private south-facing garden provides welcome outdoor space on a quiet tree-lined street.
This is a practical family home in an inner-city yet affluent pocket of Tooting, within comfortable walking distance of Tooting Broadway station and close to well-rated local schools including Outstanding options. The layout and room proportions create clear scope for modernising and extending (subject to permissions) to suit contemporary family living.
Practical considerations: the property currently has a single bathroom and a mid-20th-century kitchen that will suit updates. The walls are solid brick and assumed to lack insulation, so energy-efficiency improvements and cosmetic renovation are likely required. Council tax sits above average and the plot is modest in size, so external expansion options are limited.
Overall, this home will appeal to families seeking period charm, generous internal space and strong local amenities, willing to invest in modernisation to unlock full potential.
3 bedroom terraced house for sale in Eswyn Road, Tooting, SW17 — £850,000 • 3 bed • 2 bath • 1235 ft²
3 bedroom terraced house for sale in Eswyn Road, Tooting, SW17 — £800,000 • 3 bed • 1 bath • 821 ft²
4 bedroom terraced house for sale in Totterdown Street, Tooting, London, SW17 — £950,000 • 4 bed • 2 bath • 1246 ft²
4 bedroom terraced house for sale in Gassiot Road, Tooting, London, SW17 — £975,000 • 4 bed • 2 bath • 1327 ft²
4 bedroom house for sale in Eswyn Road, Tooting, SW17 — £1,050,000 • 4 bed • 2 bath • 1309 ft²
3 bedroom semi-detached house for sale in Eswyn Road, London, SW17 — £700,000 • 3 bed • 1 bath • 889 ft²






































