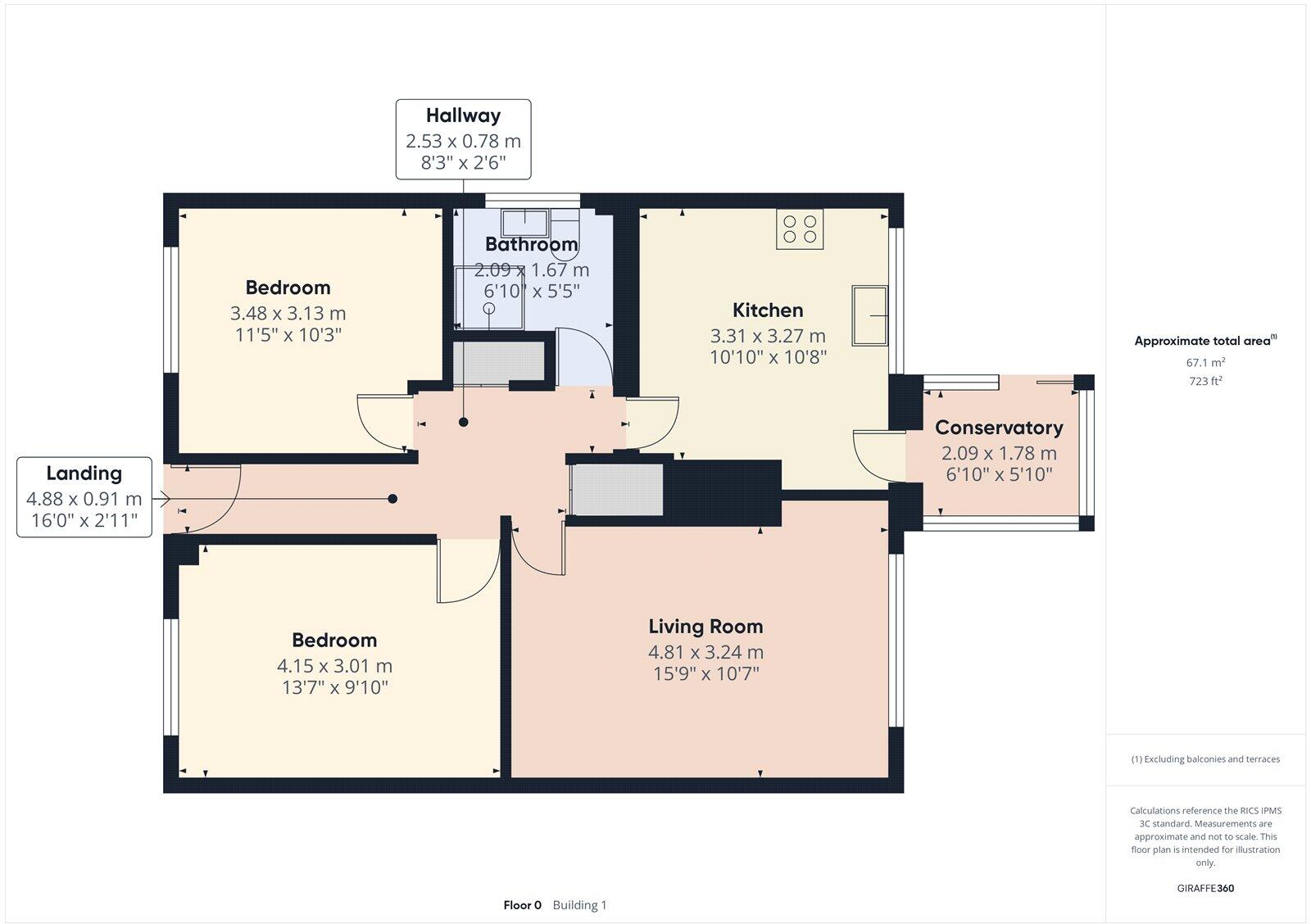
**Standout Features:**
- Two-bedroom semi-detached freehold bungalow
- Private, enclosed front and rear gardens with approximately south-facing aspect
- Private driveway and garage for off-street parking
- Central heating and double glazing
- Located on a quiet cul-de-sac in Oldmixon
- Approximately 856 square feet of well-laid living space
**Potential Concerns:**
- Average-sized property may not suit those seeking extensive space
- Area has high crime rates and is classified as very deprived
Discover comfort and practicality in this charming two-bedroom semi-detached bungalow, nestled within a peaceful cul-de-sac in Oldmixon. Ideal for those desiring single-level living, this home offers a low-maintenance lifestyle, featuring both front and rear gardens—each fully enclosed and benefiting from a desirable south-facing aspect. Enjoy abundant natural light and outdoor leisure options in a suburban setting.
This well-maintained residence comprises approximately 856 square feet, with cozy living spaces perfect for downsizers or first-time buyers. Along with essential amenities like central heating and double glazing, you’ll have the added convenience of a private driveway and garage, providing invaluable off-street parking. Given its proximity to local shops, schools, and transport routes, this home invites you to envision a lifestyle of comfort and ease.
While the area experiences challenges, including a higher crime rate and an economically deprived classification, this property stands as a resilient option with significant potential. Don't miss the opportunity to claim your peaceful retreat and neighborhood charm at an attractive price of £260,000.
2 bedroom bungalow for sale in Oldmixon Road, Weston-Super-Mare, BS24 — £255,000 • 2 bed • 1 bath • 603 ft²
2 bedroom semi-detached house for sale in Dunster Crescent, Weston-super-Mare, North Somerset, BS24 — £210,000 • 2 bed • 1 bath • 747 ft²
2 bedroom semi-detached bungalow for sale in Turnbury Close, Weston-super-mare, BS22 — £250,000 • 2 bed • 1 bath • 755 ft²
2 bedroom retirement property for sale in St. Marys Close, Hutton, BS24 — £172,500 • 2 bed • 1 bath • 759 ft²
2 bedroom bungalow for sale in Blueberry Way, Weston-super-Mare, Somerset, BS22 — £320,000 • 2 bed • 1 bath • 747 ft²
2 bedroom detached bungalow for sale in Falcon Crescent, Worle, BS22 — £300,000 • 2 bed • 1 bath • 912 ft²






















































