Cash-only fixer with sizeable side plot and short-let potential in scenic Leadhills.
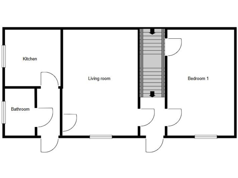
Three bedrooms on end-terrace with traditional stone construction
Set in the historic village of Leadhills, this three-bedroom end-terrace offers a clear redevelopment opportunity on a generous corner plot (0.058 acre). The property is sold as seen and currently uninhabitable; it requires full internal and external renovation, making it suitable for experienced builders, developers or investors comfortable with a cash purchase.
The house retains traditional stone and slate-cottage character but shows significant neglect: boarded openings, damp and general dilapidation, low ceilings and overgrown grounds. No planning permission is in place, though the side plot may allow an extension or separate build subject to statutory consents. No internal viewings are permitted and there is no Home Report available.
This location has growing appeal for holiday lets and short-term rentals, with comparable properties achieving attractive nightly rates. Buyers should note a non-refundable buyer’s fee of £6,000 payable on offer acceptance and confirm all services and statutory consents independently. The closing date is Thursday 20th November at 12pm.
3 bedroom cottage for sale in Main Street, Leadhills, ML12 — £140,000 • 3 bed • 1 bath • 1008 ft²
1 bedroom cottage for sale in Menzies Place, Leadhills, ML12 — £88,000 • 1 bed • 1 bath • 452 ft²
1 bedroom cottage for sale in Curfew Place, Leadhills, ML12 — £100,000 • 1 bed • 1 bath • 570 ft²
3 bedroom cottage for sale in Glencrieff Cottages, Wanlockhead, ML12 — £150,000 • 3 bed • 1 bath • 1239 ft²
1 bedroom cottage for sale in 31 Symington Street, Leadhills, ML12 6YE, ML12 — £100,000 • 1 bed • 1 bath • 526 ft²
3 bedroom detached house for sale in Glendyne Cottage, Wanlockhead, ML12 — £155,000 • 3 bed • 1 bath • 1442 ft²














































