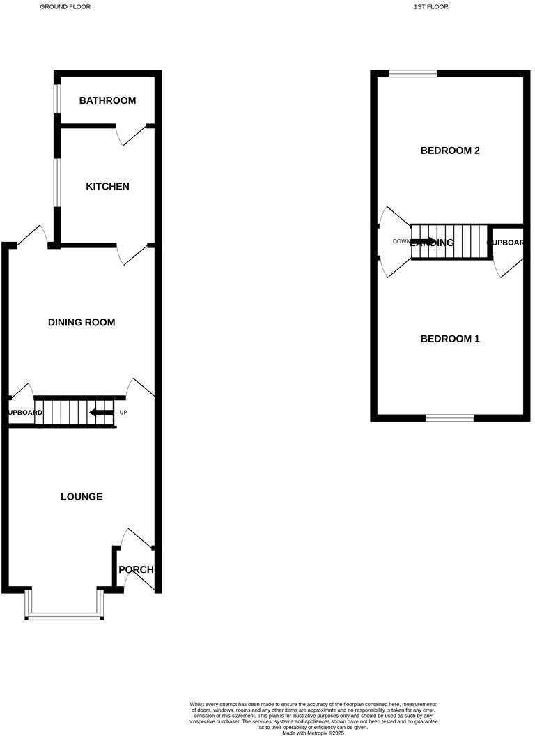
**Standout Features:**
- No chain, allowing for a quick move-in process
- Two reception rooms providing ample space for entertaining
- Two generous double bedrooms for comfortable living
- Modern conveniences including gas central heating and U.PVC double glazing
- Convenient location near local amenities and the seafront
- Garden spaces in front and rear for relaxation or gardening
**Potential Concerns:**
- Older construction with solid brick walls and no insulation, potential for future upgrades
- Kitchen and bathrooms may require cosmetic updates
- Dated carpets in living areas could benefit from replacing
- Average crime rate and area deprivation may warrant further research
Nestled on Douglas Road in the seaside town of Cleethorpes, this charming mid-terrace property is perfect for first-time buyers or investors seeking a low-maintenance home with potential. The spacious layout features two inviting reception rooms, ideal for both relaxation and hosting friends or family gatherings. With a functional kitchen and convenient downstairs bathroom, everyday living is seamless. The upper floor houses two generously sized double bedrooms, providing comfortable retreats. 
Freshen up the interiors and enjoy the benefits of gas central heating and double glazing, ensuring cozy warmth through the winter months. Outside, both front and rear gardens offer a quaint space for outdoor activities, while the property's proximity to local shops, schools, and the scenic seafront adds immense value. 
This attractive home, priced at just £114,995, presents an exceptional opportunity in a sought-after area, making it a must-see before it’s gone! Don't miss your chance to secure a comfy abode with room to grow and the potential to customize to your taste.
 2 bedroom terraced house for sale in Fairview Avenue, Cleethorpes, N.E. Lincs, DN35 8DG, DN35 — £99,950 • 2 bed • 1 bath • 636 ft²
 2 bedroom terraced house for sale in Fairview Avenue, Cleethorpes, N.E. Lincs, DN35 8DG, DN35 — £99,950 • 2 bed • 1 bath • 636 ft² 2 bedroom terraced house for sale in St. Heliers Road, Cleethorpes, N.E. Lincs, DN35 7LG, DN35 — £99,950 • 2 bed • 1 bath • 679 ft²
 2 bedroom terraced house for sale in St. Heliers Road, Cleethorpes, N.E. Lincs, DN35 7LG, DN35 — £99,950 • 2 bed • 1 bath • 679 ft² 2 bedroom terraced house for sale in Coronation Road, Cleethorpes, N.E. Lincs, DN35 8RJ, DN35 — £152,000 • 2 bed • 1 bath • 915 ft²
 2 bedroom terraced house for sale in Coronation Road, Cleethorpes, N.E. Lincs, DN35 8RJ, DN35 — £152,000 • 2 bed • 1 bath • 915 ft² 2 bedroom terraced house for sale in George Street, Cleethorpes, N.E. Lincs, DN35 8PL, DN35 — £110,000 • 2 bed • 1 bath • 613 ft²
 2 bedroom terraced house for sale in George Street, Cleethorpes, N.E. Lincs, DN35 8PL, DN35 — £110,000 • 2 bed • 1 bath • 613 ft² 2 bedroom terraced house for sale in Rowston Street, Cleethorpes, DN35 — £128,500 • 2 bed • 1 bath • 883 ft²
 2 bedroom terraced house for sale in Rowston Street, Cleethorpes, DN35 — £128,500 • 2 bed • 1 bath • 883 ft² 2 bedroom terraced house for sale in Neville Street, Cleethorpes., N E Lincs, DN35 — £82,000 • 2 bed • 1 bath • 882 ft²
 2 bedroom terraced house for sale in Neville Street, Cleethorpes., N E Lincs, DN35 — £82,000 • 2 bed • 1 bath • 882 ft²


















































