Spacious two-bedroom ground-floor home with parking and low council tax.
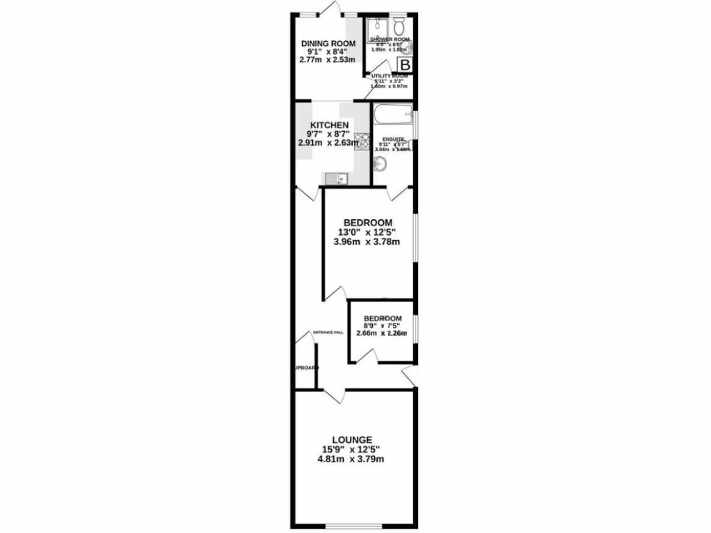
Two bedrooms with en-suite shower room
Large 19'9" kitchen/diner and 15'8" lounge
6'3" utility area and practical room layout
Off-street parking for one vehicle
Gas-fired boiler and radiators (mains gas)
Leasehold with 125 years remaining; share of freehold
Solid brick construction; likely no cavity insulation
Area has high crime and significant local deprivation
This two-bedroom ground-floor maisonette offers a practical, move-in-ready layout in Clacton-on-Sea. Rooms are well-proportioned — a 19'9" kitchen/diner, 15'8" lounge and a useful utility area — giving everyday comfort and flexibility for first-time buyers or downsizers. An en-suite to the principal bedroom and off-street parking add convenience, while gas central heating and double glazing provide reasonable comfort.
The property sits on a long lease (125 years) and is a share of the freehold with the first floor, simplifying tenure matters compared with many leasehold flats. Council tax is very low, and the home is close to local shops, schools rated Good and transport links, making it practical for everyday living and rental potential for investors.
There are some material points to note: the building dates from the early 20th century and walls are likely solid brick with no known insulation, so upgrading insulation or heating efficiency could be needed. The area has high crime and strong indicators of local deprivation, which may affect long-term resale or rental demand. Double glazing is present but the installation date is unknown. A viewing is recommended to assess condition and suitability personally.
2 bedroom maisonette for sale in Clacton-on-Sea, CO15 — £160,000 • 2 bed • 1 bath • 689 ft²
2 bedroom flat for sale in Chapman Road, Clacton-on-Sea, Essex, CO15 — £160,000 • 2 bed • 1 bath • 787 ft²
2 bedroom ground floor maisonette for sale in Holland Road, Clacton-on-Sea, CO15 — £165,000 • 2 bed • 1 bath • 658 ft²
2 bedroom maisonette for sale in Saxmundham Way, Clacton-On-Sea, CO16 — £150,000 • 2 bed • 1 bath • 614 ft²
2 bedroom maisonette for sale in St. Helier Court, Holland Road, Clacton-on-Sea, CO15 — £166,500 • 2 bed • 1 bath • 717 ft²
2 bedroom flat for sale in Oulton Hall, Marine Parade East, East Clacton, CO15 — £135,000 • 2 bed • 1 bath • 571 ft²










































































