Chain free freehold terraced house with period bay windows and high ceilings
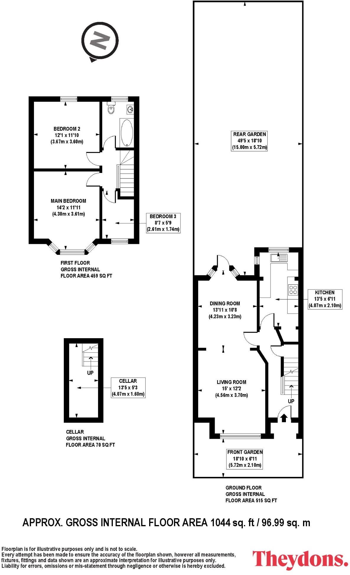
Approx. 1,044 sq ft; three bedrooms, one bathroom
Rear garden approx. 49ft — long outdoor space for the area
Bay-fronted through-lounge with strong natural light and high ceilings
Cellar access for storage or potential conversion (subject to regs)
Single first-floor bathroom; likely requires reconfiguration for extra baths
EPC listed as TBC; recommend a full survey and services check
Close to Francis Road amenities, Leytonstone/Leyton stations and green spaces
This bright Edwardian mid-terrace offers practical family living in Leytonstone, sold freehold and chain free. Period bay windows and high ceilings give the principal rooms character and natural light. A bay-fronted through-lounge leads to a fitted kitchen and a long, private rear garden of approximately 49ft — a rare outdoor asset for the area.
Upstairs provides a bay-fronted main bedroom, a good-sized second double and a versatile third room suitable as a nursery, guest room or home office. There is a single first-floor bathroom; buyers wanting additional bathrooms or en-suite facilities should allow for reconfiguration. Cellar access offers useful storage or potential utility conversion, subject to planning and building regulations.
The location is a key selling point: a short stroll to Francis Road’s cafés and shops, easy access to Leyton and Leytonstone stations for central London, and plenty of nearby green space including Wanstead Flats and Hollow Ponds. Local schools include several ‘Good’ and ‘Outstanding’ rated primaries and secondaries, supporting family lifestyles.
Practical notes: the property is average-sized at about 1,044 sq ft with Council Tax Band C, fast broadband local speeds and low crime. EPC is listed as TBC; buyers should commission a survey and check services, as no structural or services warranties are provided in the particulars.
3 bedroom terraced house for sale in Elm Road, Leytonstone, E11 — £600,000 • 3 bed • 1 bath • 931 ft²
4 bedroom terraced house for sale in Preston Road, Upper Leytonstone, E11 — £950,000 • 4 bed • 1 bath • 1478 ft²
3 bedroom terraced house for sale in Selby Road, Leytonstone, E11 — £635,000 • 3 bed • 1 bath • 831 ft²
4 bedroom terraced house for sale in Twickenham Road, Leytonstone, London, E11 4BH, E11 — £950,000 • 4 bed • 2 bath • 1365 ft²
3 bedroom terraced house for sale in Peterborough Road, Leyton, E10 — £665,000 • 3 bed • 1 bath • 780 ft²
3 bedroom terraced house for sale in Belgrave Road, Leyton, E10 — £750,000 • 3 bed • 1 bath • 1345 ft²


































































