**Standout Features:**
- Spacious four-bedroom detached former farmhouse
- Significant grounds of approximately one acre
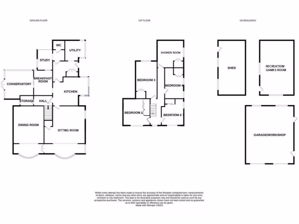
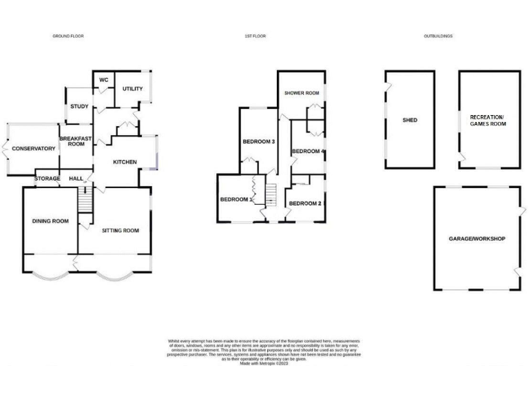
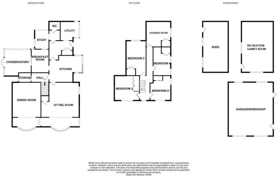
- Four versatile reception rooms plus a conservatory
- Extensive outbuildings: Family Recreation Room (28' x 18'), Garage/Workshop (31' x 25'), and General Store (28' x 13')
- Ample off-street parking for multiple vehicles
- Attractive formal gardens and grass paddock
- Close proximity to Woodhall Spa and historic Lincoln for shopping and social amenities
- Potential for further accommodation or home office, subject to consents
**Summary:**
Nestled in the tranquil rural setting of Martin Moor, this substantial four-bedroom detached farmhouse offers an exceptional living experience, perfect for families seeking space and versatility. With four generous reception rooms, including a charming conservatory, the home is designed for both comfort and entertaining. The expansive one-acre grounds feature beautifully landscaped gardens and a grassed paddock, ideal for outdoor activities or gardening enthusiasts.
The property is complemented by an impressive array of outbuildings that not only provide additional storage but hold immense potential for conversion into an annex or home office—perfect for modern multi-generational living or remote work arrangements. With ample off-street parking available and fast broadband for connectivity, this home combines rural charm with practical amenities.
Located within reach of local schools rated 'Good' by Ofsted, and just a short drive from Woodhall Spa and Lincoln's cultural offerings, this farmhouse represents a unique opportunity for those eager to embrace a countryside lifestyle. Don’t miss out; a viewing is highly recommended to appreciate the spacious accommodations and extensive potential this property offers!
5 bedroom detached house for sale in Manor Farm, Timberland Road, Martin, LN4 — £425,000 • 5 bed • 2 bath • 1896 ft²
5 bedroom detached house for sale in School Lane Farm House, School Lane, Sturton by Stow, Lincoln, Lincolnshire, LN1 2BY, LN1 — £550,000 • 5 bed • 3 bath • 2489 ft²
4 bedroom farm house for sale in Old Glebe Farmhouse (Barn One), Horncastle Lane, Lincoln, Lincolnshire, LN1 2SZ, LN1 — £620,000 • 4 bed • 3 bath • 2551 ft²
5 bedroom detached house for sale in Rasebrook Farm, North Street, Middle Rasen, Market Rasen, Lincolnshire, LN8 3TS, LN8 — £750,000 • 5 bed • 3 bath • 2777 ft²
3 bedroom detached house for sale in Mill Lane, Sturton By Stow, LN1 — £325,000 • 3 bed • 1 bath • 2667 ft²
4 bedroom detached house for sale in Saxilby LINCOLNSHIRE, LN1 — £750,000 • 4 bed • 2 bath • 2998 ft²


























































