Light-filled, low-maintenance apartment close to shops and transport links.
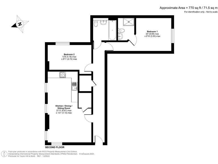
Top-floor two-bedroom apartment with ensuite to master
Set within a converted Grade II listed former hospital, this top-floor two-bedroom apartment combines period character with recent renovation. The apartment offers an open-plan sitting room/kitchen with good natural light, two well-proportioned bedrooms and an ensuite to the master. Communal lawns and an elevated position provide pleasant views over the landscaped gardens.
Practical details suit downsizers seeking low-maintenance living: gas central heating, double-glazed sash-style windows, secure cycle store and one allocated parking space. The apartment sits close to West End High Street, the Ageas Bowl and local amenities, with fast broadband and excellent mobile signal for modern connectivity.
Important considerations: the building’s Grade II listed status will restrict external and internal changes and may complicate some alterations. The property is leasehold with approximately 148 years remaining, an annual service charge around £1,714 and a small ground rent of £200. Local crime levels are reported above average — purchasers should satisfy themselves on security and insurance implications.
Overall, this newly refurbished flat offers characterful, move-in-ready accommodation within a historic setting, best suited to buyers seeking convenient, low-upkeep living with period appeal rather than major redevelopment potential.
2 bedroom apartment for sale in Botley Road, West End, Hampshire, SO30 — £260,000 • 2 bed • 2 bath • 929 ft²
2 bedroom flat for sale in Exford Avenue, Southampton, SO18 — £200,000 • 2 bed • 2 bath • 711 ft²
2 bedroom flat for sale in Whites Way, Hedge End, SO30 2JY, SO30 — £179,999 • 2 bed • 2 bath • 481 ft²
2 bedroom apartment for sale in Botley Road, Southampton, Hampshire, SO30 — £250,000 • 2 bed • 2 bath • 706 ft²
2 bedroom flat for sale in Seacole Gardens, Shirley, Southampton, SO16 — £175,000 • 2 bed • 2 bath • 649 ft²
2 bedroom flat for sale in Fielders Court, West End, Southampton, SO30 3HH, SO30 — £130,000 • 2 bed • 1 bath • 623 ft²






































































