Bright, compact apartment minutes from St Albans station and city centre.
Top-floor apartment with lift access and bright open-plan living
Allocated off-street parking included
Long lease: 978 years (leasehold)
Contemporary fitted kitchen with integrated appliances
Electric storage heaters, not gas central heating
Compact size ~556 sq ft — limited internal space
No private garden; communal outdoor areas only
Very close to St Albans station and city centre
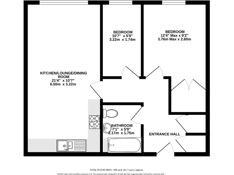
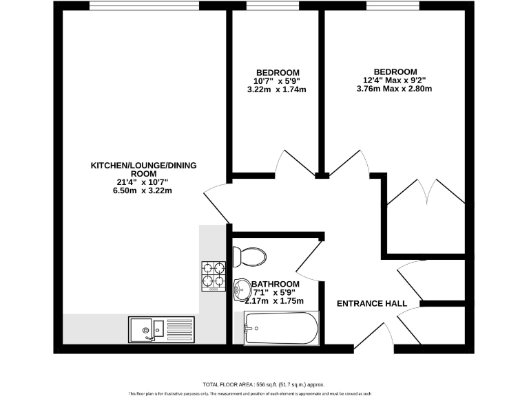
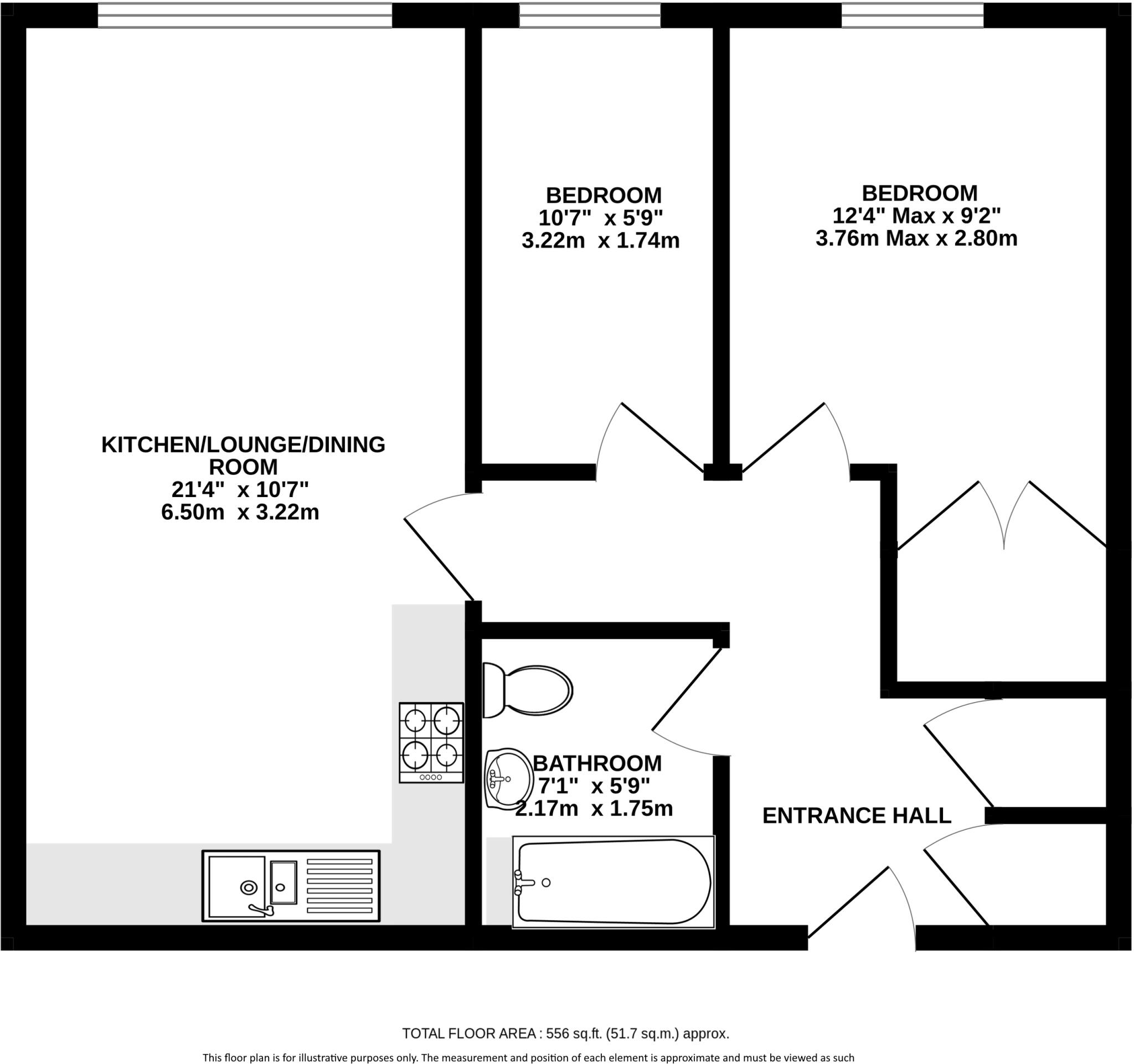
A well-presented two-bedroom top-floor apartment arranged around a bright open-plan living, dining and kitchen space. Large windows flood the reception with light and the contemporary fitted kitchen includes integrated appliances, making the layout ideal for everyday living or entertaining.
Practical benefits include lift access, an allocated off-street parking space and secure entry. The long lease (978 years) removes common lease length concerns; there is no onward chain, so a straightforward purchase timetable is possible.
Notable practical points: heating is via electric storage heaters and there is no private garden. The flat is compact (approximately 556 sq ft), so it suits buyers seeking a manageable city-base or a rental investment rather than large-family living. Broadband is average for the area.
Location is a clear strength: under ten minutes’ walk to St Albans mainline station and around 15 minutes to the city centre, with local shops and good primary and secondary schools nearby. Constructed in the early 2000s, the building presents as contemporary and well maintained.
2 bedroom apartment for sale in Bakers Close, St. Albans, Hertfordshire, AL1 — £360,000 • 2 bed • 2 bath • 691 ft²
2 bedroom apartment for sale in Camp Road, St. Albans, AL1 — £300,000 • 2 bed • 2 bath • 569 ft²
2 bedroom apartment for sale in Dawn Court, Bakers Close, St. Albans, Hertfordshire, AL1 — £375,000 • 2 bed • 2 bath • 749 ft²
2 bedroom apartment for sale in Bakers Close, St. Albans, AL1 — £357,500 • 2 bed • 2 bath • 679 ft²
2 bedroom apartment for sale in Millers Rise, St. Albans, Hertfordshire, AL1 — £345,000 • 2 bed • 1 bath • 612 ft²
2 bedroom flat for sale in Wakely Court, Hatfield Road, St. Albans, AL1 3GS, AL1 — £425,000 • 2 bed • 2 bath • 912 ft²


































































