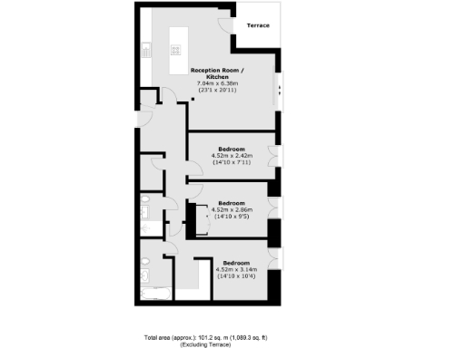
**Standout Features:**
- Spacious three double bedrooms and two bathrooms.
- Private balcony for outdoor enjoyment.
- Lift access and porter service for convenience.
- Excellent transport links, close to Holborn Station and major universities.
- Ideal for both families and professionals.
**Potential Concerns:**
- High service charge of £7,500 annually.
- Some crime in the area; council tax is on the expensive side.
This modern, three-bedroom flat on Theobalds Road (WC1X) is perfect for city dwellers seeking comfort and convenience. With its light-filled open-plan living area and private balcony, you can enjoy a blend of urban living and relaxation. The property includes two well-appointed bathrooms and a walk-in wardrobe, catering beautifully to families or sharers.
Situated in an affluent neighborhood with excellent transport connections, you’ll find yourself close to prestigious universities and bustling commercial districts, making it ideal for students and professionals alike. Although it comes with a higher service charge and the area has a noted crime rate, the lifestyle it offers—complete with local amenities and excellent broadband speeds—more than compensates. With 982 years remaining on the lease, this flat represents a fantastic opportunity for comfortable city living. Don’t miss out on this gem!
1 bedroom flat for sale in Theobalds Road, London WC1X — £500,000 • 1 bed • 1 bath • 600 ft²
1 bedroom flat for sale in Theobalds Road, Holborn, WC1X — £595,000 • 1 bed • 1 bath • 580 ft²
2 bedroom flat for sale in Southampton Row, London, WC1B — £420,000 • 2 bed • 1 bath • 947 ft²
2 bedroom flat for sale in Huntley Street, Fitzrovia, WC1E — £790,000 • 2 bed • 2 bath • 645 ft²
2 bedroom apartment for sale in Parker Street, London, WC2B — £1,920,000 • 2 bed • 2 bath • 823 ft²
2 bedroom apartment for sale in Paramount Court, 38-39 University Street, Bloomsbury, London, WC1E — £785,000 • 2 bed • 1 bath • 675 ft²










































