PO20 0HR - 5 bedroom detached house for sale in Ursula Square, Selsey,…

View on Property Piper

5 bedroom detached house for sale in Ursula Square, Selsey, PO20

Summary - FORTFORE URSULA SQUARE SELSEY CHICHESTER PO20 0HR

5 bed 2 bath Detached

**Standout Features:**
- Prime location just 125 meters from the seafront.
- Spacious, flexible layout with five bedrooms and three reception rooms.
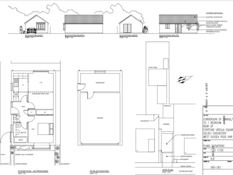
- Potential for a one-bedroom annexe conversion with favourable pre-application permission.
- Generous parking options including single and double garages with workshop.
- Beautifully landscaped garden retreat.

**Concerns:**
- Average-sized lot and home; may not suit those seeking larger properties.
- Some potential maintenance considerations, such as the estimated average age of glazing.

Discover a rare gem on a sought-after private road, just a stone's throw from the stunning coastline. This impressive five-bedroom detached home is designed for versatility, offering ample space for families, multi-generational living, or adaptable home offices. The bright and airy layout features three reception rooms, including a spacious sitting room and a formal dining area perfect for entertaining. The kitchen, paired with a utility room, ensures functionality, while the outdoor spaces include a beautifully landscaped private garden ideal for relaxation.

Potential buyers will appreciate the valuable option to convert the double garage and workshop into an annexe, opening up lucrative rental possibilities or an ideal guest suite. With four well-proportioned bedrooms upstairs, including a principal suite with en suite bathroom, every family member can enjoy their own comfortable space. Enjoy the tranquil village lifestyle while being able to walk to the beach, making this property perfect for those yearning for seaside living. This exclusive opportunity won’t last long; schedule a viewing today to envision your future in this coastal retreat.

Property Details

Image Descriptions

Floorplan Description

Rooms

Textual Property Features

Detected Visual Features

EPC Details

Nearby Schools

Nearest Bars And Restaurants

,,,,}

Nearest General Shops

,,}

Nearest Grocery shops

,,}

Nearest Supermarkets

,,}

Nearest Religious buildings

,,}

Nearest Medical buildings

,,,}

Nearest Airports

}

Nearest Leisure Facilities

,,,,}

Nearest Tourist attractions

,,}

Nearest Train stations

,,,,}

Nearest Bus stations and stops

,,,,}

Nearest Hotels

,,}

Tags

Local Market Stats

AirBnB Data

Similar Properties

Meta

High Res Images

Compatible Images

Low res Images

Thumbnails

Raw Images

High Res Floorplan Images

Compatible Floorplan Images

Low res Floorplan Images

FloorplanImages Thumbnail

Raw Floorplan Images