Stylish, extended semi with large open-plan living and off-street parking — ideal for families.
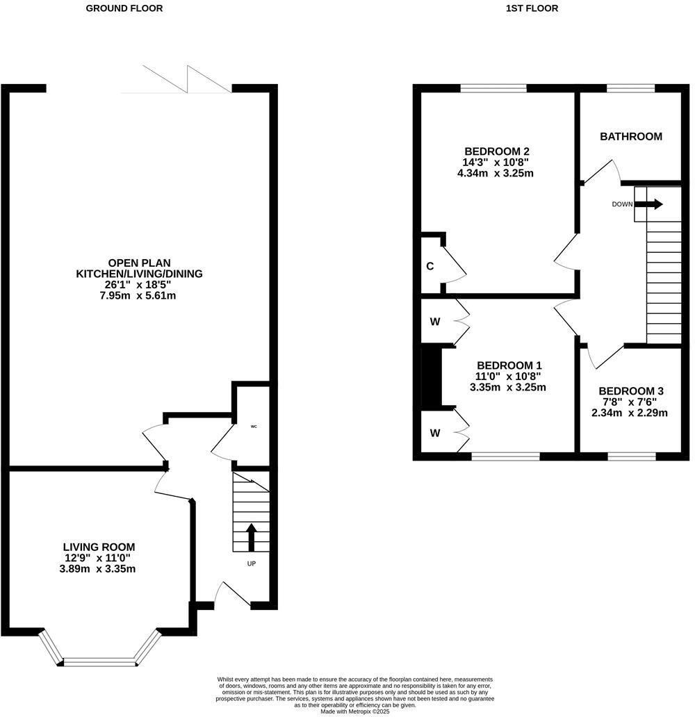
Three double and single bedrooms in a newly renovated layout
Large open-plan kitchen/dining/living with bi-folding doors and skylight
Landscaped, low-maintenance rear garden; good sun aspect
Driveway provides convenient off-street parking; garage for storage
Solid-brick 1930s walls; external wall insulation assumed absent
Single family bathroom only; further bathroom addition possible
Double glazing present but installation date unknown
Mains gas central heating (boiler/radiators) not independently tested
This recently renovated three-bedroom semi delivers turn-key family living in a popular HU5 location. The property has been substantially extended to create a large, contemporary open-plan kitchen / living / dining space with bi-folding doors and skylight — ideal for everyday family life and entertaining. The front living room retains a 1930s bay window, giving character alongside modern finishes.
Practical details suit family buyers: off-street parking and a low-maintenance, landscaped rear garden that catches the sun. Accommodation includes three well-proportioned bedrooms, a modern family bathroom and a boarded loft for storage or future conversion (subject to checks). The home benefits from mains gas central heating, double glazing and a garage/yard storage area.
Buyers should note a few material facts: the house is of traditional solid-brick construction and external wall insulation is assumed absent, so further insulation work could be considered to improve thermal performance. There is a single family bathroom. Double glazing install date is unknown and central heating has not been independently tested. The wider area has mixed socio-economic indicators, while local schools include several highly rated options.
Overall this is a stylish, thoughtfully updated family home offering immediate occupation and scope for incremental improvement. It will suit buyers wanting a move-in-ready property in a well-connected part of Hull with good schools and fast broadband.
3 bedroom semi-detached house for sale in Burniston Road, Hull, HU5 — £250,000 • 3 bed • 1 bath • 730 ft²
3 bedroom semi-detached house for sale in Wascana Close, Hull, HU4 — £175,000 • 3 bed • 1 bath • 673 ft²
3 bedroom semi-detached house for sale in Bricknell Avenue, Hull, HU5 — £310,000 • 3 bed • 1 bath • 1644 ft²
3 bedroom semi-detached house for sale in Belgrave Drive, Hull, HU4 — £230,000 • 3 bed • 1 bath • 888 ft²
3 bedroom semi-detached house for sale in Rokeby Park, Hull, HU4 — £265,000 • 3 bed • 1 bath • 922 ft²
3 bedroom terraced house for sale in Burniston Road, Hull, HU5 — £240,000 • 3 bed • 1 bath • 1246 ft²


























































































