Bright modern apartment ideal for professionals seeking central Manchester living.
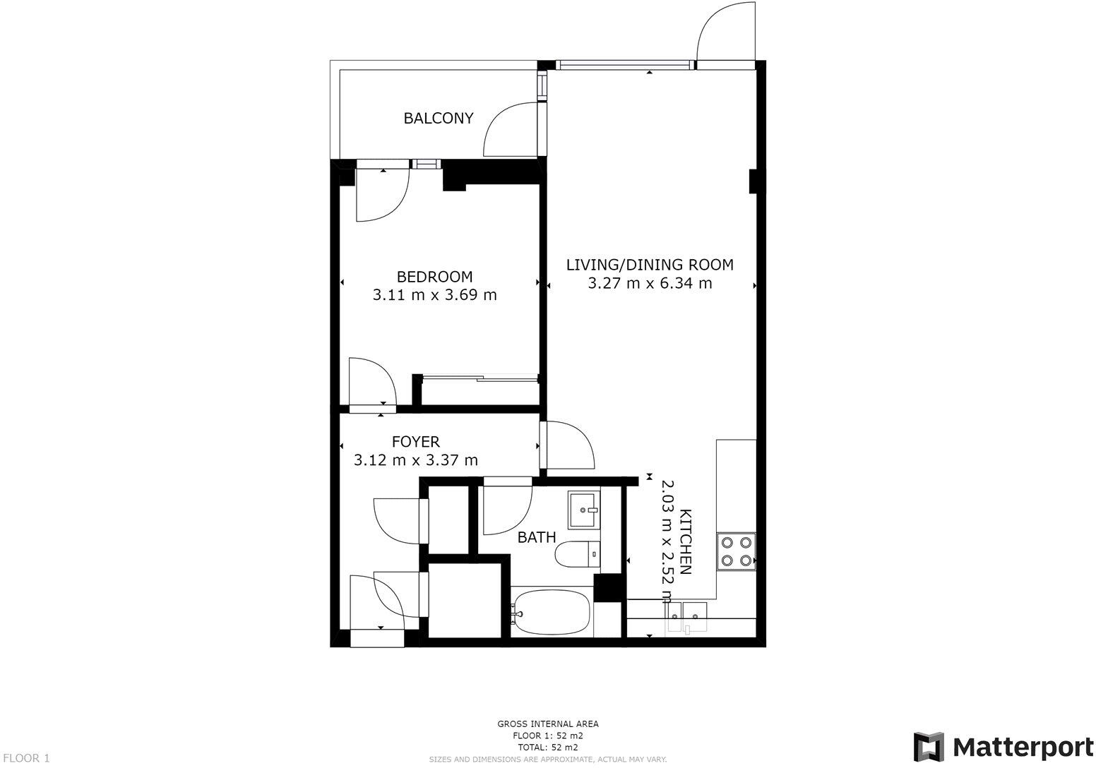
Upper-floor one-bedroom with private balcony and city views
This one-bedroom upper-floor apartment in Deansgate Quay offers a compact, well-presented living space with a private balcony and modern finishes throughout. An open-plan living and dining area and a contemporary kitchen with integrated appliances suit a professional or couple seeking low-maintenance city living close to transport and amenities.
Practical running costs and ownership details are straightforward: 971 years remain on the lease, a monthly service charge of about £201.20 (building insurance included) and an annual ground rent of £100. The building has secure entry, allocated visitor parking and an EWS1 rating of B1.
Buyers should note material considerations: the property relies on electric storage heaters and is in a high flood-risk area, which may affect insurance and heating costs. The wider neighbourhood is a cosmopolitan, student-oriented area, which brings strong local amenities but can mean higher footfall and occasional noise.
Overall this flat is a sensible, city-centre option for a first-time buyer or investor wanting a ready-to-live-in apartment with immediate rental appeal, provided you factor in flood risk, heating type and ongoing service charges.
1 bedroom flat for sale in Deansgate, Manchester, Greater Manchester, M3 — £175,000 • 1 bed • 1 bath • 507 ft²
1 bedroom apartment for sale in 42 Ellesmere Street, Castlefield, M15 — £180,000 • 1 bed • 1 bath • 527 ft²
1 bedroom apartment for sale in Ordsall Lane, Salford, M5 — £200,000 • 1 bed • 1 bath • 484 ft²
2 bedroom apartment for sale in Apt 411 Castlegate, 2 Chester Road, Manchester, M15 — £290,000 • 2 bed • 2 bath • 767 ft²
2 bedroom apartment for sale in Deansgate, Manchester, M3 — £270,000 • 2 bed • 2 bath • 1044 ft²
2 bedroom apartment for sale in Castle Wharf, Castlefield, M15 — £500,000 • 2 bed • 2 bath • 878 ft²














































