Private historic cottage with extensive grounds ideal for countryside family life.
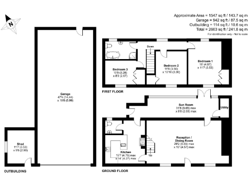
3 double bedrooms with period stone character and exposed features|Circa 1,547 sqft living space in compact two-storey layout|Just over 2 acres: walled garden, polytunnel, workshop and paddock|Newly renovated interior but original solid walls likely uninsulated|Oil-fired boiler and radiators; not on a community heating scheme|Very slow broadband; excellent mobile signal and very low crime|Single bathroom for three bedrooms; council tax above average|Remote hamlet location; limited local services, development potential for outbuildings
Garden Cottage is a quietly impressive three-bedroom stone cottage set within just over two acres of estate grounds. The house combines exposed stone character, oak joinery and a traditional inglenook with recent sympathetic updating to deliver comfortable family accommodation across two storeys. The large plot includes lawns, a Grade II walled garden, polytunnel, workshop and a paddock that slopes down to the River Cothi.
This property will suit buyers seeking a private rural lifestyle rather than urban convenience. The setting offers excellent seclusion, very low local crime and pleasant hillside views, while the foreground gravel forecourt provides simple parking and turning. The cottage footprint is compact compared with the grounds, so there is scope to create additional garden areas or re-purpose outbuildings, subject to any necessary consents.
Practical drawbacks are straightforward and important to note. Broadband speeds are very slow and the main heating is an oil-fired boiler and radiators — not a community supply. The original solid granite or whinstone walls appear uninsulated as built and double glazing installation dates are unknown. There is a single bathroom for three bedrooms, and council tax is above average. The property sits in a very deprived local area classification and in a remote hamlet, so daily services and shops are some distance away.
Overall, the cottage offers character, a substantial secluded plot and immediate move-in comfort thanks to recent renovations. It will be most attractive to families or buyers looking for a country retreat with scope to enhance the grounds and outbuildings, provided they accept rural utilities and slower digital connectivity.
3 bedroom cottage for sale in Cynheidre, SA15 — £350,000 • 3 bed • 1 bath • 1335 ft²
2 bedroom semi-detached house for sale in Llanfihangel-Nant-Bran, Brecon, Powys, LD3 — £245,000 • 2 bed • 1 bath • 1119 ft²
4 bedroom house for sale in Gorrig Road, Llandysul, SA44 — £375,000 • 4 bed • 2 bath • 1884 ft²
3 bedroom semi-detached house for sale in Cwmgarw Road, Upper Brynamman, Ammanford, Carmarthenshire, SA18 — £195,000 • 3 bed • 1 bath • 1088 ft²
2 bedroom detached house for sale in Llywel, Brecon, LD3 — £499,950 • 2 bed • 1 bath • 1098 ft²
3 bedroom detached house for sale in Velindre, Llandysul, Carmarthenshire, SA44 — £395,000 • 3 bed • 1 bath • 1637 ft²






































































































