Ready to move in with ample parking, EV charging and a summer house.
Freehold bungalow; fully modernised and move-in ready
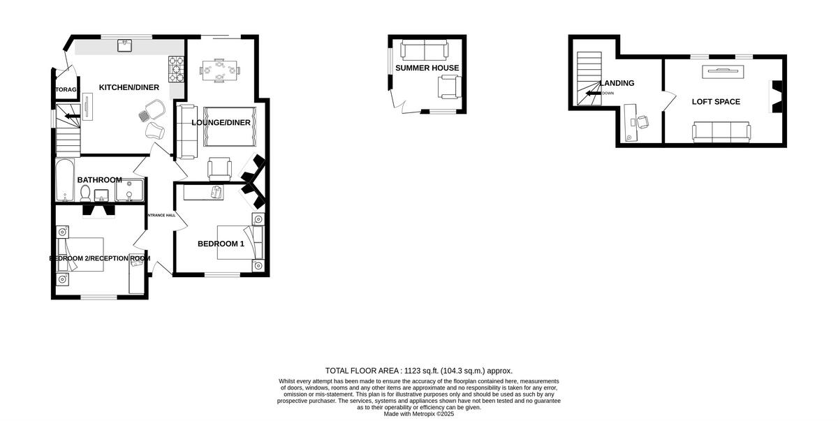
Set on a generous plot in a non-estate position, this fully modernised two-bedroom semi-detached bungalow is ready to move into. Recent works provide contemporary fixtures throughout while maintaining period touches such as cast-iron fireplaces and a multi-fuel stove. The property is freehold with low council tax and no nearby flood risk.
The heart of the house is a large kitchen/diner fitted with a Belfast sink, butcher block worktops and space for a range cooker. A spacious lounge/diner opens via patio doors to a low-maintenance rear garden with mature hedging and a powered summer house — ideal as a home office or hobby room. Off-street parking accommodates up to five vehicles and an EV charging point is installed on the driveway.
Both bedrooms are double size; one features a cast-iron fireplace and the other benefits from the warmth of a multi-fuel stove. A modern family bathroom includes a bath and a large walk-in shower. A landing and loft room add useful flexible space for a study, storage or occasional use, though loft headroom and access may limit full-time conversion potential.
Practical points: the home was built in the mid-20th century and has double glazing (install date unknown) with gas central heating via boiler and radiators. The property has been freshly renovated and is move-in ready, but buyers seeking complete new-build specifications should note some characteristic period elements remain. The location offers countryside views, good local schools nearby, easy access to Biddulph town centre and low local crime.
2 bedroom semi-detached bungalow for sale in Essex Drive, Gillow Heath. ST8 6SF, ST8 — £175,000 • 2 bed • 1 bath • 560 ft²
2 bedroom detached bungalow for sale in Checkley Drive, Biddulph, ST8 — £270,000 • 2 bed • 1 bath • 808 ft²
2 bedroom detached bungalow for sale in Pennine Way, Biddulph, ST8 — £268,000 • 2 bed • 1 bath • 651 ft²
2 bedroom bungalow for sale in Capricorn Way, Stoke-On-Trent, ST6 — £195,000 • 2 bed • 1 bath • 528 ft²
3 bedroom detached bungalow for sale in Hazel Grove, Biddulph Moor, ST8 — £293,000 • 3 bed • 1 bath • 1027 ft²
2 bedroom semi-detached bungalow for sale in Hollytree Drive, Gillow Heath, Staffordshire Moorlands, ST8 — £200,000 • 2 bed • 1 bath • 559 ft²










































































































