Generous bedrooms, large garden and easy commuting links for family life.
Detached interwar house with large sunny rear garden and driveway parking
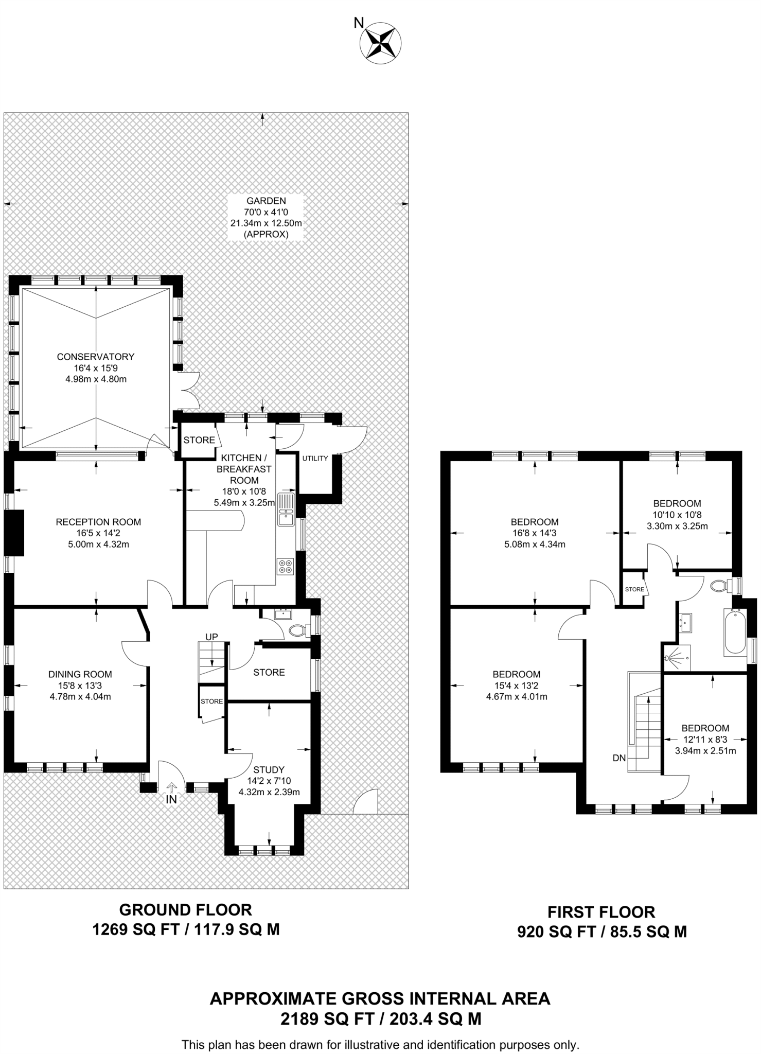
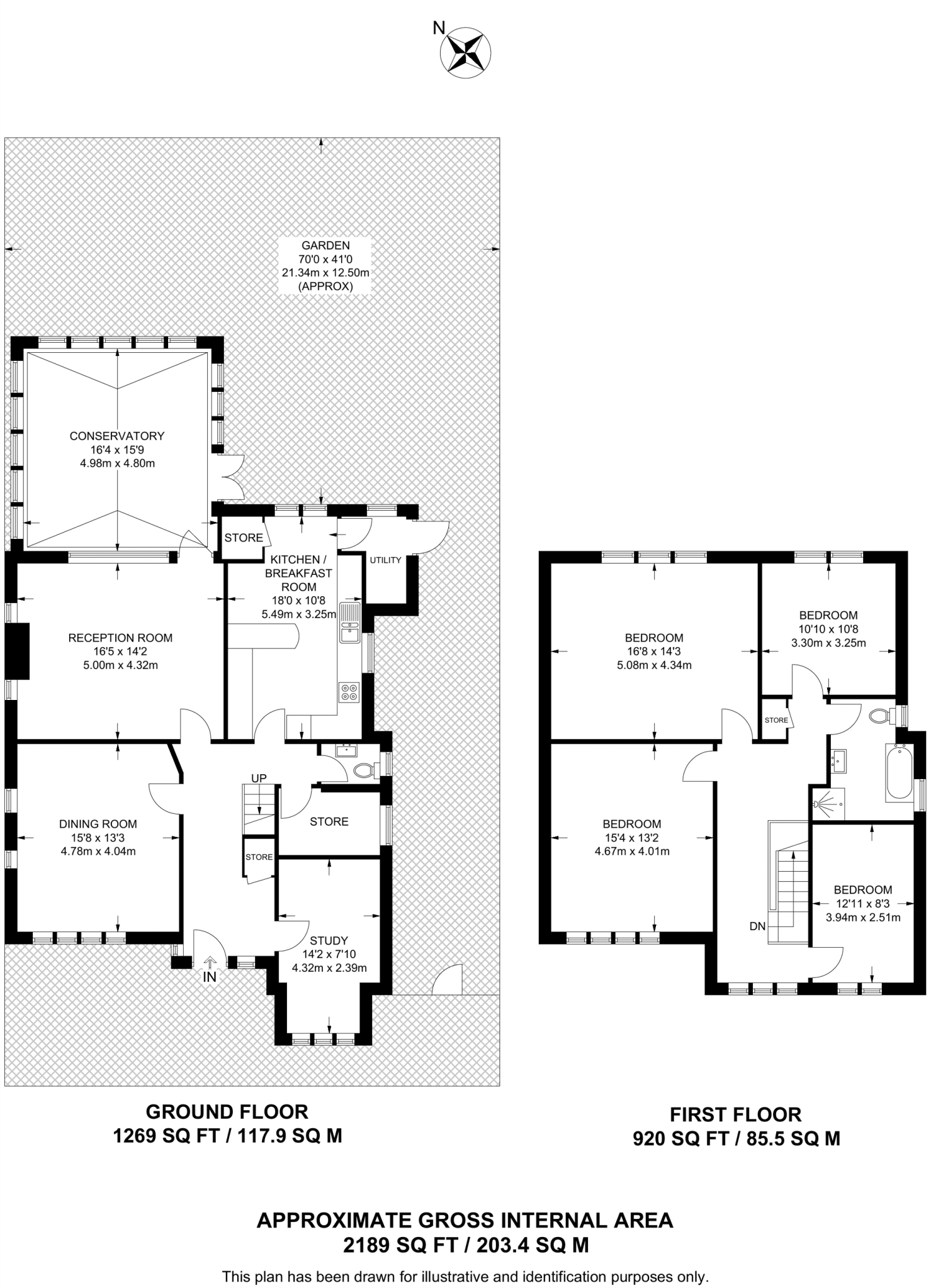
Spacious 2,189 sq ft layout with three reception rooms and conservatory
Four double bedrooms plus study that could be used as fifth bedroom
Smart four-piece family bathroom and separate guest WC (only one main bathroom)
Close to New Malden station, high street, parks and highly rated schools
Solid brick construction (1930s–40s); wall insulation likely absent
Double glazing present but installation date unknown; may need upgrading
Fast broadband, excellent mobile signal; low flood risk and low crime
This well-presented, spacious detached house offers a generous 2,189 sq ft layout ideal for a growing family. The interwar brick facade hides three reception rooms, a conservatory and a study that could serve as a fifth bedroom, giving flexible living and work-from-home options. Parking for several cars on the driveway and a large sunny garden add everyday practicality and outdoor space for children and pets.
Arranged over two floors, the accommodation includes four double bedrooms and a smart four-piece family bathroom plus a guest WC; storage and circulation are generous. The house benefits from mains gas central heating, double glazing (install date unknown), fast broadband and excellent mobile signal — good for commuting and home working. New Malden station, the high street, local shops and popular schools are all within easy reach, and nearby green spaces include Coombe Golf Club and Richmond Park.
Buyers should note this is an interwar solid brick construction (circa 1930–1949) where wall insulation is assumed absent; upgrading insulation and confirming glazing age could be sensible improvements. There is a single main family bathroom serving four bedrooms, which may be a consideration for larger families. Overall maintenance appears reasonable as the property is described as well presented, but older build elements may benefit from modernization over time.
For families seeking space, good local schools and quick links to the city, this detached home on Coombe Road offers immediate comfort with clear potential to add value through energy upgrades and cosmetic modernisation. The freehold tenure and large plot size are practical long-term strengths.
4 bedroom detached house for sale in Coombe Road, New Malden, KT3 — £1,750,000 • 4 bed • 1 bath • 3116 ft²
4 bedroom detached house for sale in Traps Lane, New Malden, KT3 — £1,600,000 • 4 bed • 2 bath • 2084 ft²
4 bedroom detached house for sale in Coombe Road, New Malden, KT3 — £1,640,000 • 4 bed • 1 bath • 2212 ft²
5 bedroom detached house for sale in Nelson Road, New Malden, KT3 — £1,550,000 • 5 bed • 2 bath • 2036 ft²
5 bedroom detached house for sale in Southwood Avenue, Kingston upon Thames, Surrey, KT2 — £1,595,000 • 5 bed • 3 bath • 2737 ft²
3 bedroom semi-detached house for sale in Beechcroft Avenue, New Malden, KT3 — £1,025,000 • 3 bed • 1 bath • 1452 ft²






































































































