Low-maintenance three-bedroom terrace with garage and refurbishment potential.
Integral single garage and dedicated off-road parking space
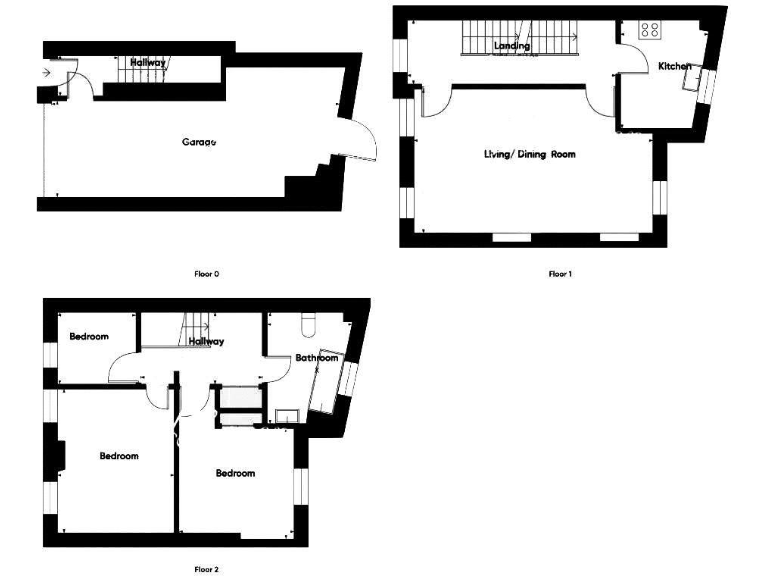
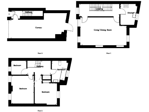
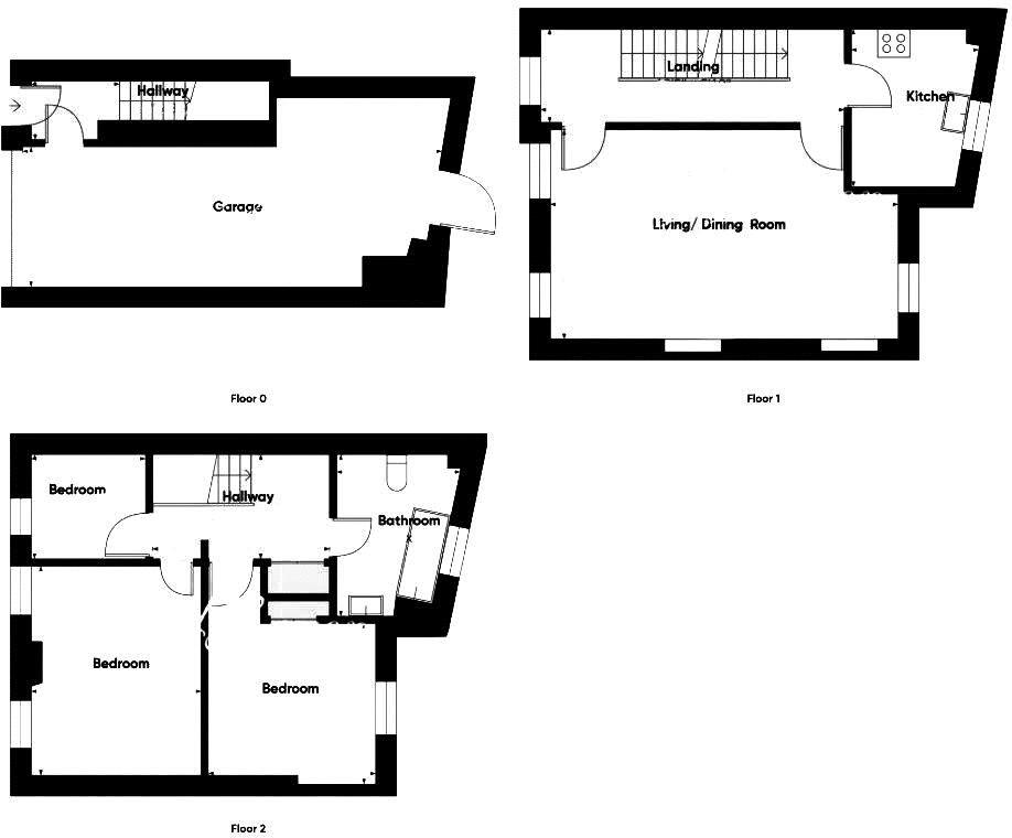
This three-storey end-of-terrace offers practical town living with strong rental potential. The property includes an integral garage, off-road parking, a fitted first-floor kitchen and a bright lounge/diner—features that appeal to tenants and buyers seeking low-maintenance accommodation close to Torquay town and seafront amenities.
Accommodation comprises three bedrooms on the top floor and a single family bathroom, making the layout suitable for small families or sharers. The small rear garden provides a modest outdoor space while the garage gives valuable secure storage or parking—uncommon at this price in the area.
Buyers should note material local factors: the neighbourhood records very high crime and is in a very deprived area, which can affect resale and lettings. The plot is small and external amenity space is limited; there is only one bathroom for three bedrooms. Some updating may be desirable to maximise rental yield or sale value.
Overall this freehold end-of-terrace is positioned for investors or budget-conscious buyers seeking a low-maintenance town property with off-street parking and straightforward refurbishment potential. A site inspection and measured floor area are recommended to confirm internal sizes and condition before committing.
4 bedroom terraced house for sale in Sherwell Lane, Torquay, TQ2 — £300,000 • 4 bed • 3 bath • 1367 ft²
2 bedroom house for sale in McKay Avenue, TORQUAY, TQ1 — £75,000 • 2 bed • 2 bath • 517 ft²
3 bedroom town house for sale in Denys Road, Torquay, TQ1 1JL, TQ1 — £220,000 • 3 bed • 1 bath • 804 ft²
3 bedroom terraced house for sale in Barton Hill Road, Torquay, Devon, TQ2 — £240,000 • 3 bed • 1 bath • 688 ft²
3 bedroom terraced house for sale in Museum Road, Torquay, TQ1 — £315,000 • 3 bed • 2 bath • 1194 ft²
4 bedroom terraced house for sale in Oak Hill Road, Torquay, TQ1 4FL, TQ1 — £280,000 • 4 bed • 3 bath • 1404 ft²


































