**Standout Features:**
- Three spacious double bedrooms, including a master with en-suite
- Open plan kitchen/dining area with modern amenities
- Off-street driveway parking
- Generous living space with ample built-in storage
- Well-maintained environment
- Fast broadband speeds and excellent mobile signal
**Potential Considerations:**
- Located in a hard-pressed neighborhood with average crime rates
- The property is semi-detached, built mid-20th century; potential maintenance may arise
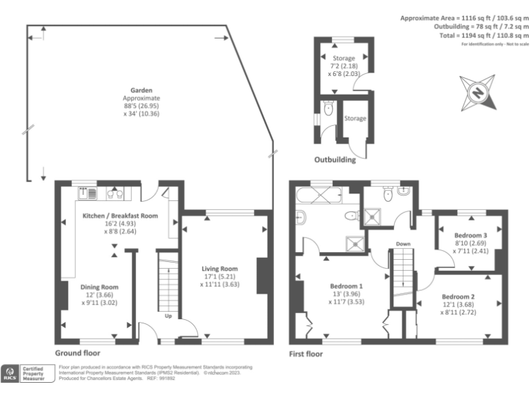
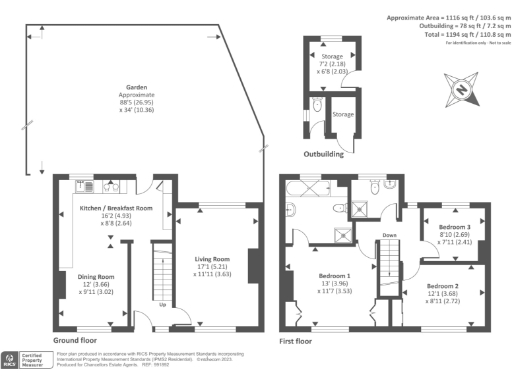
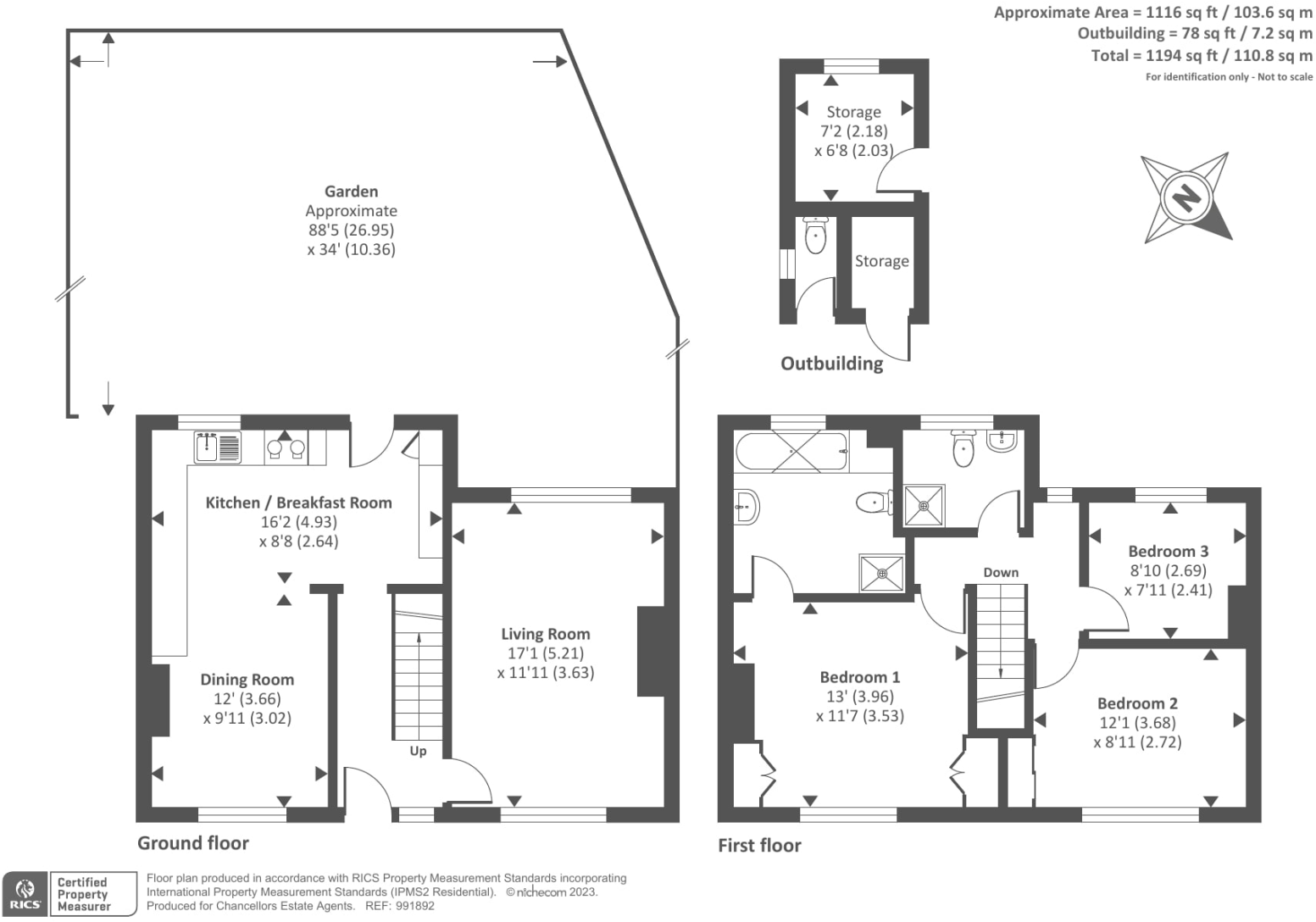
This beautifully presented three-bedroom semi-detached home invites families and professionals seeking comfort and practicality. Thoughtfully converted from its original four-bedroom layout, the property boasts three spacious doubles and a well-appointed en-suite in the master suite, making it ideal for modern living. The bright, open-plan kitchen and dining area feature contemporary design, ensuring a welcoming space for gatherings.
With off-street parking, fast broadband, and a range of local amenities, this home not only meets urban convenience but is also set within a family-friendly community, close to several good-rated schools. Although located in an area classified as hard-pressed, the property’s charm and generous living space make it a potential gem, promising comfort and flexibility for future renovations.
Seize the opportunity to invest in a property that blends spacious living with modern comforts—an affordable choice in a desirable city location that won’t last long on the market!
3 bedroom semi-detached house for sale in Banbury, Oxfordshire, OX16 — £325,000 • 3 bed • 1 bath • 1168 ft²
4 bedroom detached house for sale in Coopers Gate, Banbury, OX16 — £399,950 • 4 bed • 3 bath • 1190 ft²
3 bedroom semi-detached house for sale in Bourton Road, Banbury, OX16 — £339,950 • 3 bed • 3 bath • 988 ft²
3 bedroom semi-detached house for sale in Boxhedge Road, Banbury, OX16 — £300,000 • 3 bed • 1 bath
3 bedroom semi-detached house for sale in Warwick Road, Banbury, OX16 — £375,000 • 3 bed • 1 bath • 1189 ft²
3 bedroom semi-detached house for sale in Woodgreen Avenue, Banbury, OX16 — £295,000 • 3 bed • 1 bath • 857 ft²














































