**Key Features:**
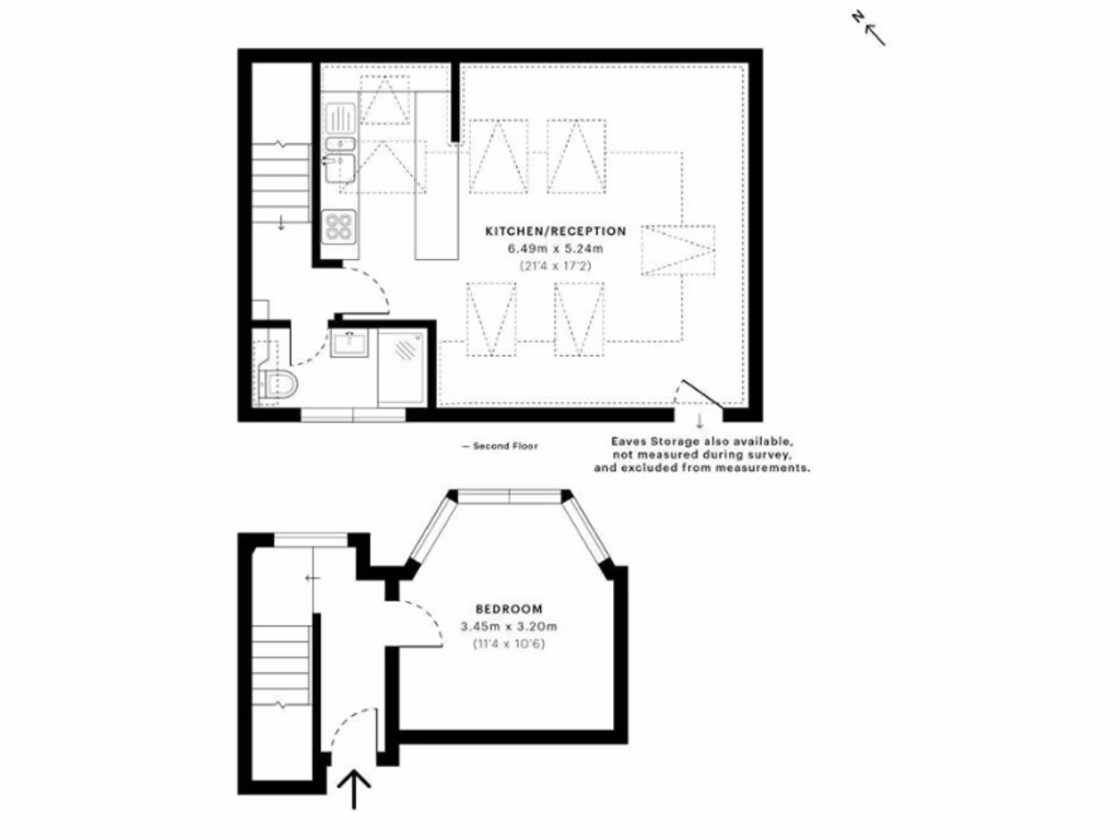
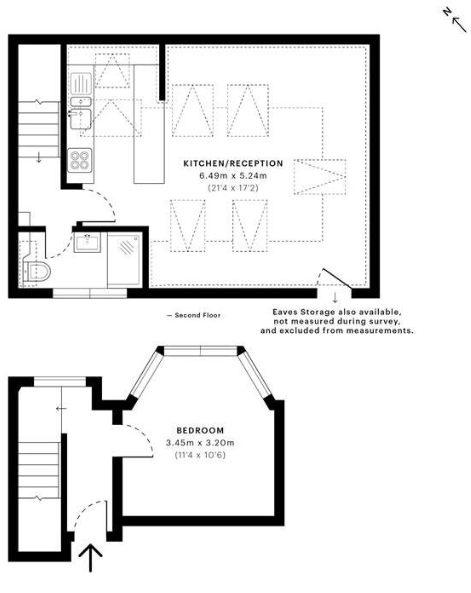
- Split-level first-floor 1-bedroom flat
- Spacious double bedroom with ample natural light
- Modern open-plan reception with contemporary kitchen
- Stylish shower room
- Low service charges (£250) and long lease (984 years remaining)
- Off-street parking
- Close proximity to Winchmore Hill BR station and major road links (A10, A406, M25)
- Ideal for professionals, couples, or investors
Located in the vibrant heart of Winchmore Hill, N21, this charming split-level flat combines modern living with convenience. The bright open-plan reception, complete with a sleek kitchen and adorned by skylights, creates a warm, airy feel—perfect for entertaining or unwinding. The generously sized double bedroom ensures comfort, while the contemporary shower room adds to the flat's appeal.
Just moments away, you'll find a variety of local amenities, including shops, cafes, and restaurants, making this property an ideal choice for those seeking a lively urban lifestyle. With excellent transport links nearby, commuting is a breeze. Though the flat presents an opportunity for customization, it is ready for immediate enjoyment. Positioned in an area with average crime and good schools, this flat balances affordability with quality living. Don't miss out—this stylish property won’t last long on the market!
2 bedroom flat for sale in Avondale Road, LONDON, London, N13 — £385,000 • 2 bed • 1 bath • 783 ft²
1 bedroom apartment for sale in George Parr House, London, N21 — £290,000 • 1 bed • 1 bath • 495 ft²
1 bedroom flat for sale in Hoppers Road, Winchmore Hill, London, N21 — £450,000 • 1 bed • 1 bath • 551 ft²
1 bedroom flat for sale in Pennington Drive, Winchmore Hill, London, N21 — £137,500 • 1 bed • 1 bath • 391 ft²
1 bedroom flat for sale in Elm Park Road, London, N21 — £325,000 • 1 bed • 1 bath • 632 ft²
1 bedroom ground floor flat for sale in Ainsley Close, Edmonton, N9 — £230,000 • 1 bed • 1 bath • 412 ft²






























