**Standout Features:**
- Approximately 4.5 acres of prime development land
- Planning permission granted for three detached residential homes
- Tranquil rural setting near Marden and Staplehurst
- Excellent transport links to London (2 miles from train stations)
- Ideal for developers or self-builders seeking bespoke homes
**Property Highlights:**
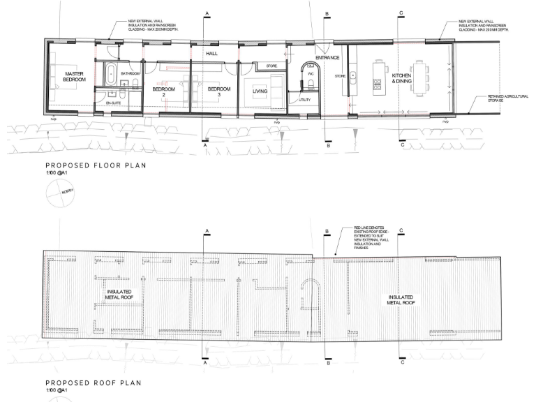
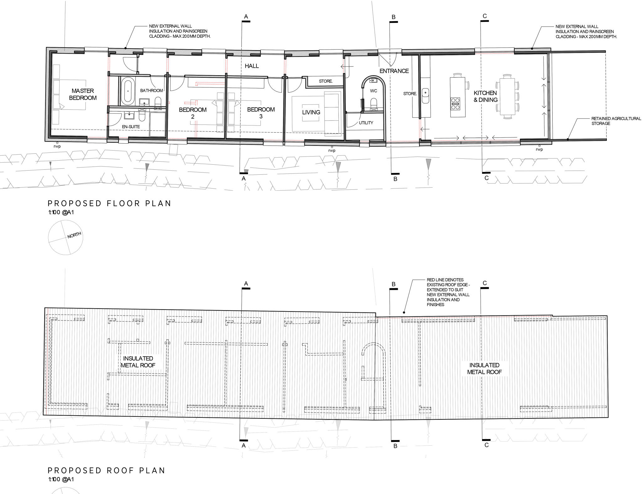
This expansive development site offers a unique opportunity to invest in a beautifully serene area, with planning permissions granted for three distinct residential homes. Encompassing approximately 4.5 acres, this land can host a mix of living styles—from a two-bedroom single-story barn to a three or four-bedroom family residence. The location offers the perfect blend of rural charm and convenient connectivity, with excellent transport links to London, making it especially appealing to commuters. 
The site’s lush greenery and mature trees provide both privacy and a picturesque backdrop for potential homeowners, while ample outdoor space allows for expansive gardens or leisure areas—a rare gem in today’s market. 
While the planning conditions are favorable, be mindful that the broadband speeds are currently slow, which may be a consideration for future buyers. With a guide price of £450,000 to £500,000 and a deadline for best and final offers approaching, this property represents a limited-time opportunity to secure a coveted piece of the countryside, perfect for developers or those looking to create a bespoke living environment. Don't miss out on this exclusive chance to build and design in a highly sought-after rural landscape.







































