Chain-free split-level flat with private south-facing patio garden
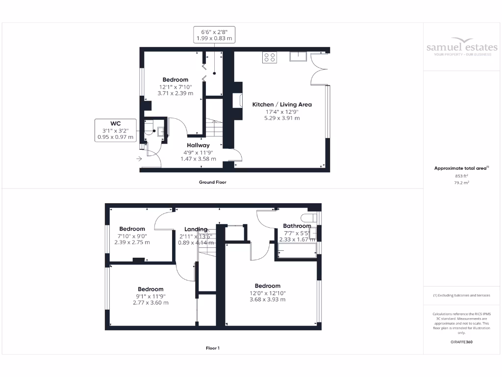
Four double bedrooms but a single family bathroom — shared facilities
Approx. 853 sq ft; efficient layout rather than spacious
Leasehold with c.94 years remaining; service charge ~£1,050 pa
Excellent transport: Southfields & East Putney (District Line) nearby
EPC C; Wandsworth Council Tax Band D
Double glazing and mains gas central heating (boiler and radiators)
Close to King George's Park and well-rated local schools
A chain-free, split-level flat spanning ground and first floors, this four-bedroom home on Gressenhall Road offers practical family living with a private south-facing patio garden. The open-plan kitchen and living area is bright and modern, with large windows and glazed doors that bring in plenty of natural light and provide direct outdoor access — good for children and entertaining.
Internally the property is presented in a neutral, move-in condition. Integrated kitchen units, pale wood flooring and double glazing keep running costs reasonable; heating is by mains gas boiler and radiators. At about 853 sq ft the accommodation feels efficient rather than expansive, with four double bedrooms but only one bathroom — an important consideration for family or sharer households.
The location is a strong practical selling point: close to King George’s Park, Southfields and East Putney tube stations (District Line) and quick access to the A3. Local schools rate well and the area records low crime and fast broadband — attractive for families and rental demand. EPC C and Wandsworth Council Tax band D.
Material facts to note: the flat is leasehold with approximately 94 years remaining, a service charge around £1,050 pa, and no separate ground rent listed. The single-bathroom layout and the modest internal footprint mean some buyers may want to adapt the layout or budget for reconfiguration to suit a larger family or multiple occupants.
4 bedroom flat for sale in Gressenhall Road, Southfields, London, SW18 — £450,000 • 4 bed • 1 bath • 858 ft²
4 bedroom flat for sale in Wimbledon Park Road, Wimbledon, SW19 — £450,000 • 4 bed • 1 bath • 956 ft²
3 bedroom flat for sale in Borrodaile Road, Wandsworth, SW18 — £475,000 • 3 bed • 2 bath • 873 ft²
4 bedroom end of terrace house for sale in Gressenhall Road, Southfields, London, SW18 — £800,000 • 4 bed • 2 bath • 1499 ft²
2 bedroom ground floor flat for sale in Melrose Road, London, SW18 — £875,000 • 2 bed • 2 bath • 1177 ft²
3 bedroom flat for sale in Gressenhall Road, Southfields, London, SW18 — £795,000 • 3 bed • 2 bath • 1354 ft²














































