BN1 6EB - 3 bedroom terraced house for sale in Rugby Road, Brighton,…

View on Property Piper

3 bedroom terraced house for sale in Rugby Road, Brighton, East Sussex, BN1

Summary - 11 RUGBY ROAD BRIGHTON BN1 6EB

3 bed 2 bath Terraced

**Standout Features:**
- Semi-detached Victorian villa with 3 bedrooms and 2 bathrooms
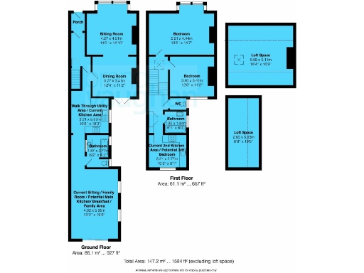
- Total area of 1,584 sq. ft.
- Flexible layout, currently arranged as two self-contained flats
- Stunning rear garden featuring a hot tub and landscaped outdoor space
- Excellent proximity to Preston Park and Fiveways, with access to schools and transport links
- Low crime neighborhood, located in an affluent area
- Freehold property with low council tax band (GFF and FFF B)
- Parking available in Permit Zone J

Nestled in the highly sought-after Preston Park area, this charming semi-detached Victorian villa offers a spacious and adaptable living environment, ideal for families or professionals. The property spans an impressive 1,584 sq. ft. and features a delightful garden oasis, complete with a hot tub and cozy patio, perfect for both relaxation and entertainment. The ground floor showcases a stylish living dining room with French doors and dual fireplaces, a vibrant custom kitchen, and a versatile bedroom currently used as an art studio. The first floor boasts another kitchen and a serene bedroom with lovely garden views, capable of reverting back to a four-bedroom family home with minimal effort.

While the home is newly renovated, potential investors or families may note that the current configuration as two flats presents unique flexibility, ideal for inter-generational living or rental income. However, reopening these spaces into a seamless family home could make this property even more desirable. With proximity to prestigious schools, parks, and easy transport links to the city and beyond, this residence offers a perfect blend of comfort, style, and long-term potential. Rarely available in this prime location, seize the opportunity to make this charming home your own—viewings are available upon request, so act fast!

Property Details

Brochure Descriptions

Image Descriptions

Floorplan Description

Rooms

Textual Property Features

Detected Visual Features

EPC Details

Nearby Schools

Nearest Bars And Restaurants

,,,,}

Nearest General Shops

,,}

Nearest Grocery shops

,,}

Nearest Supermarkets

,,}

Nearest Religious buildings

,,}

Nearest Medical buildings

,,,}

Nearest Leisure Facilities

,,,,}

Nearest Tourist attractions

,,}

Nearest Train stations

,,,,}

Nearest Bus stations and stops

,,,,}

Nearest Hotels

,,}

Tags

Local Market Stats

AirBnB Data

Similar Properties

Meta

High Res Images

Compatible Images

Low res Images

Thumbnails

Raw Images

High Res Floorplan Images

Compatible Floorplan Images

Low res Floorplan Images

FloorplanImages Thumbnail

Raw Floorplan Images