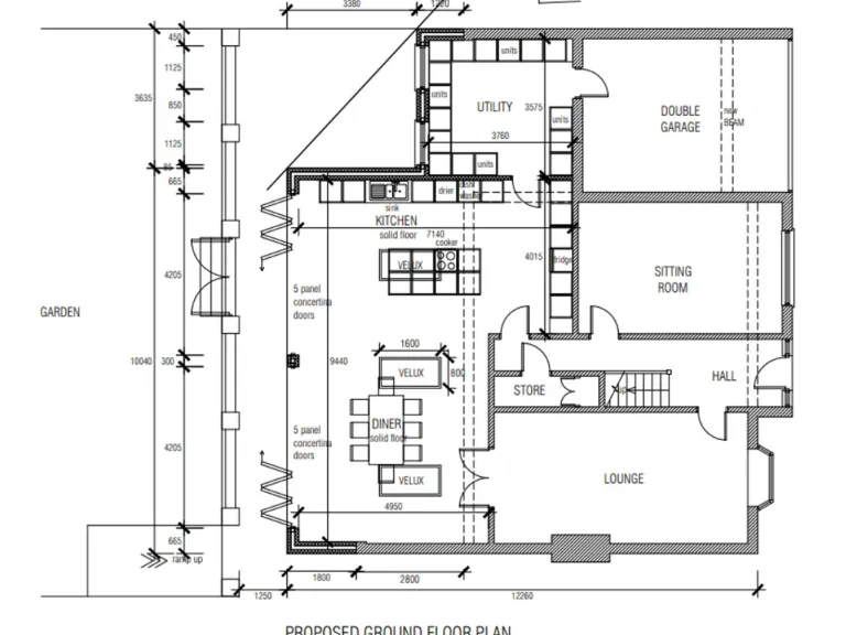
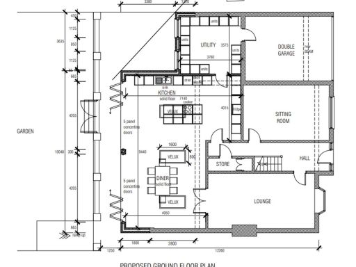
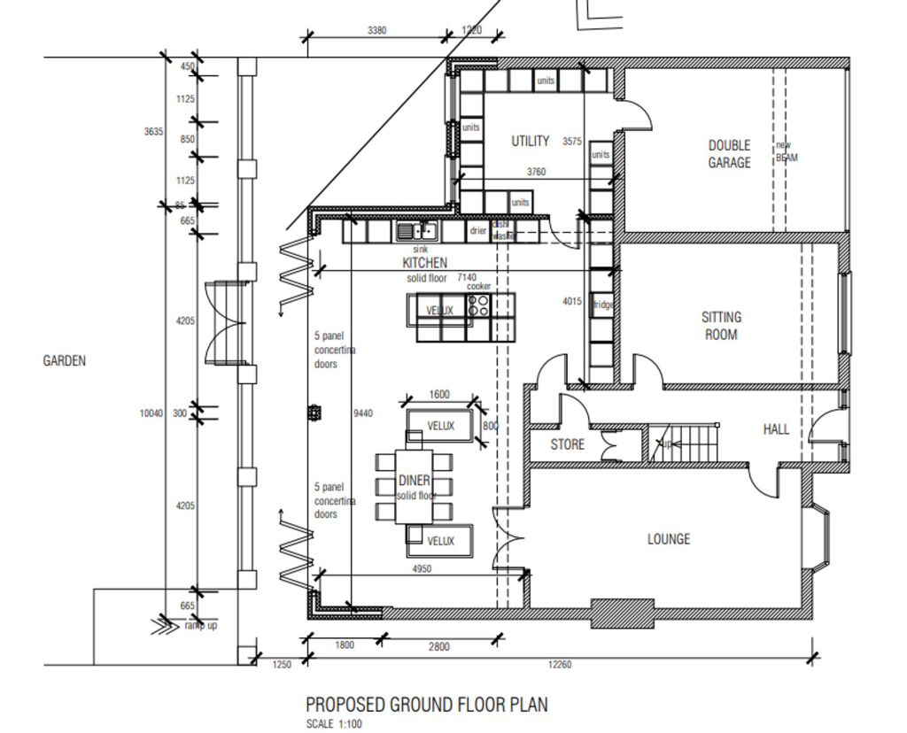
Large landscaped garden, double garage and approved extension plans.
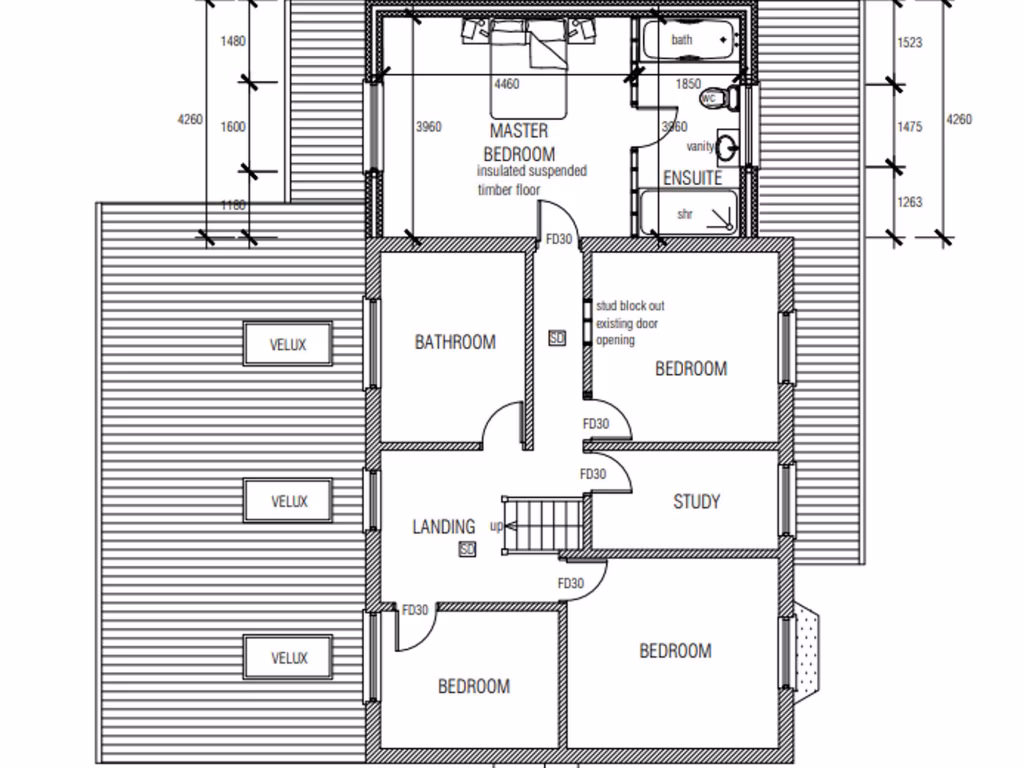
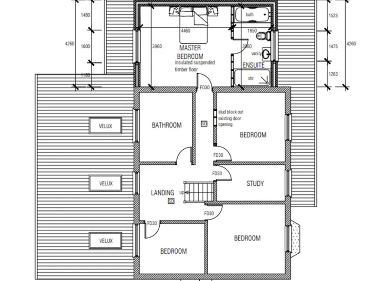
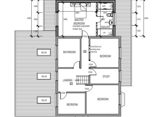
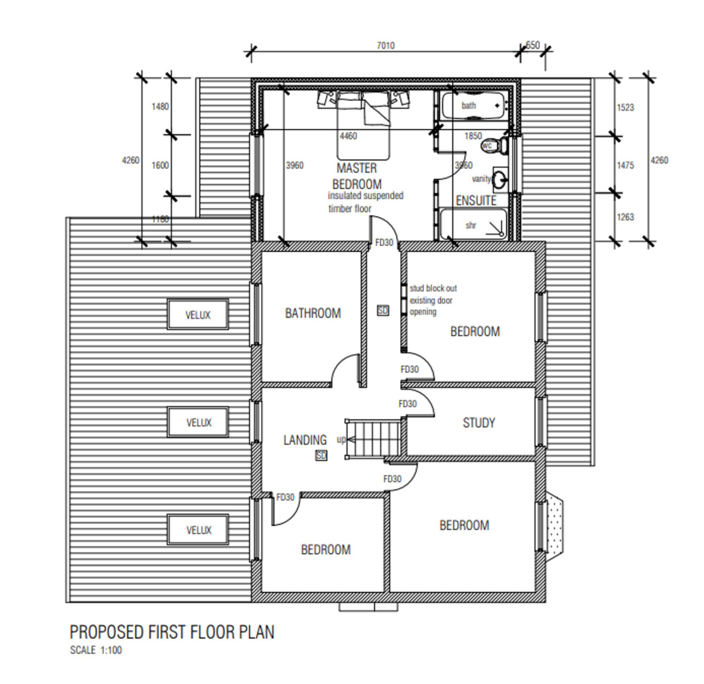
Four bedrooms, two bathrooms across multi-storey layout
A substantial four-bedroom detached family home set on a large plot in a highly regarded Hinckley location. The house sits behind a paved frontage with ample parking and a double garage, and opens onto a beautifully landscaped rear garden — an immediate draw for families and gardeners.
Practical features include mains gas central heating with a boiler and radiators, double glazing installed post-2002, fast broadband and excellent mobile signal. Planning permission is already granted for a part single-storey rear extension and a two-storey side/rear extension, offering clear potential to increase living space and value.
The property dates from the 1930s–1940s and presents solid period character alongside contemporary updates, but the EPC rating of D and an expensive council tax band are material considerations. With two bathrooms for four bedrooms, some modernisation or reconfiguration could improve family convenience and resale appeal.
Overall this is a well-located, versatile home for a growing family or someone looking to extend and add value; the generous garden, parking and extension consent are standout positives, while running costs and the need for selective updating should be factored into plans.
4 bedroom detached house for sale in Hollycroft, Hinckley, Leicestershire, LE10 — £450,000 • 4 bed • 3 bath • 1438 ft²
4 bedroom semi-detached house for sale in Elizabeth Road, Hinckley, LE10 — £415,000 • 4 bed • 1 bath • 1497 ft²
4 bedroom detached house for sale in Hansom Road, Hinckley, Leicestershire, LE10 — £550,000 • 4 bed • 3 bath • 1970 ft²
4 bedroom detached house for sale in Ashby Road, Hinckley, LE10 — £599,999 • 4 bed • 2 bath • 1520 ft²
4 bedroom detached house for sale in Pinfold Close, Hinckley, LE10 — £425,000 • 4 bed • 3 bath • 1586 ft²
4 bedroom detached house for sale in Hansom Road, Hinckley, Leicestershire, LE10 — £570,000 • 4 bed • 4 bath • 2266 ft²






























































































































