**Standout Features:**
- Modern semi-detached house built in 2021 with NHBC warranty.
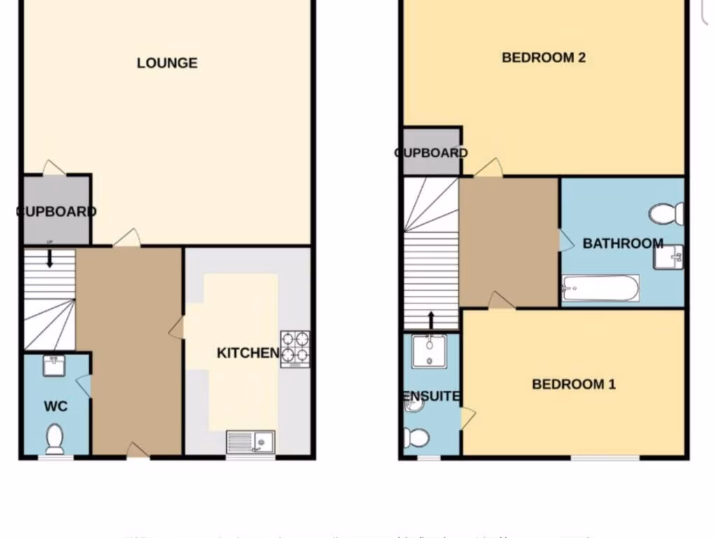
- Two spacious double bedrooms, each with good natural light.
- En-suite shower room and a family bathroom with shower-over-bath.
- Ground floor W.C. for convenience.
- Off-street parking for two cars.
- South-facing garden perfect for entertaining or relaxing.
- Close proximity to Witham train station, local amenities, and schools.
- High-quality finishes in the kitchen with integrated appliances.
**Notable Concerns:**
- Average-sized plot; may need small space management.
- Above-average crime in the area.
Welcome to this stunning semi-detached house, a modern gem built in 2021 that combines style with practicality. Featuring two generously sized double bedrooms, including a master suite with en-suite bathroom, this home is perfect for comfortable living. The well-designed ground floor boasts a spacious living room and a separate kitchen fitted with high-quality appliances, ideal for both casual meals and entertaining guests.
Enjoy your own off-street parking for two cars, plus a delightful south-facing garden—an inviting space for summer gatherings. Conveniently located near Witham train station and several top-rated schools, this home is ideal for families looking for community and accessibility. The local area includes a range of amenities just minutes away while the picturesque surroundings provide a serene lifestyle setting.
Don't miss the chance to own this modern property with excellent future potential—properties in this desirable location move quickly!
2 bedroom semi-detached house for sale in Wright Grove, Witham, CM8 — £325,000 • 2 bed • 2 bath • 706 ft²
2 bedroom semi-detached house for sale in Benson Drive, Witham, CM8 — £325,000 • 2 bed • 2 bath • 777 ft²
2 bedroom semi-detached house for sale in Prentice Place, Witham, CM8 — £325,000 • 2 bed • 2 bath • 765 ft²
2 bedroom semi-detached house for sale in Brown Close, Witham, CM8 — £325,000 • 2 bed • 2 bath • 754 ft²
2 bedroom semi-detached house for sale in Blunts Hall Road, CM3 — £350,000 • 2 bed • 3 bath • 497 ft²
2 bedroom end of terrace house for sale in Howell Walk, Witham, CM8 — £325,000 • 2 bed • 2 bath • 825 ft²


































































