**Key Features:**
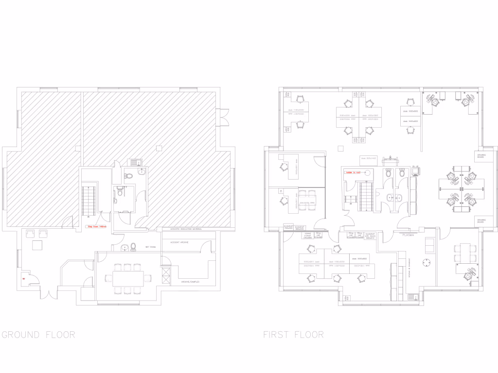
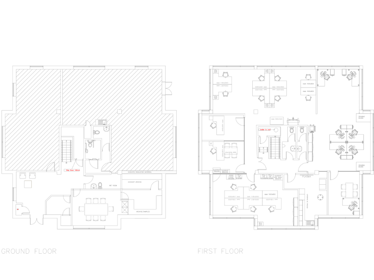
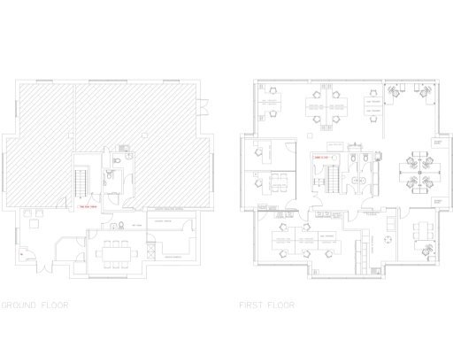
- Spacious self-contained office building (4,804 sq ft) over two floors
- Newly renovated with modern finishes
- Prime location within Birmingham Business Park
- Excellent access to motorway networks (M42, M6, M40, M5)
- On-site parking with landscaped surroundings
- Superb security features, including 24-hour security and CCTV
- Nearby amenities including Greggs and WH Smiths
This impressive office space at 2430 Regents Court offers a rare opportunity to acquire a modern, fully refurbished office building in the desirable Birmingham Business Park. With 4,804 sq ft of flexible space, it boasts air conditioning, raised access floors for easy cabling, and dedicated meeting rooms alongside an open-plan layout. The attractive brick exterior and double-glazed windows not only enhance the building's aesthetic but also ensure natural light floods the interior.
Ideal for businesses looking to thrive, this space benefits from its strategic location just off Junction 6 of the M42, providing swift access to Birmingham, Solihull, and Coventry, as well as proximity to Birmingham International Airport. The business park is established with over 150 reputable companies, creating a dynamic professional environment. While the property shines with its amenities and recent renovations, please note that the broadband speeds are currently slow, which may affect operational efficiency.
Don't miss this chance to make a strategic investment in a bustling office environment with ample potential for your business to grow and flourish. With significant commercial development around, properties like this don’t stay on the market for long.
Office for sale in 2425 & 2426 Regents Court, The Crescent, Birmingham, West Midlands, B37 — £995,000 • 1 bed • 1 bath • 4600 ft²
Office for sale in 6070 Knights Court, Birmingham Business Park, Solihull Parkway, Solihull, B37 7BF, B37 — £895,000 • 1 bed • 1 bath • 4164 ft²
Office for sale in 6120 Knights Court, Birmingham Business Park, Solihull, B37 7WY, B37 — £1,000,000 • 1 bed • 1 bath • 6164 ft²
Office for sale in 2010, Meriden Business Park, Copse Drive, Coventry, CV5 — £2,300,000 • 1 bed • 1 bath • 15279 ft²
Office for sale in 2010, Meriden Business Park, Copse Drive, Coventry, CV5 9RG, CV5 — POA • 1 bed • 1 bath • 15279 ft²
Office for sale in Nexus House, Rocky Lane Business Park, Aston, Birmingham, B6 5RQ, B6 — POA • 1 bed • 1 bath • 10028 ft²


















































